36 Tudor Ave, Ajax, Ontario L1S 2A3
Contact us about this property
Highlights
Estimated valueThis is the price Wahi expects this property to sell for.
The calculation is powered by our Instant Home Value Estimate, which uses current market and property price trends to estimate your home’s value with a 90% accuracy rate.Not available
Price/Sqft$701/sqft
Monthly cost
Open Calculator

Curious about what homes are selling for in this area?
Get a report on comparable homes with helpful insights and trends.
+8
Properties sold*
$898K
Median sold price*
*Based on last 30 days
Description
Welcome to 36 Tudor Ave in central Ajax! This adorable 2-bedroom bungalow has been freshly painted and is move-in ready. Perfect as a starter home or for those looking to downsize, its a great condo alternative without the fees. Enjoy the convenience of a cute shed for extra storage. Located in a wonderful community close to schools, parks, shopping, restaurants, and all amenities. Commuters will love the easy access to Hwy 401 and the GO Train. Cozy, charming, and ideally situated this is a fantastic opportunity to call Ajax home!
Property Details
Interior
Features
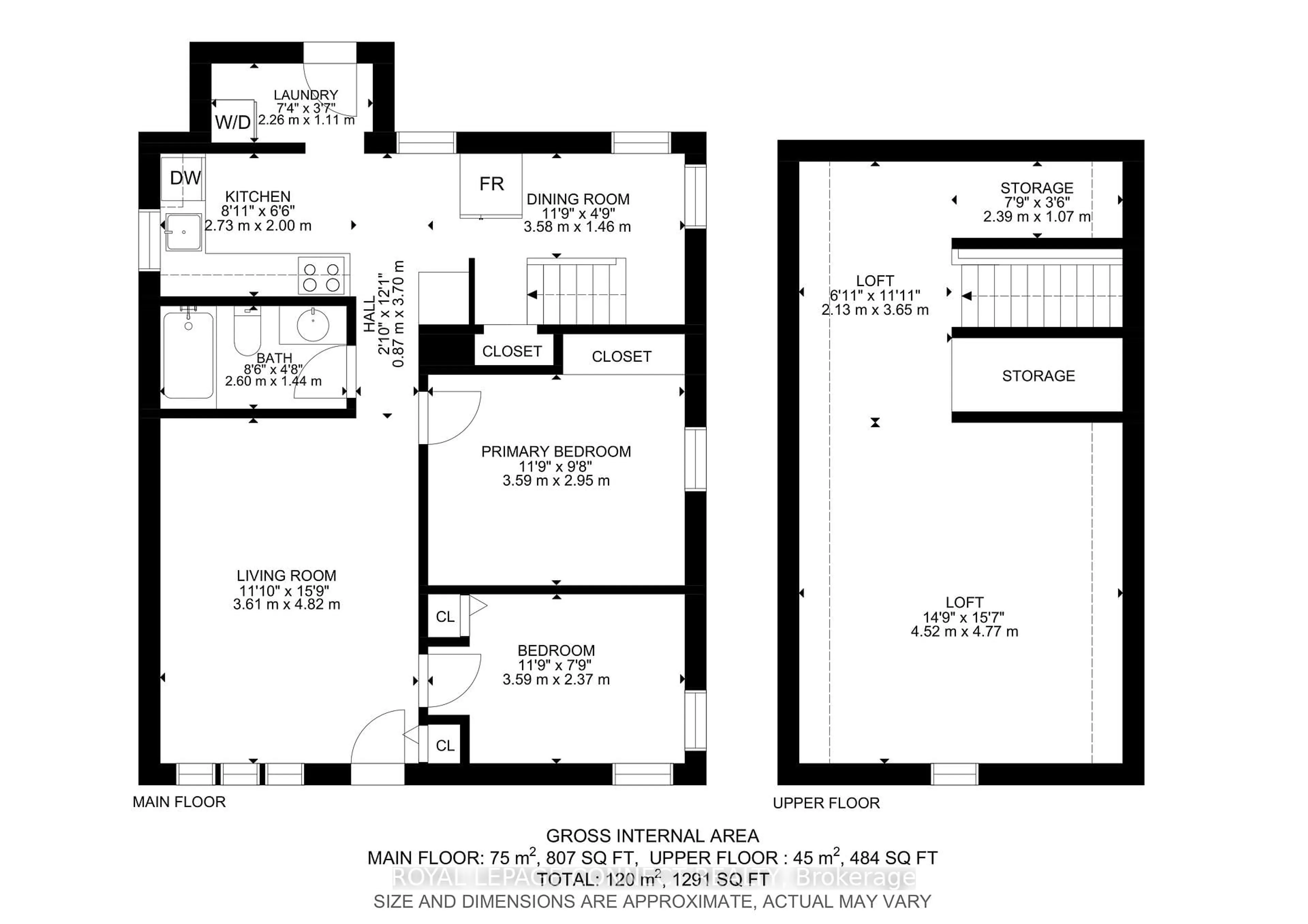
Main Floor
Kitchen
2.73 x 2.0Living
3.61 x 4.82Primary
3.59 x 2.95Closet / Window
2nd Br
3.59 x 2.37Closet / Window
Exterior
Features
Parking
Garage spaces -
Garage type -
Total parking spaces 2
Property History
36










