423 1st St, Owen Sound, Ontario N4K 6Z7
Contact us about this property
Highlights
Estimated valueThis is the price Wahi expects this property to sell for.
The calculation is powered by our Instant Home Value Estimate, which uses current market and property price trends to estimate your home’s value with a 90% accuracy rate.Not available
Price/Sqft$551/sqft
Monthly cost
Open Calculator
Description
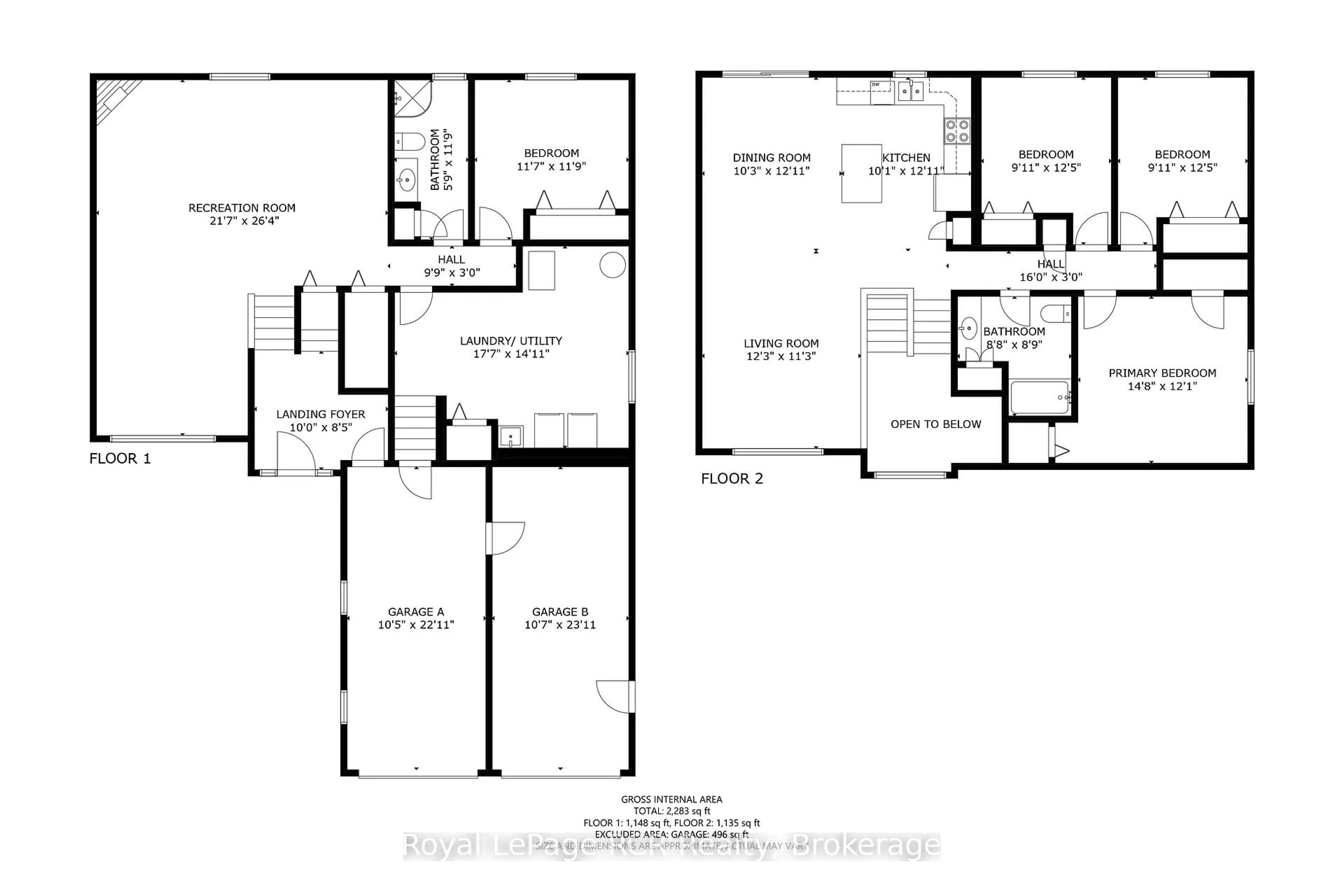
Your search ends at 423 1st St. SW. Tucked away in one of Owen Sound's sought-after pockets, this raised bungalow perfectly balances premium curb appeal with a layout designed for real life. Step into a spacious entryway that opens up to the bright, open-concept heart of the home. Between the hardwood floors and a massive picture window flooding the living room with natural light, the vibe here is instantly welcoming. The dining area flows directly onto a covered deck, giving you a private, all-weather spot for morning coffee or outdoor dining overlooking the landscaped yard. Downstairs, the lower level offers the flexibility a growing family or a busy professional needs. You'll find a generous secondary living space anchored by a cozy natural-gas fireplace, an additional bedroom, a 3-piece bath, and a large utility room with direct access to the double-car garage. Whether you need a quiet home office, a guest room, or just room to breathe, this floor plan delivers. Located minutes from Harrison Park, the Owen Sound Farmers' Market, schools, and shopping, this home is move-in ready with immediate possession available. Your new chapter starts as soon as you get the keys.
Property Details
Interior
Features
Main Floor
Br
3.72 x 3.783 Pc Bath
Dining
3.12 x 3.93Living
3.73 x 3.43Br
3.02 x 3.78Exterior
Features
Parking
Garage spaces 2
Garage type Attached
Other parking spaces 4
Total parking spaces 6
Property History
48






