1028 Finch Lane, Arden, Ontario K0H 1B0
Contact us about this property
Highlights
Estimated valueThis is the price Wahi expects this property to sell for.
The calculation is powered by our Instant Home Value Estimate, which uses current market and property price trends to estimate your home’s value with a 90% accuracy rate.Not available
Price/Sqft$653/sqft
Monthly cost
Open Calculator
Description
Welcome to your dream lakefront escape, custom-built in 2022 and designed with effortless living and retirement in mind. This year-round lake house offers a rare blend of modern comfort, natural beauty, and thoughtful craftsmanship, all nestled on a breathtaking East-facing shoreline with commanding views. Step into the spacious open-concept main level, where vaulted ceilings and large windows flood the space with natural light. The living area is anchored by a striking oversized wood-burning stove, set on custom tile, perfect for cozy nights. The chef-inspired kitchen features an impressive 8-foot bar, custom soft-close cabinetry with hidden slide-outs. These granite countertops glimmer as the light moves throughout the day, matching Electrolux appliances, including a concealed dishwasher. Enjoy easy main-level living with two oversized bedrooms, each with a walk-in closet. The primary suite features a 3-piece en-suite and a walk-out to the covered porch, as does the second bedroom, which has a 4-piece bathroom conveniently located just outside. The lower level features an exposed granite rock face, two private entrances, and ample flexibility, making it ideal for additional bedrooms, guest suites, or hobby spaces. Mechanical systems include a high-efficiency propane furnace, central AC, HRV system, owned water heater, pressure tank, and 200-amp hydro. Bell Fibre internet and cell reception ensure you're connected when you want to be. Outside, the natural beauty of this property is simply unmatched. Approx 300 feet of waterfront offers a beach area for wading, a fishing/boat dock, a fire pit, and winding pathways through granite outcroppings and perennial gardens bordered by stunning armour stone. Enjoy peaceful lake life with access to Horseshoe Lake and further connection to Buck, Bull, and Crotch Lakes - an outdoor enthusiast's paradise. Ideally situated between Toronto and Ottawa, this is a must-see, must-feel property! By Appointment Only
Property Details
Interior
Features
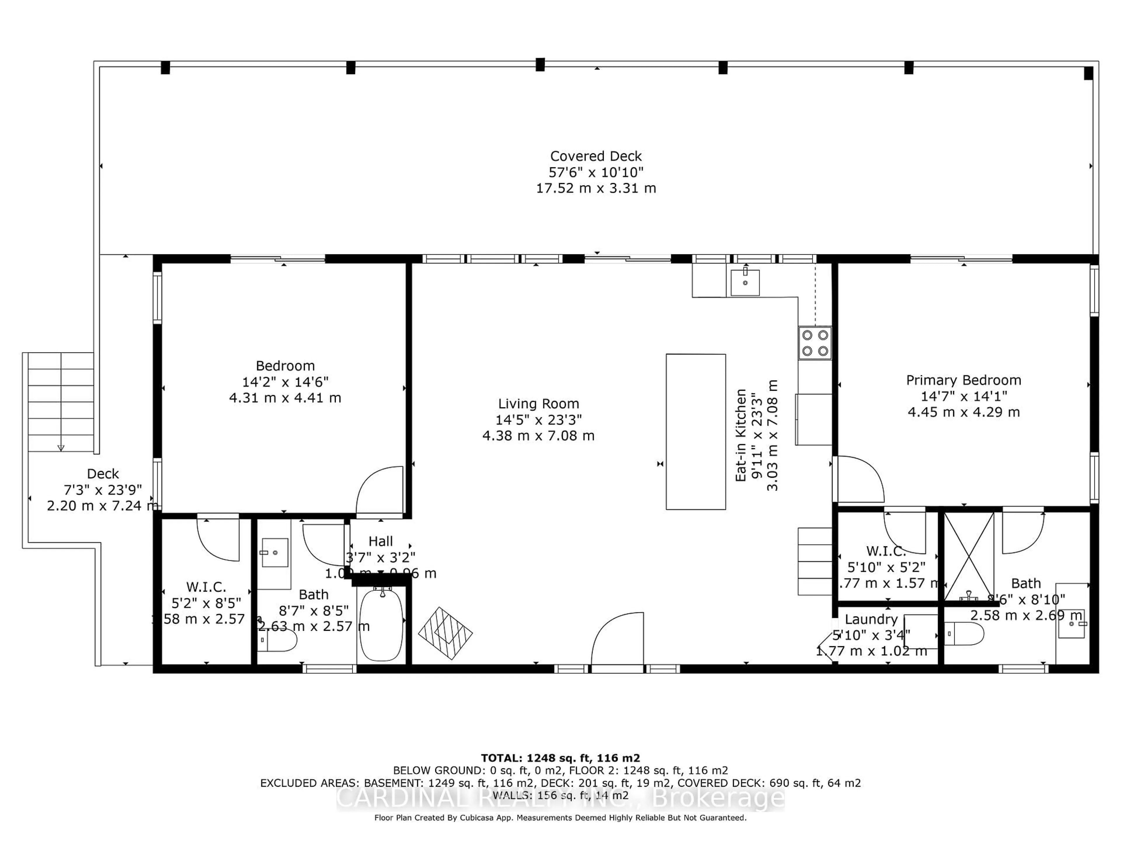
Main Floor
Br
4.24 x 4.22W/I Closet / W/O To Deck
Bathroom
0.0 x 0.04 Pc Bath
Living
7.39 x 6.93Combined W/Dining / Combined W/Kitchen / W/O To Deck
Primary
4.22 x 4.223 Pc Ensuite / W/I Closet / W/O To Deck
Exterior
Features
Parking
Garage spaces -
Garage type -
Total parking spaces 3
Property History
50








