Lot 5 Colchester Heights - 160 Ambassador Beac Rd, Colchester, Ontario N0R 1G0
Contact us about this property
Highlights
Estimated valueThis is the price Wahi expects this property to sell for.
The calculation is powered by our Instant Home Value Estimate, which uses current market and property price trends to estimate your home’s value with a 90% accuracy rate.Not available
Price/Sqft$435/sqft
Monthly cost
Open Calculator
Description
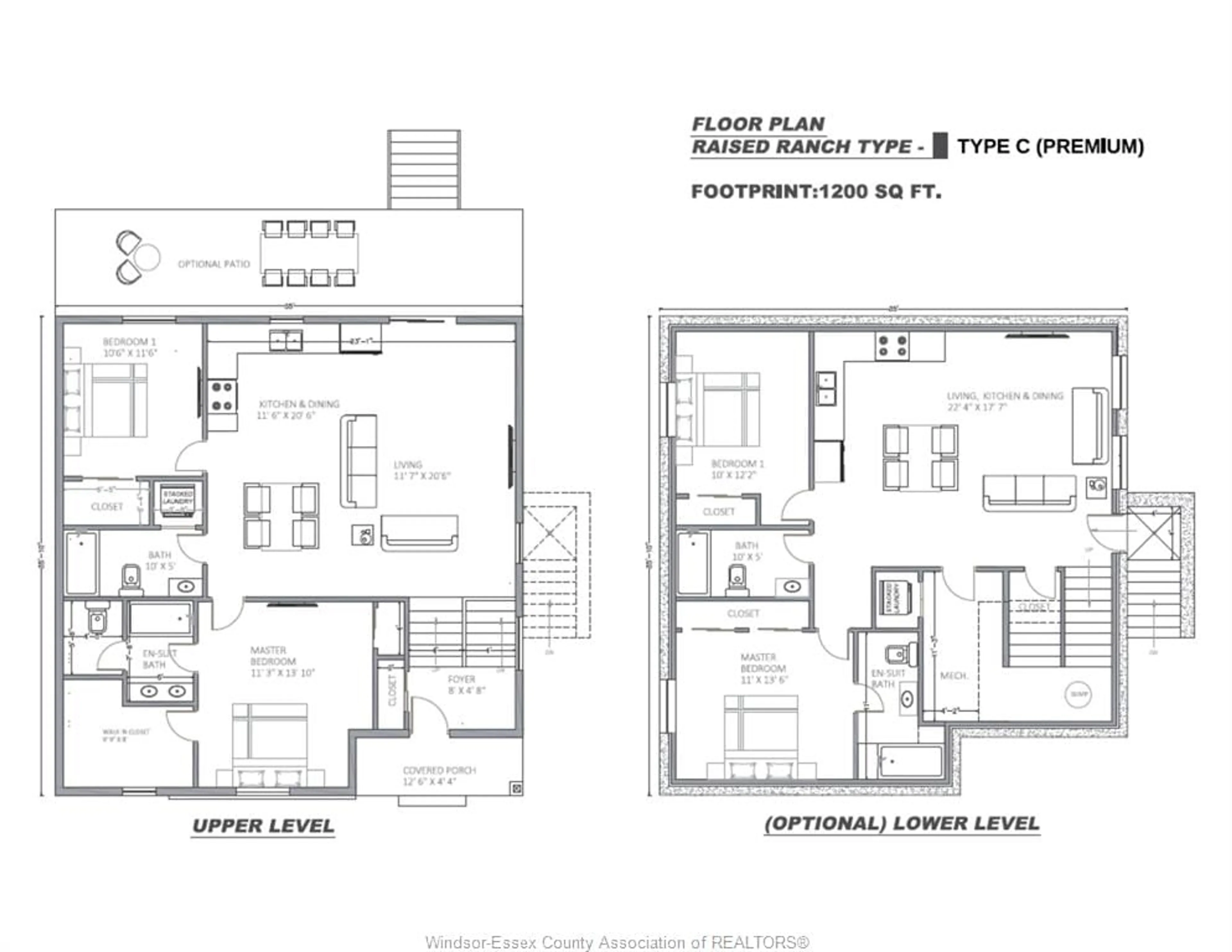
Build new near Lake Erie with the rare opportunity to offset your mortgage through income potential. Welcome to Lot 5 at Colchester Heights, featuring the Type C Premium home on a 50 x 110 ft lot. Designed with flexibility in mind, this home includes a fully finished basement with second kitchen and grade entrance, creating excellent potential for a secondary living space. Perfect for first-time buyers looking to offset mortgage costs while owning a brand-new home. Built with quality wood frame construction to maintain affordability. Located minutes from Colchester Harbour & Beach, wineries, restaurants and Harrow Centre, and approximately 30 minutes to Windsor. Secure your place early in Colchester Heights and explore the possibilities this flexible new build offers. Colchester Heights is a thoughtfully planned new community offering modern homes in the heart of Essex County.
Property Details
Interior
Features
MAIN LEVEL Floor
FOYER
8 x 4.8PRIMARY BEDROOM
11.3 x 13.10LIVING ROOM
11.7 x 20.6KITCHEN / DINING COMBO
11.6 x 20.6Property History
22






