33 EAGLE, Leamington, Ontario N8H 3V4
Contact us about this property
Highlights
Estimated valueThis is the price Wahi expects this property to sell for.
The calculation is powered by our Instant Home Value Estimate, which uses current market and property price trends to estimate your home’s value with a 90% accuracy rate.Not available
Price/Sqft-
Monthly cost
Open Calculator
Description
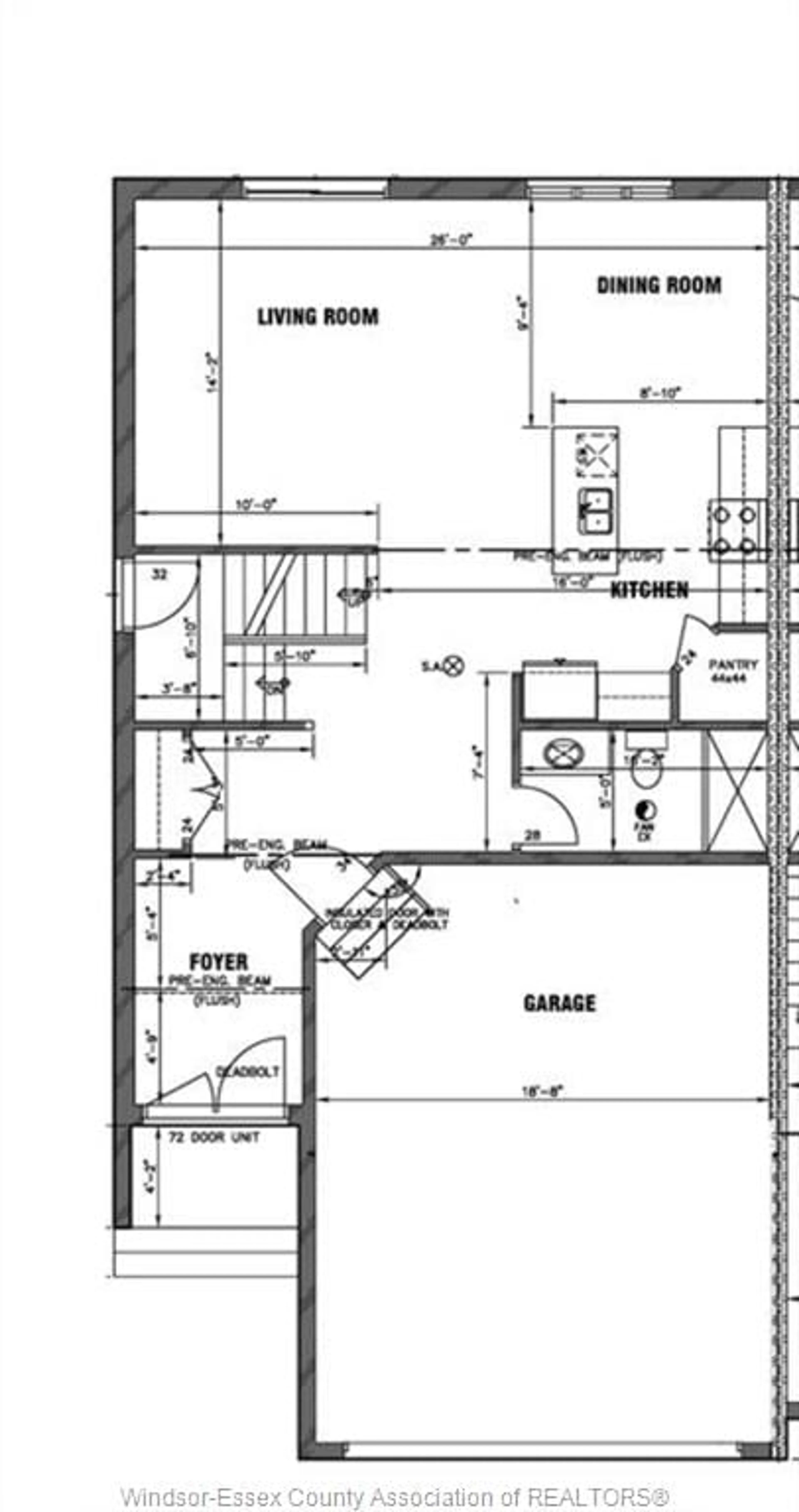
Welcome to 33 Eagle Street in the newly developed Bevel Line Village. This brand new two-storey end unit townhome offers 4 bedrooms, 3 baths including a private ensuite, and convenient second-floor laundry. Enjoy an open-concept layout with a modern kitchen featuring quartz countertops, tile backsplash, island, and built-in pantry. Engineered hardwood and tile flooring throughout, upgraded trim, wainscoting, and stylish finishes add a touch of elegance. The bright family room opens to the backyard through patio doors with built-in blinds. Unfinished lower level with rough-ins for a future kitchen and bath offers excellent potential. Finished insulated double garage, concrete driveway, and energy-efficient systems throughout. Ideally located minutes from Point Pelee National Park, Seacliff Park, the marina, golf, shopping, and all amenities. A must-see property-call today for your private showing!
Property Details
Interior
Features
MAIN LEVEL Floor
KITCHEN
FAMILY ROOM
FOYER
DINING ROOM
Property History
6





