Contact us about this property
Highlights
Estimated valueThis is the price Wahi expects this property to sell for.
The calculation is powered by our Instant Home Value Estimate, which uses current market and property price trends to estimate your home’s value with a 90% accuracy rate.Not available
Price/Sqft-
Monthly cost
Open Calculator
Description
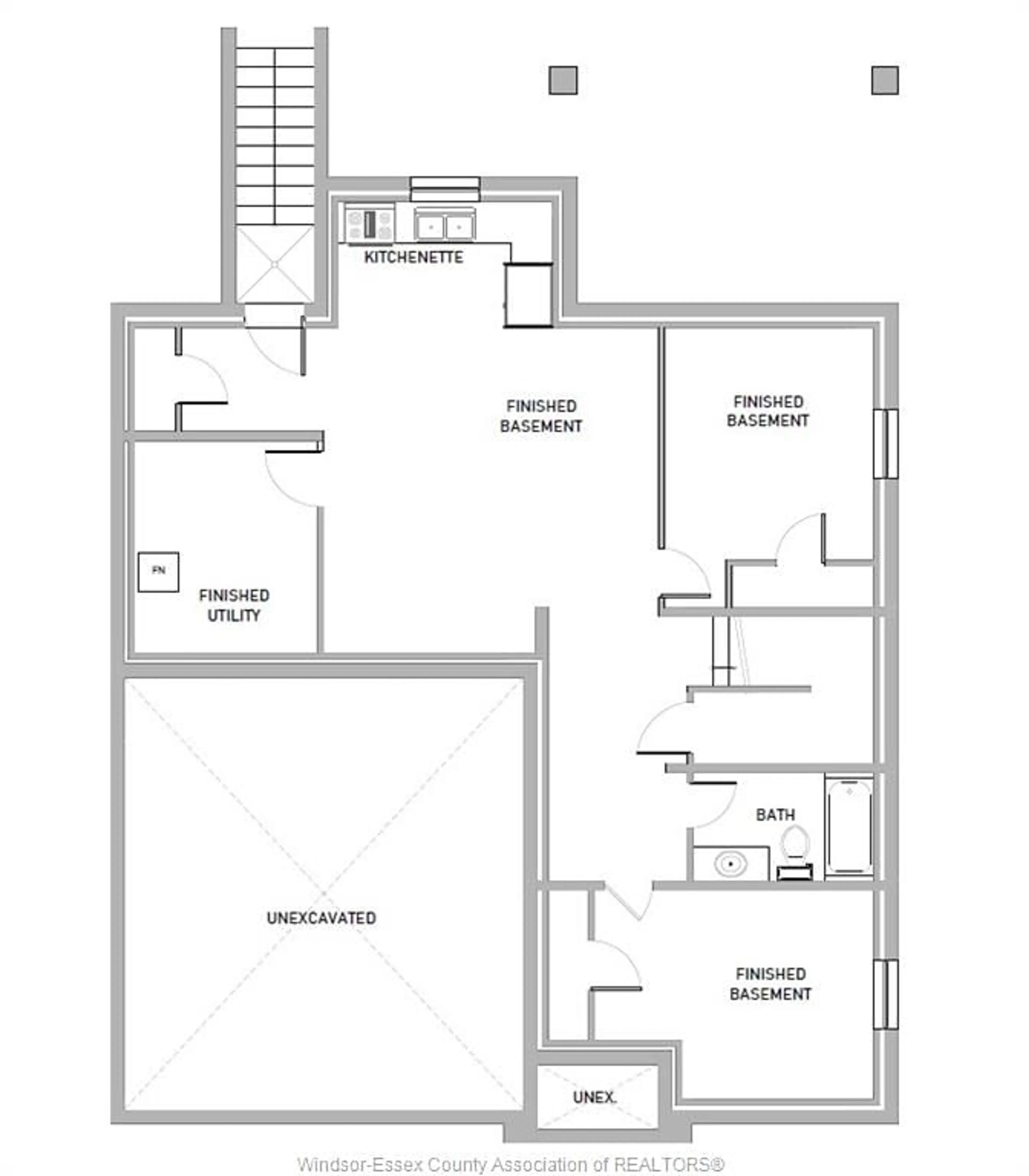
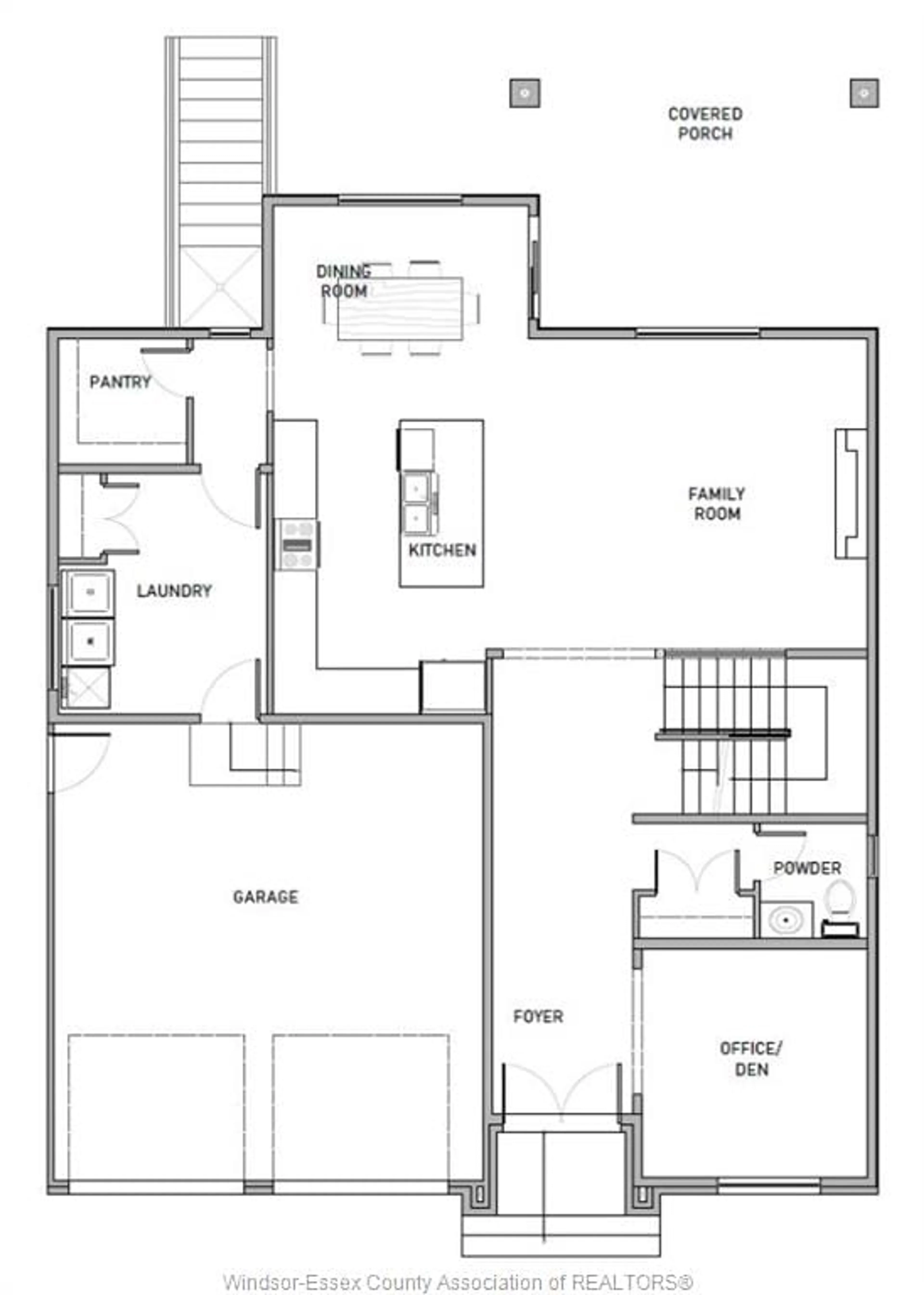
GOVERNMENT INCENTIVE: HST REBATE IS INCLUDED IN THE PRICE TO ELIGIBLE BUYERS.TO BE BUILT – INTRODUCING THE DOMENIC MODEL BY MAPLE LEAF HOMES, A SPACIOUS 2-STOREY DESIGN OFFERING APPROX. 2,500 SQ FT OF MODERN LIVING IN THE DESIRABLE OAKWOOD ESTATES SUBDIVISION IN LAKESHORE. THIS WELL-APPOINTED HOME FEATURES 4 BEDROOMS AND 3.5 BATHROOMS, INCLUDING TWO PRIVATE ENSUITES, MAKING IT IDEAL FOR GROWING FAMILIES OR MULTI-GENERATIONAL LIVING. THE MAIN FLOOR OFFERS A BRIGHT, OPEN-CONCEPT LAYOUT WITH A FUNCTIONAL KITCHEN, GENEROUS LIVING AND DINING AREAS, AND A CONVENIENT MAIN-FLOOR POWDER ROOM. A DOUBLE CAR GARAGE AND FULL UNFINISHED BASEMENT PROVIDE PLENTY OF STORAGE AND FUTURE DEVELOPMENT POTENTIAL — WHETHER YOU'RE PLANNING A REC ROOM, HOME GYM, OR EXTRA BEDROOMS. BUILT WITH MAPLE LEAF HOMES’ TRUSTED QUALITY AND ATTENTION TO DETAIL, AND THERE’S STILL TIME TO SELECT YOUR FINISHES, ALLOWING YOU TO PERSONALIZE EVERYTHING FROM FLOORING TO CABINETRY AND FIXTURES. LOCATED JUST MINUTES FROM SCHOOLS, PARKS, TRAILS, LAKESHORE RECREATION COMPLEX, BELLE RIVER MARINA, AND HWY 401. A FANTASTIC OPPORTUNITY TO BUILD YOUR DREAM HOME IN A FAMILY-FRIENDLY, GROWING COMMUNITY.
Property Details
Interior
Features
MAIN LEVEL Floor
FOYER
LIVING ROOM / FIREPLACE
KITCHEN / DINING COMBO
LAUNDRY
Property History
6







