10 MULBERRY Crt, Amherstburg, Ontario N9V 1N3
Contact us about this property
Highlights
Estimated valueThis is the price Wahi expects this property to sell for.
The calculation is powered by our Instant Home Value Estimate, which uses current market and property price trends to estimate your home’s value with a 90% accuracy rate.Not available
Price/Sqft-
Monthly cost
Open Calculator
Description
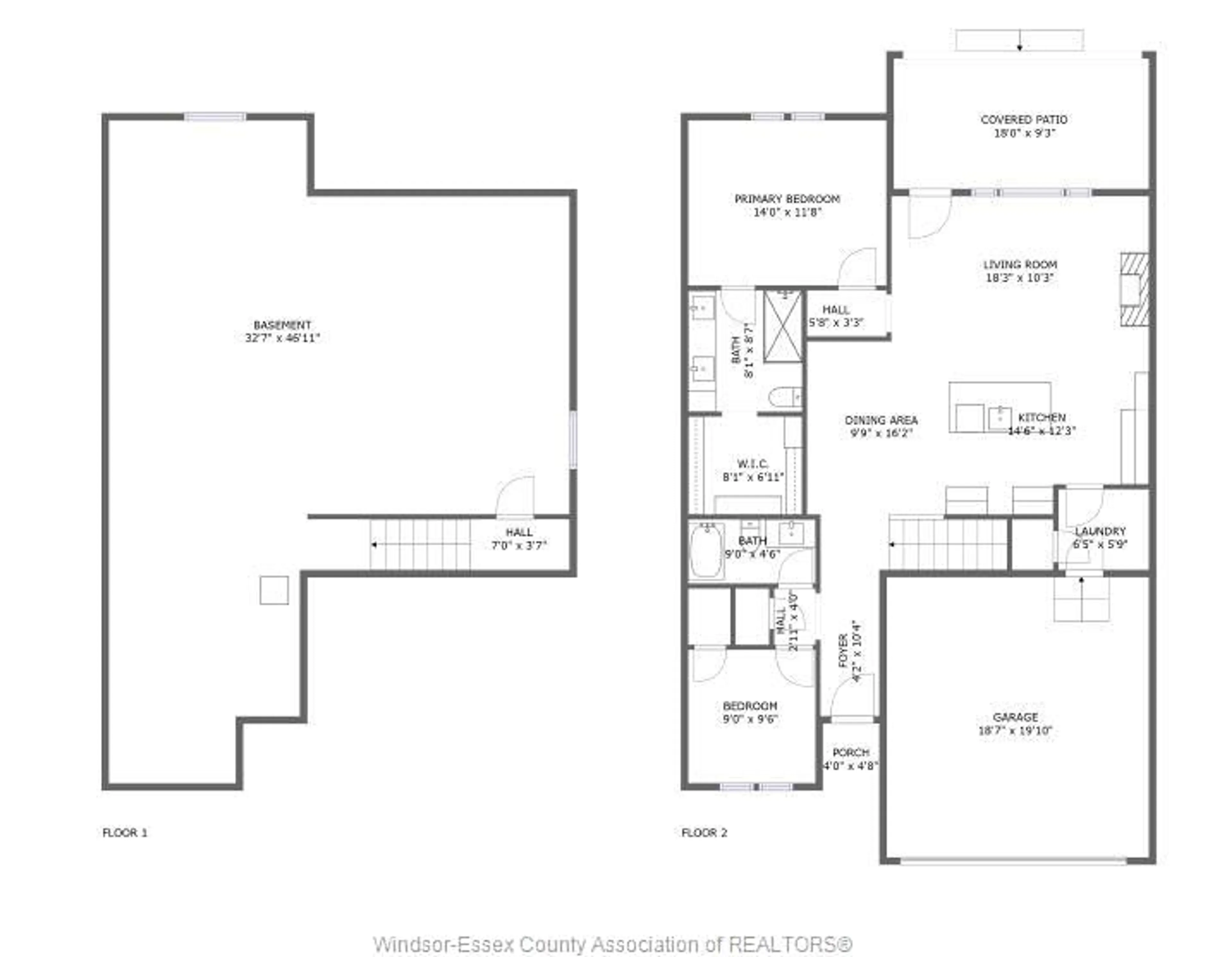
We are moving! Loaded model available now! Over $40,000 in extras! Welcome to Mulberry Court, a small, quiet, private development on its own with no through traffic, conveniently located for all that Amherstburg has to offer. 1315 sq. ft. Stone and stucco Ranch, freehold townhome. Quality construction by Sunset Luxury Homes Inc. Features include engineered hardwood throughout, tile in wet areas, 9'ceilings with step up boxes, quartz countertops, gas FP, large covered rear porch, concrete drive, HRV, glass shower, walk-in ensuite, finished double garage, full basement and much more. This finished model home includes motorized porch screen, walk- in closet with custom cabinetry, 6 piece appliance package, all window coverings, sprinkler system with sod and landscaping in front only. Contact LBO for all the additional info, other lots available, other sizes and plans. more options etc.
Upcoming Open House
Property Details
Interior
Features
MAIN LEVEL Floor
FOYER
LIVING ROOM / FIREPLACE
KITCHEN
EATING AREA
Property History
34





