88 Tollgate Rd #405, Brantford, Ontario N3R 7R5
Contact us about this property
Highlights
Estimated valueThis is the price Wahi expects this property to sell for.
The calculation is powered by our Instant Home Value Estimate, which uses current market and property price trends to estimate your home’s value with a 90% accuracy rate.Not available
Price/Sqft$334/sqft
Monthly cost
Open Calculator
Description
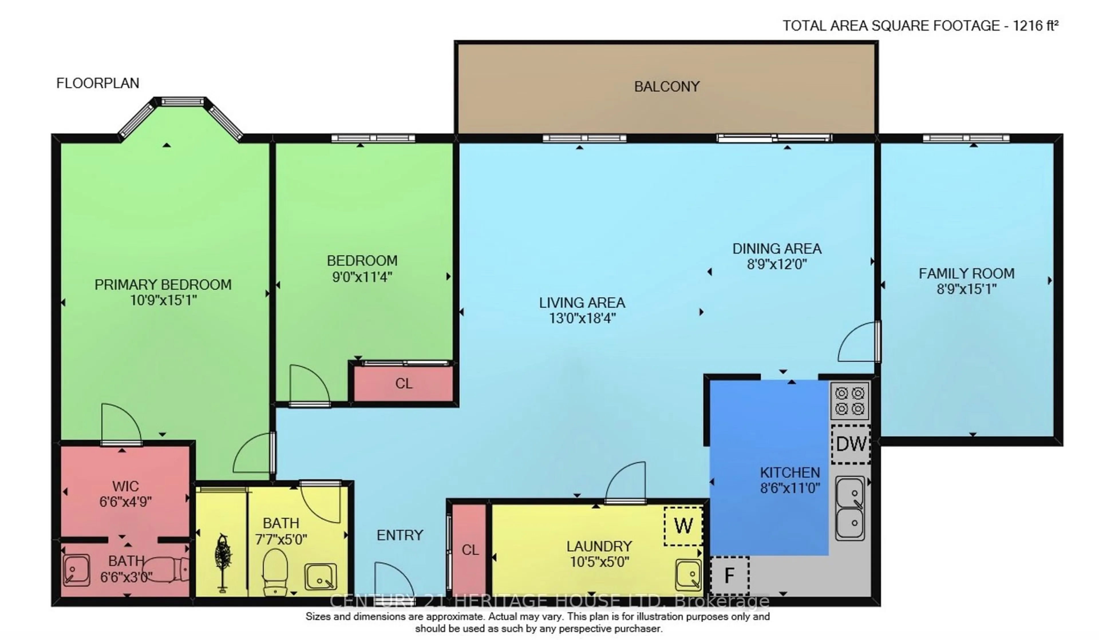
entrally located in Brantford's desirable north end close to shopping, schools, and highway access, this spacious 1,180 sq. ft. penthouse condo in Spruce Lane Condominiums is a rare offering. This bright 3-bedroom, 1.5-bath unit is completely carpet-free and designed for comfortable, low-maintenance living. Built in 1988, this well-designed layout offers generous principal rooms suited for families, downsizers, or investors alike. The functional kitchen features ample cabinetry and newer appliances. The primary bedroom offers a large bay window, walk-through closet, and private 2-piece ensuite. The third bedroom showcases custom oak wainscoting and would make an ideal home office. Updated furnace and A/C (2021) ensure year-round comfort. This well-maintained building provides excellent amenities including secure entry, fitness room, sauna, party/entertainment room, library, storage locker, garbage chute on every floor, and assigned parking. Condo fees include water, offering added value and predictable monthly expenses.
Property Details
Interior
Features
Main Floor
Living
18.4 x 13.0Crown Moulding / Laminate
Dining
12.0 x 8.9Crown Moulding / Walk-Out / Laminate
Kitchen
11.0 x 8.6Double Sink / Laminate
3rd Br
15.1 x 8.9Crown Moulding / Laminate / Wainscoting
Exterior
Features
Parking
Garage spaces -
Garage type -
Total parking spaces 1
Condo Details
Amenities
Exercise Room, Elevator, Sauna, Visitor Parking, Recreation Room, Party/Meeting Room
Inclusions
Property History
47






