154 Myles Bay Shore Rd, Northern Bruce Peninsula, Ontario N0H 1W0
Contact us about this property
Highlights
Estimated valueThis is the price Wahi expects this property to sell for.
The calculation is powered by our Instant Home Value Estimate, which uses current market and property price trends to estimate your home’s value with a 90% accuracy rate.Not available
Price/Sqft$490/sqft
Monthly cost
Open Calculator
Description
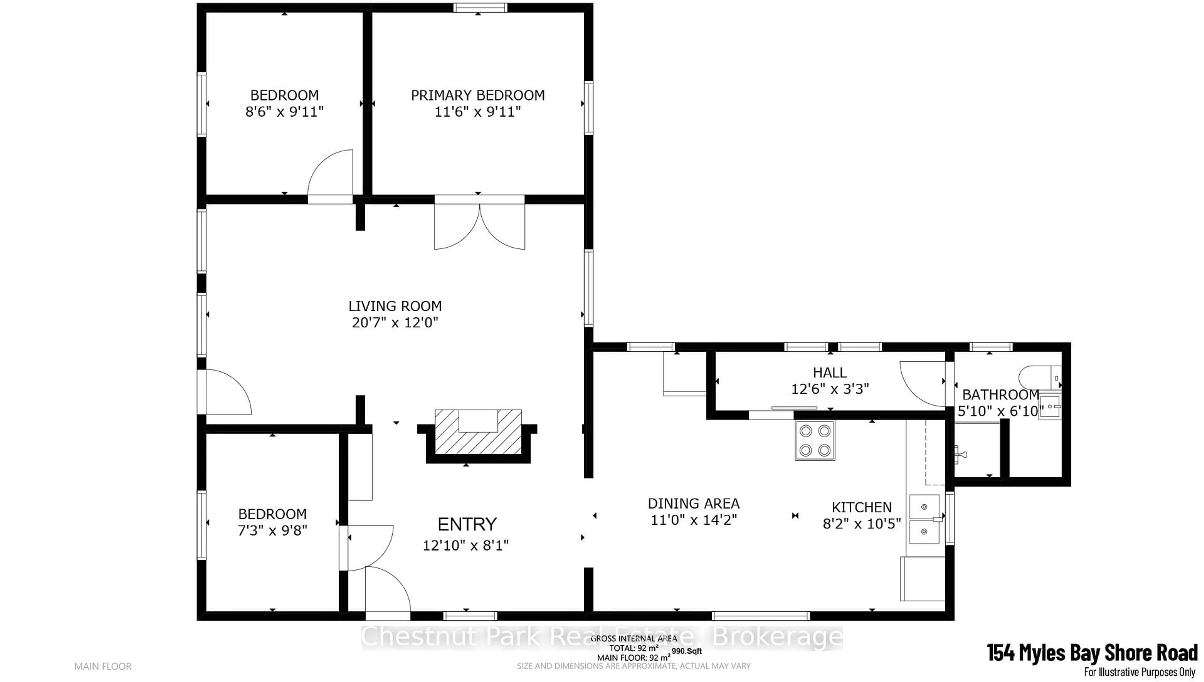
Rustic Log Cottage in a Prime Bruce Peninsula Location! This 3-bedroom seasonal log cottage offers approximately 990 square feet of living space and sits on a beautiful, well-treed 1.3-acre property in a highly desirable area, all at an attractive price point. Full of character with a classic "hunt camp" atmosphere, the cottage provides a warm and nostalgic setting for relaxed summer living. Inside, the spacious kitchen and dining area features an abundance of cupboards and plenty of room for family gatherings after a day outdoors. The cottage is protected by a durable metal roof and offers comfortable living space for family and guests. A separate guest cabin nearby provides additional accommodation, making it an ideal setup for extended family or visiting friends. Located directly across the road from excellent sand-bottom swimming and flat rock shoreline perfect for sunbathing, the waterfront setting offers great opportunities for boating, fishing, and enjoying spectacular sunsets. Just around the bend you'll find Sandy Beach, a popular public sand beach known for its shallow waters and family-friendly swimming. The charming village of Lions Head, with its marina, shops, restaurants, and amenities, is less than a 10-minute drive away. With privacy, natural surroundings, and possible severance potential, this property offers excellent opportunity as a family retreat, investment, or seasonal rental property. Being sold "as is, where is" with no representations or warranties. Priced to sell and ready for its next chapter on the Bruce Peninsula.
Property Details
Interior
Features
Main Floor
Living
6.27 x 3.66Primary
3.51 x 3.022nd Br
2.59 x 3.023rd Br
2.21 x 2.95Exterior
Features
Parking
Garage spaces -
Garage type -
Total parking spaces 4
Property History
50






