70 Applewood Blvd, Kincardine, Ontario N0H 2T0
Contact us about this property
Highlights
Estimated valueThis is the price Wahi expects this property to sell for.
The calculation is powered by our Instant Home Value Estimate, which uses current market and property price trends to estimate your home’s value with a 90% accuracy rate.Not available
Price/Sqft$298/sqft
Monthly cost
Open Calculator
Description
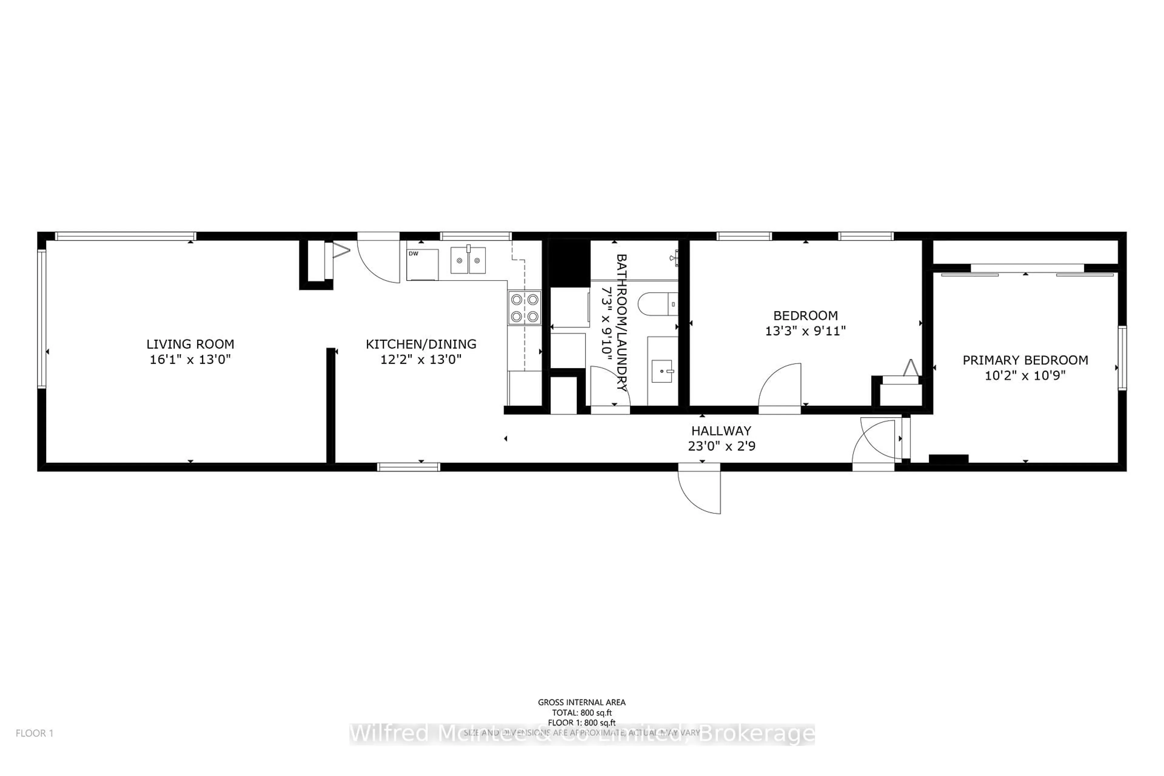
Affordable Year-Round Living in Inverhuron! Welcome to this fully updated mobile home in the Woodland Park community, offering modern finishes and move-in ready comfort just two blocks from the shores of Lake Huron. Inside you'll find luxury vinyl plank flooring, fresh paint, updated lighting and window coverings, along with a custom kitchen (2025) featuring stainless steel appliances. The home offers two spacious bedrooms, a 3-piece bathroom with walk-in shower and stackable washer/dryer, plus major upgrades including a propane forced-air furnace (2023) and central air conditioning (2024). Additional improvements include a metal roof, vinyl siding, vinyl windows and a hot water tank (2025). Outside, enjoy a large 350 sq. ft. deck with pergola, two storage sheds and mature trees providing privacy. Located between Kincardine and Port Elgin and minutes to Inverhuron Provincial Park, trails and a local convenience store/restaurant, this property offers both relaxation and convenience. The leased land fee is $642/month and includes water, septic, land lease, snow removal of private roadways and maintenance of common areas. Looking for financing? Great news - RBC Kincardine has financing options available with as little as 5% down. For example: Purchase price $254,900, down payment (5%) $12,995, mortgage amount approximately $246,905. At an estimated interest rate of 4.5% with a 25-year amortization, the monthly payment would be roughly $1,370/month (plus land lease). WOW - that's an opportunity to own where you live near Lake Huron! Ask about approval process if needed.
Upcoming Open House
Property Details
Interior
Features
Exterior
Parking
Garage spaces -
Garage type -
Total parking spaces 2
Property History
41






