92 Griffith St, Brockton, Ontario N0G 2V0
Contact us about this property
Highlights
Estimated valueThis is the price Wahi expects this property to sell for.
The calculation is powered by our Instant Home Value Estimate, which uses current market and property price trends to estimate your home’s value with a 90% accuracy rate.Not available
Price/Sqft$433/sqft
Monthly cost
Open Calculator
Description
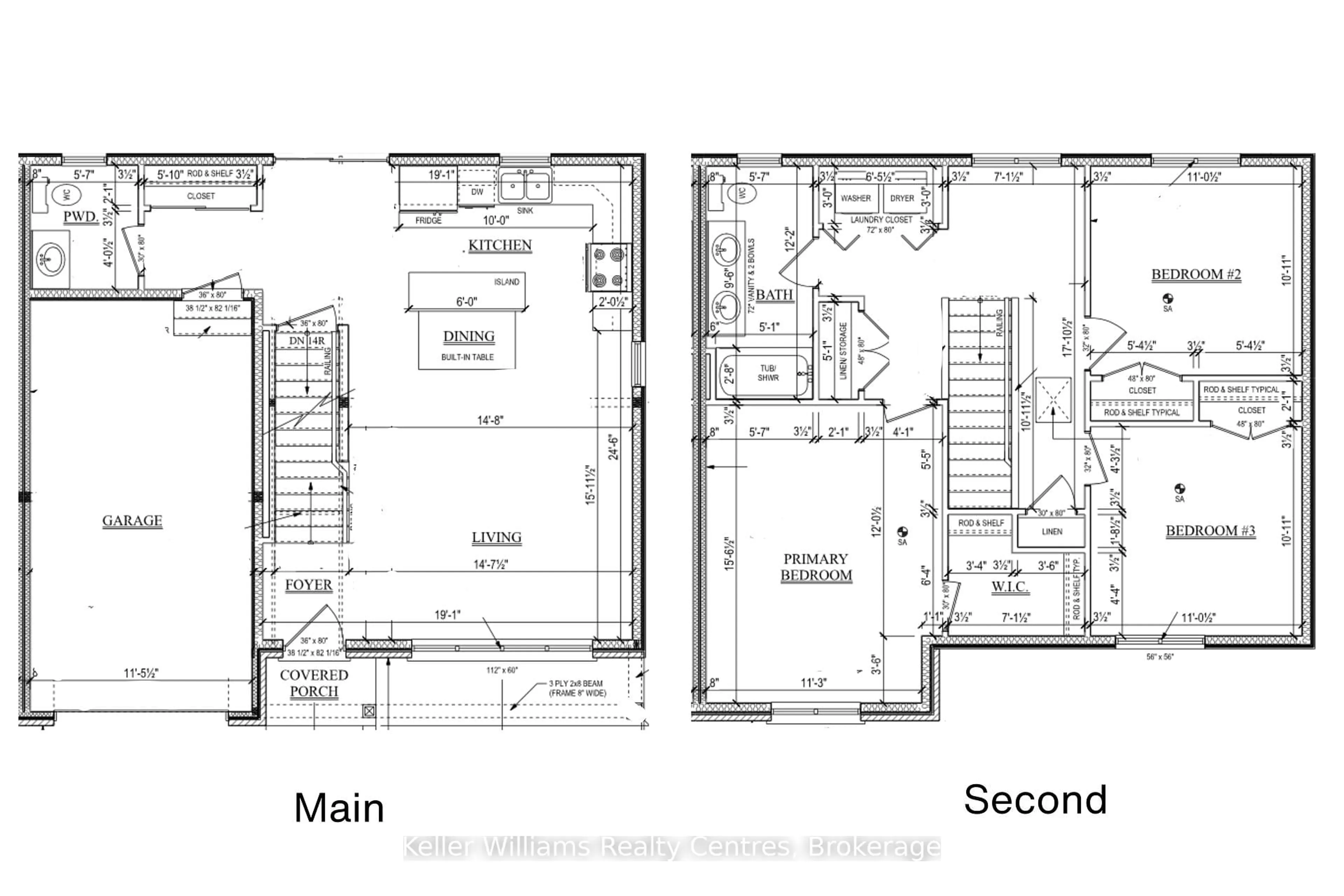
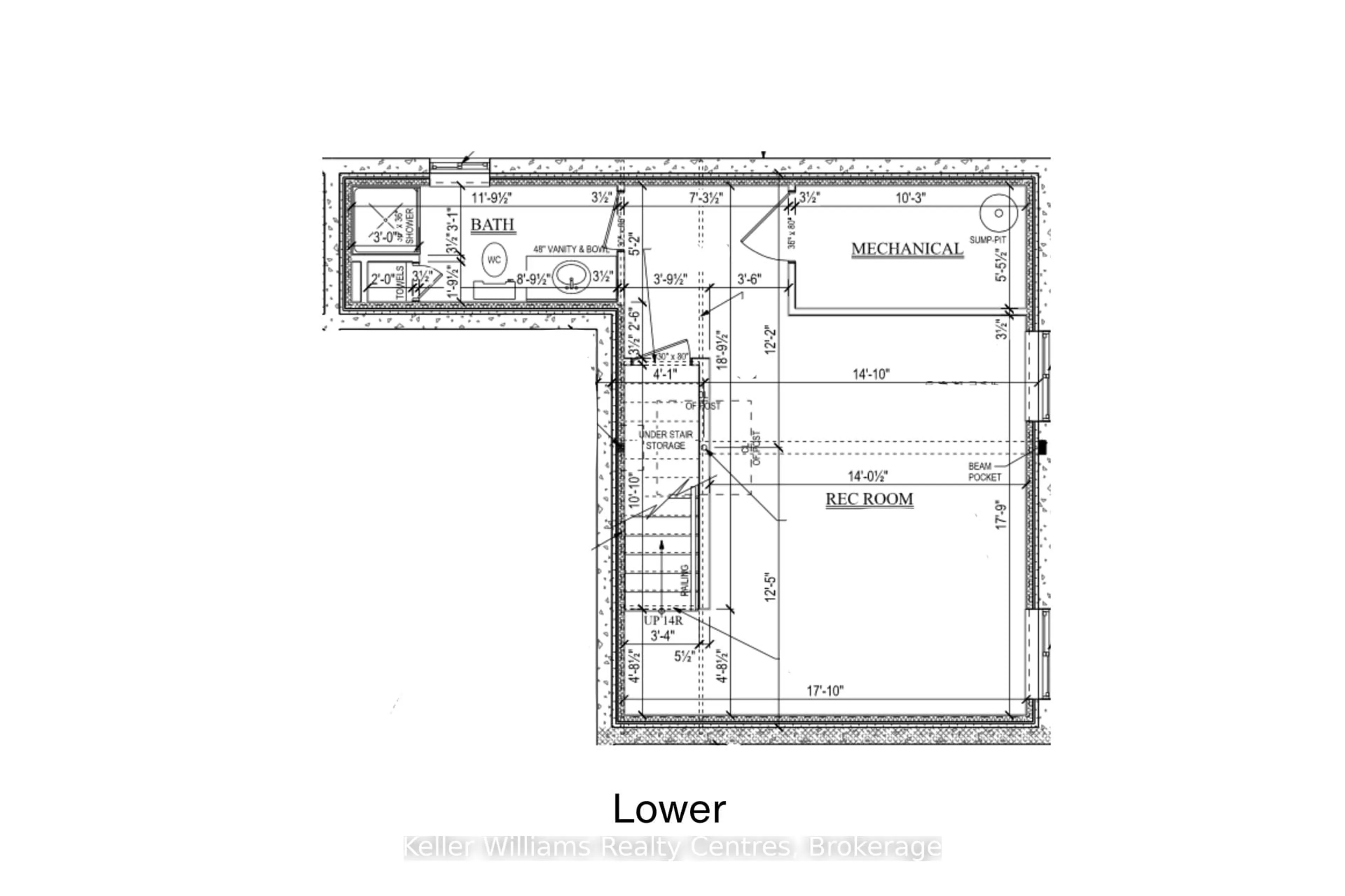
Brand new 2 storey semi-detached by Candue Homes! This home features a bright & open-concept main level with patio doors leading to the partially fenced yard. The custom kitchen offers quartz countertops, all appliances, and a functional island with a built in dining table. Upstairs, the second level hosts all three bedrooms, including a spacious primary bedroom with a walk-in closet, along with the convenience of second-floor laundry. The finished basement includes a rec room, 3rd bathroom, and additional storage space, offering flexibility for family living, entertaining, or a home office. A sodded yard, paved driveway and Tarion warranty are all included in the purchase price.
Property Details
Interior
Features
Main Floor
Living
3.5052 x 5.1562Kitchen
3.8354 x 5.1562Combined W/Dining
Mudroom
1.8542 x 1.2192Foyer
1.524 x 1.1684Exterior
Features
Parking
Garage spaces 1
Garage type Attached
Other parking spaces 2
Total parking spaces 3
Property History
6






