5691 Ns Trunk 3, Jordan Falls, Nova Scotia B0T 1J0
Contact us about this property
Highlights
Estimated valueThis is the price Wahi expects this property to sell for.
The calculation is powered by our Instant Home Value Estimate, which uses current market and property price trends to estimate your home’s value with a 90% accuracy rate.Not available
Price/Sqft$137/sqft
Monthly cost
Open Calculator
Description
Visit REALTOR® website for additional information. Set along Nova Scotia’s rugged South Shore, this Jordan Falls home is for buyers drawn to space, nature, and flexibility in how they live. Backing onto the Rails to Trails system and just minutes from quiet coastal shoreline, it suits those who value fresh air, privacy, and room to move — whether that means raising a family, working remotely, or simply slowing the pace of everyday life. Life here isn’t defined by square footage; it’s shaped by routine moments. Morning walks or bike rides begin right from your backyard. Evenings are spent on the deck with ocean air drifting in. Inside, multiple living areas create separation when needed and connection when it matters — space for gatherings, quiet work, hobbies, or visiting family. The layout lends itself naturally to multi-generational living or future rental use, offering options without forcing decisions today. This is a home that makes sense for buyers rethinking priorities — those seeking affordability compared to larger centres, more land without isolation, and a setting that supports outdoor living year-round. Positioned between Shelburne and Lockeport, daily essentials remain accessible while preserving the calm of a smaller coastal community. For the right buyer, the value here isn’t just in the property itself, but in what it enables: flexibility for the future, connection to nature, and a lifestyle grounded in balance rather than busyness.
Property Details
Interior
Features
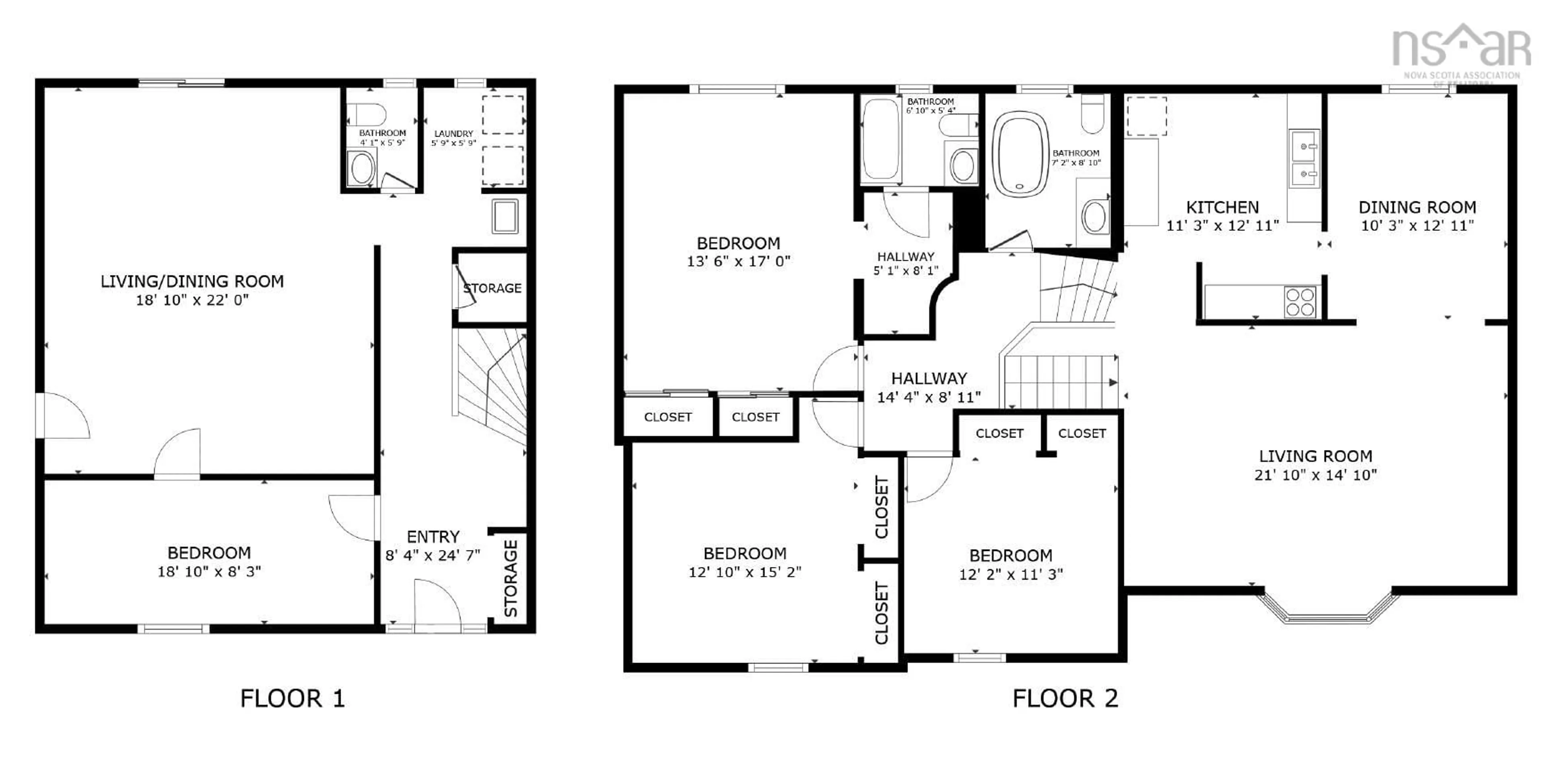
2nd Level Floor
Ensuite Bath 1
6.10 x 5.4Primary Bedroom
13.6 x 17Bedroom
12.10 x 15.2Bedroom
12.2 x 11.3Exterior
Features
Property History
20






