8215 Highway 8, South Brookfield, Nova Scotia B0T 1X0
Contact us about this property
Highlights
Estimated valueThis is the price Wahi expects this property to sell for.
The calculation is powered by our Instant Home Value Estimate, which uses current market and property price trends to estimate your home’s value with a 90% accuracy rate.Not available
Price/Sqft$276/sqft
Monthly cost
Open Calculator
Description
Set on a picturesque 4.91-acre parcel, this well maintained country home offers space, privacy, and thoughtful upgrades throughout. Featuring 3 bedrooms and 1.5 baths, this home is designed for comfortable everyday living with the convenience of main-floor laundry. A full basement provides potential for future rec space, a home gym, or additional storage, allowing you to tailor the lower level to suit your needs. Enjoy summer evenings on the spacious deck, complemented by a covered front porch that offers practical shelter. Recent improvements include a new roof, efficient ducted heat pumps, and new garage door. Those who live for the outdoors will appreciate the space for a designated vegetable garden with an adjacent potting/storage shed, an insulated hunting blind perched on the bank overlooking the forest and the wood shed set on a concrete slab. If you are a hobbyist or a tradesperson, then you will love the impressive 40 x 30 double garage that is heated, wired, and fully insulated - offering endless possibilities. A perfect blend of country charm and modern practicality, this property is ideal for those seeking room to breathe without sacrificing comfort!
Property Details
Interior
Features
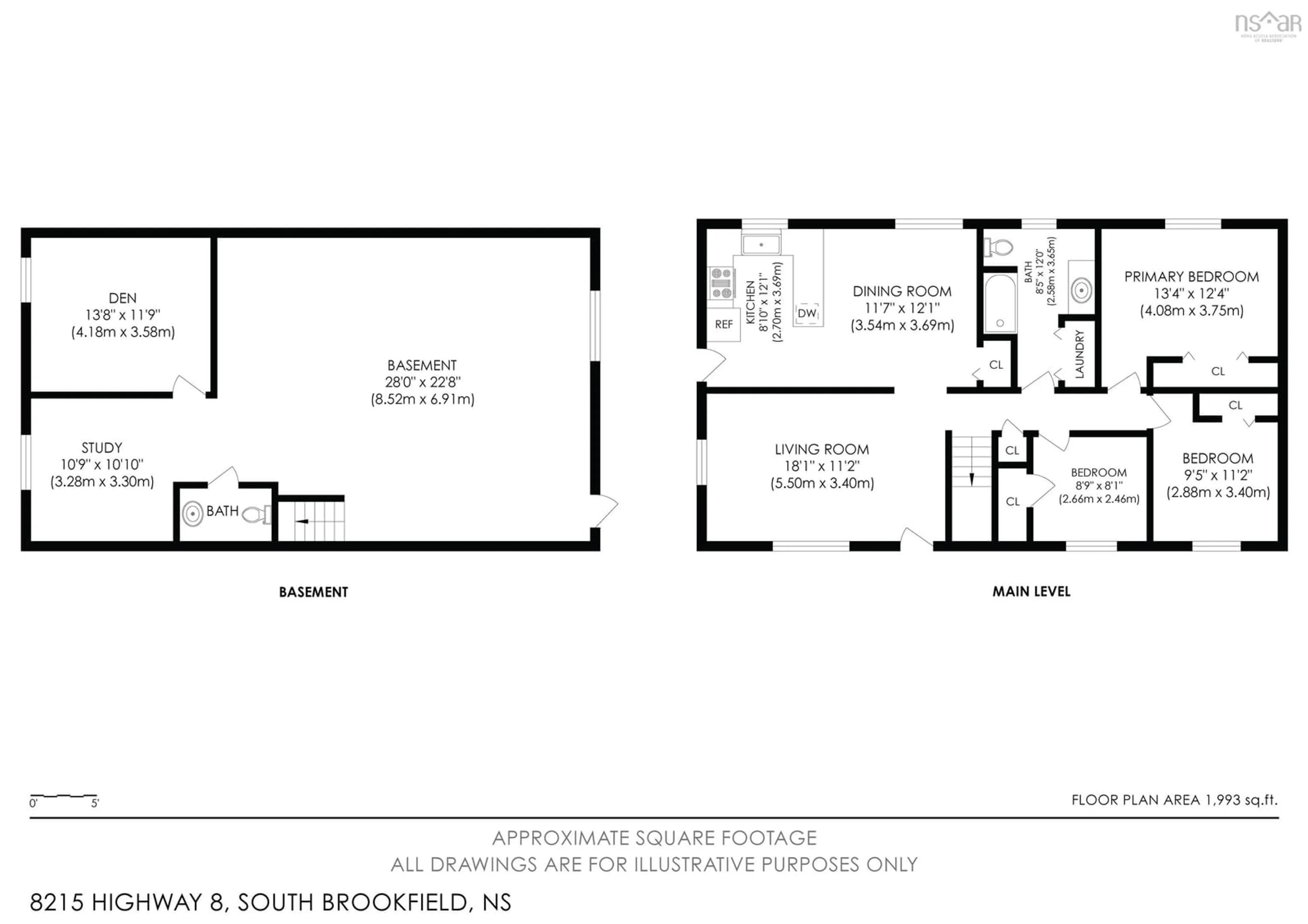
Main Floor Floor
Kitchen
8'10 x 12'1Bedroom
8'9 x 8'2Primary Bedroom
13'4 x 12'4Bedroom
9'5 x 11'2Exterior
Features
Parking
Garage spaces 2
Garage type -
Other parking spaces 0
Total parking spaces 2
Property History
50





