26 Coll Ave, Stellarton, Nova Scotia B0K 1S0
Contact us about this property
Highlights
Estimated valueThis is the price Wahi expects this property to sell for.
The calculation is powered by our Instant Home Value Estimate, which uses current market and property price trends to estimate your home’s value with a 90% accuracy rate.Not available
Price/Sqft$158/sqft
Monthly cost
Open Calculator
Description
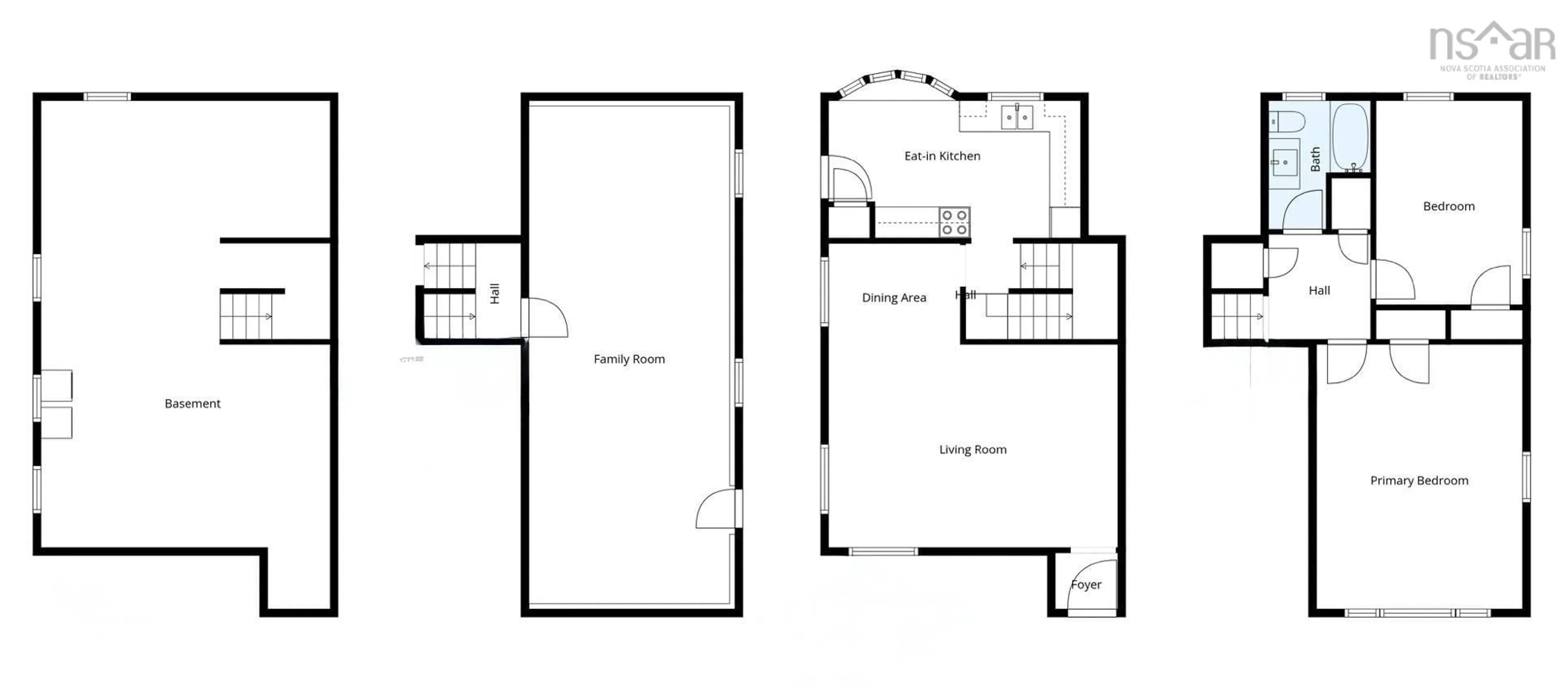
Welcome to your future dream home! This charming house in Stellarton presents a unique opportunity with its two bedrooms that can easily be converted into a three bedroom layout. The property has undergone numerous major updates, including the installation of five new heat pumps this year, along with newer windows, seamless gutters, a deck, steps, and more. The list of upgrades is extensive, showcasing a commitment to modernization and quality. The ground floor features a massive family room with outside access, offering endless possibilities for utilization. The spacious primary bedroom is designed to capture ample natural light, creating a bright and inviting atmosphere. Electrical upgrades have been completed, featuring a new 200 amp breaker panel to ensure safety and efficiency. The addition of new heat pumps provides exceptional climate control and air-conditioning during the summer months, complemented by extra blown-in insulation for enhanced energy efficiency. This upgraded home offers a blend of comfort and functionality, making it a wise investment for the discerning buyer. Don't miss out on this affordable opportunity to own a beautifully renovated home with limitless potential. Act swiftly as BLINK! and it could be sold!
Property Details
Interior
Features
Main Floor Floor
Kitchen
8'9 x 16Dining Room
6'10 x 8'7Living Room
13'2 x 18'10Family Room
33 x 12'9Exterior
Features
Property History
41






