2-25 Treehouse Lane, Bridgewater, Nova Scotia B4V 9H9
Contact us about this property
Highlights
Estimated valueThis is the price Wahi expects this property to sell for.
The calculation is powered by our Instant Home Value Estimate, which uses current market and property price trends to estimate your home’s value with a 90% accuracy rate.Not available
Price/Sqft$581/sqft
Monthly cost
Open Calculator
Description
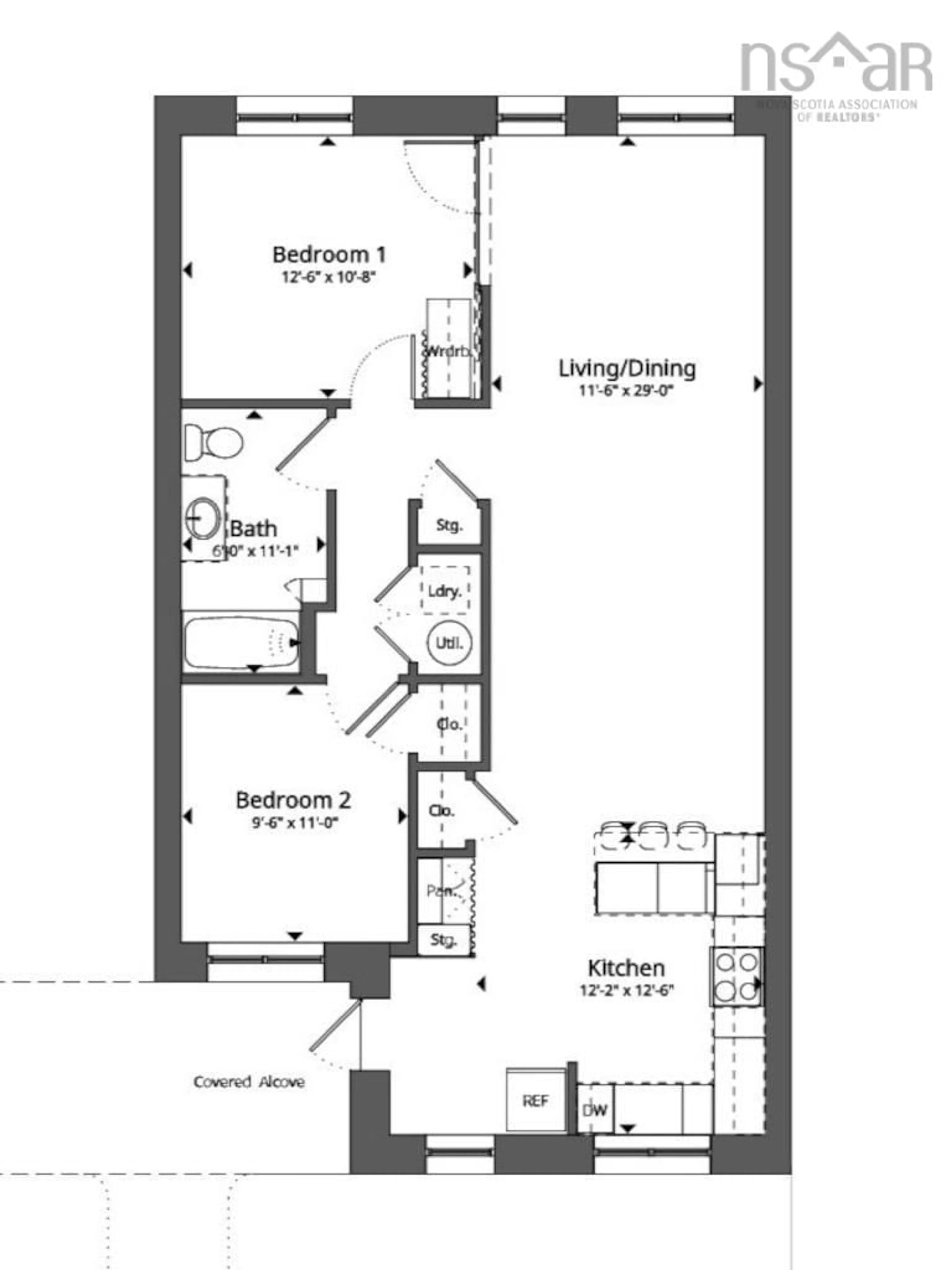
Welcome to Treehouse Village Ecohousing, Atlantic Canada's first cohousing community. This move-in ready 2-bedroom, 1-bath, ground-level condo (946 sq. ft.) in Bridgewater, N.S. is part of a 30-unit development built to Passive House standards, with solar panels on all rooftops. The intergenerational neighbourhood features a car-free central green where kids play safely, neighbours share outdoor meals, and friendships grow naturally. Condo fees ($354.84/month for 2025) cover heat, water, electricity, and internet, plus access to many outstanding shared amenities, including a dining hall, gym, workshop, coworking space, guest rooms, EV car share, and gardens. The 16-acre property connects to the Centennial Trail, with shops, schools, library and recreation within walking/biking distance. Current owners are downsizing within this community, because they love living at Treehouse Village. VISIT THE REALTOR'S WEBSITE FOR MORE INFORMATION.
Property Details
Interior
Features
Main Floor Floor
Living Room
11.6 x 29Kitchen
12.2 x 12.6Primary Bedroom
12.6 x 10.8Bedroom
9.6 x 11Condo Details
Inclusions
Property History
21






