317 Stonehurst Rd, Stonehurst North, Nova Scotia B0J 2C0
Contact us about this property
Highlights
Estimated valueThis is the price Wahi expects this property to sell for.
The calculation is powered by our Instant Home Value Estimate, which uses current market and property price trends to estimate your home’s value with a 90% accuracy rate.Not available
Price/Sqft$861/sqft
Monthly cost
Open Calculator
Description
Rarely do you find a unique opportunity such as this, to own your own little piece of oceanfront paradise on historic, storied Schooner Cove in Stonehurst, Nova Scotia. Formerly the old community school house, this exquisite renovation sits on 2.4 acres with over 300 feet of ocean frontage, just 10 minutes from the Town of Lunenburg. Immediately upon arriving you will feel your shoulders relax and your breath deepen. The building features a 50 year metal shingled roof, gorgeous thick cut granite and hand hewn hemlock walls and ceilings. The original curved beams are highlighted by the vaulted ceiling and many skylights throughout. The loft bedroom features a pop out skylight balcony to wrap yourself in the ocean breezes and views and overlooks the wood stove and custom metallic polished concrete floors below. The spacious open kitchen welcomes in the ocean views and offers quartz countertops and walnut cabinetry with pullouts and plenty of storage space and a full suite of new LG appliances. The open concept plan allows for ease of entertaining and the cozy Morso Danish wood stove warms the custom concrete benches along the back wall and is visible throughout. Two sets of glass doors open to the large oceanside deck and invite in the ocean breezes and beautiful sunsets. A full bath with tiled walk in shower and full laundry are conveniently located next to the entry. A new septic system and drilled well service the property seamlessly. The landscape boasts several varieties of fruit trees, a pond, a natural stone parking area and careful landscaping that both compliments the natural environment and offers additional privacy. Across the cove, you will find conservancy common land ensuring continued privacy. The area is renowned for kayaking and sailing alike and is just 10 minutes to the vibrant UNESCO town of Lunenburg, 25 minutes to Chester and 60 minutes to Halifax. Welcome home to 317 Stonehurst Rd. North! HST is over and above purchase price.
Property Details
Interior
Features
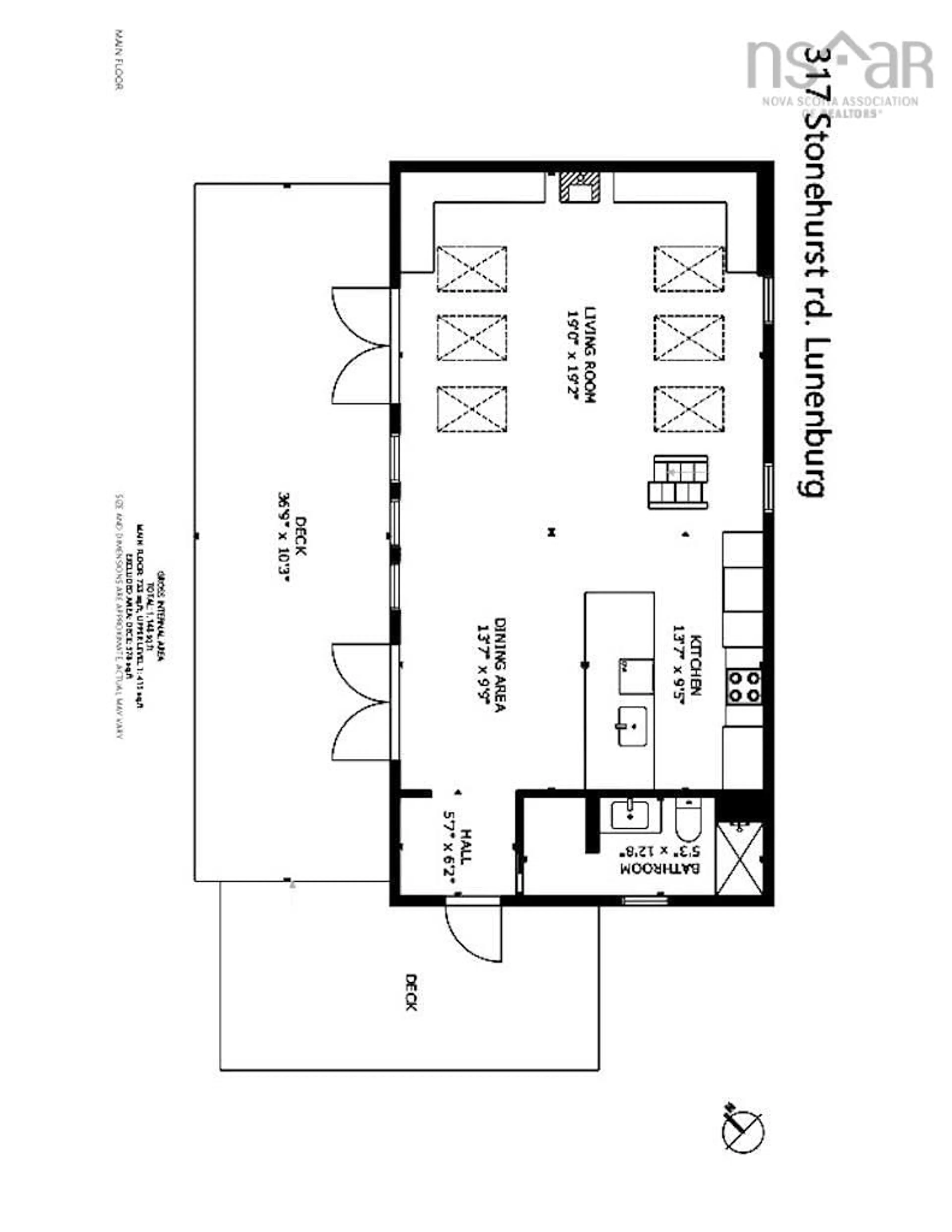
Main Floor Floor
Foyer
5'7 x 6'2Laundry/Bath
5'3 x 12'8OTHER
13'7 x 9'9Kitchen
13'7 x 9'5Exterior
Features
Property History
49








