Hybrid Lane #Unit 210, East Uniacke, Nova Scotia B0N 1Z0
Contact us about this property
Highlights
Estimated valueThis is the price Wahi expects this property to sell for.
The calculation is powered by our Instant Home Value Estimate, which uses current market and property price trends to estimate your home’s value with a 90% accuracy rate.Not available
Price/Sqft$400/sqft
Monthly cost
Open Calculator
Description
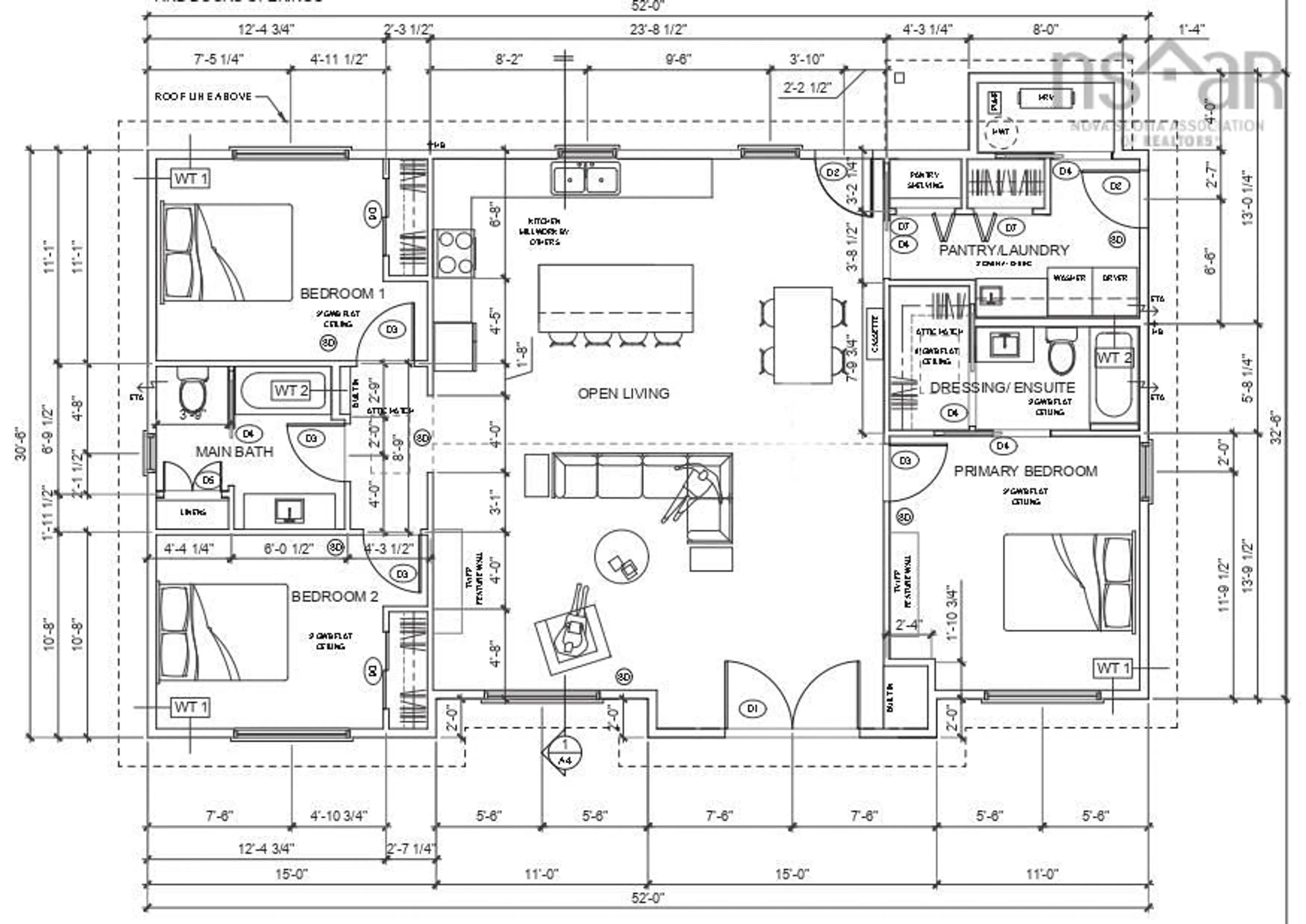
Luxury living in Cottage Country awaits! Located on a 1.3 acre lot in East Uniacke, this designer 3 bedroom, 2 bath home is currently under construction and just minutes from Long Lake's boat launch, dock, and scenic trails. Inside, you'll be greeted by an open concept living area featuring 9 ft ceilings throughout and designer lighting that elevates every room. The custom kitchen with a walk-in pantry and laundry room is open to the living room, complete with a cozy propane fireplace. The primary suite provides a private retreat with its own full ensuite bath, while two additional large bedrooms and a full bath are thoughtfully located on the opposite side of the home. The home is crafted with universal design principles and ensures comfort and accessibility for all. Step outside to your back deck overlooking peaceful nature. Enjoy modern conveniences including heat pumps and an electric vehicle charging station. The condo fee covers snow removal and garbage collection, offering low-maintenance living. You will love the optional 18x24 weather tight detached garage that can be added to the purchase. Adventure is right at your doorstep with swimming, fishing, and boating at Long Lake and exploring groomed hiking trails. This home truly has it all, offering quiet country living with the convenience of being less than 30 minutes from all amenities in HRM.
Property Details
Interior
Features
Main Floor Floor
Great Room
23'8 x 26'10Primary Bedroom
11 x 13'9Ensuite Bath 1
4 8 x 5'8Laundry
8 x 7'1Exterior
Features
Condo Details
Inclusions
Property History
6






