26 Frederick Allen Dr, Lantz, Nova Scotia B2S 1X9
Contact us about this property
Highlights
Estimated valueThis is the price Wahi expects this property to sell for.
The calculation is powered by our Instant Home Value Estimate, which uses current market and property price trends to estimate your home’s value with a 90% accuracy rate.Not available
Price/Sqft$273/sqft
Monthly cost
Open Calculator
Description
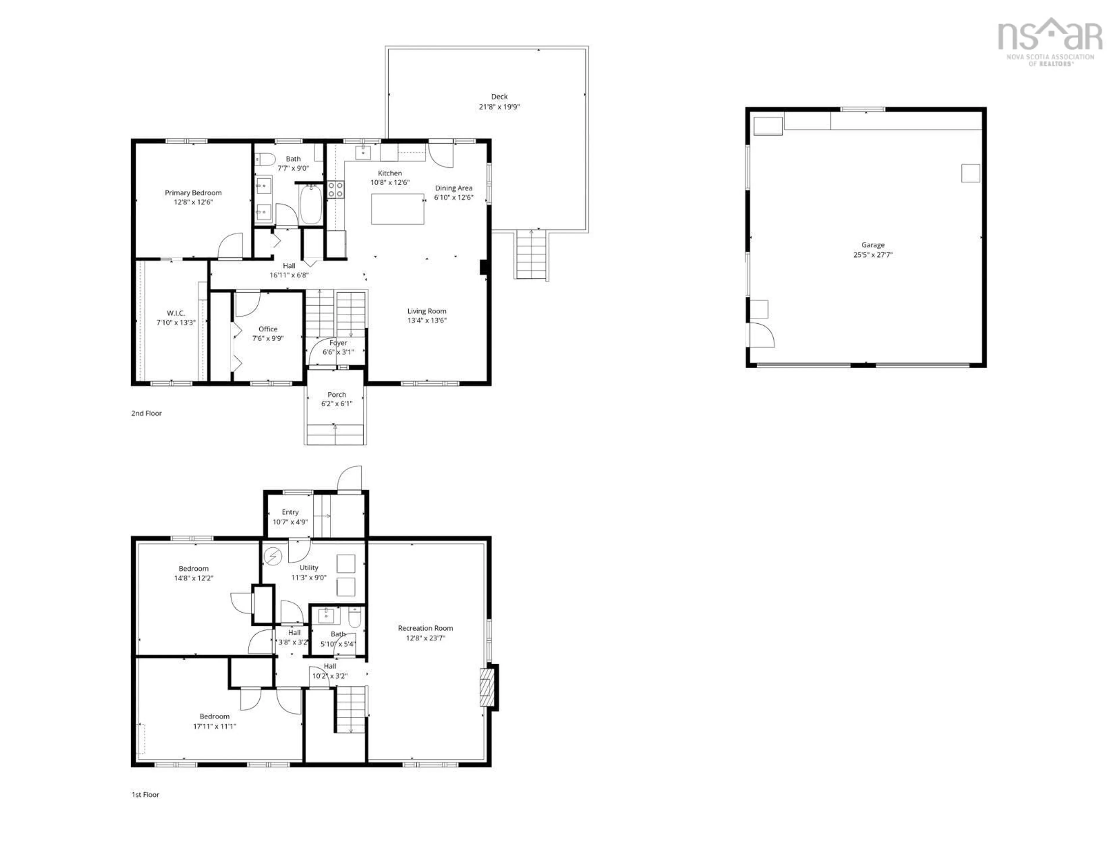
You will be impressed when you enter this completely renovated home featuring 4 bedrooms and 1.5 baths. The open concept main level with stunning new kitchen, modern bathrooms, Ikea custom designed walk-in closet, all new appliances, new roof, decks, electric baseboard heaters, trim, heat pumps and custom built electric fireplace in the family room. The sellers have also installed an air exchanger and a new hot water tank and have updated the plumbing and electrical. A 26x28 double detached and wired garage is also part of this property. Sitting on a corner lot in a quiet subdivision with nothing to do but move in. This property is a gem. Book your viewing soon before it is gone.
Property Details
Interior
Features
Main Floor Floor
Kitchen
10.8 x 12.6Living Room
13.4 x 13.6Bath 1
7.7 x 9Bedroom
7.6 x 9.9Exterior
Features
Parking
Garage spaces 2
Garage type -
Other parking spaces 0
Total parking spaces 2
Property History
36







