114 Charleswood Dr, Windsor Junction, Nova Scotia B2T 1G3
Contact us about this property
Highlights
Estimated valueThis is the price Wahi expects this property to sell for.
The calculation is powered by our Instant Home Value Estimate, which uses current market and property price trends to estimate your home’s value with a 90% accuracy rate.Not available
Price/Sqft$298/sqft
Monthly cost
Open Calculator
Description
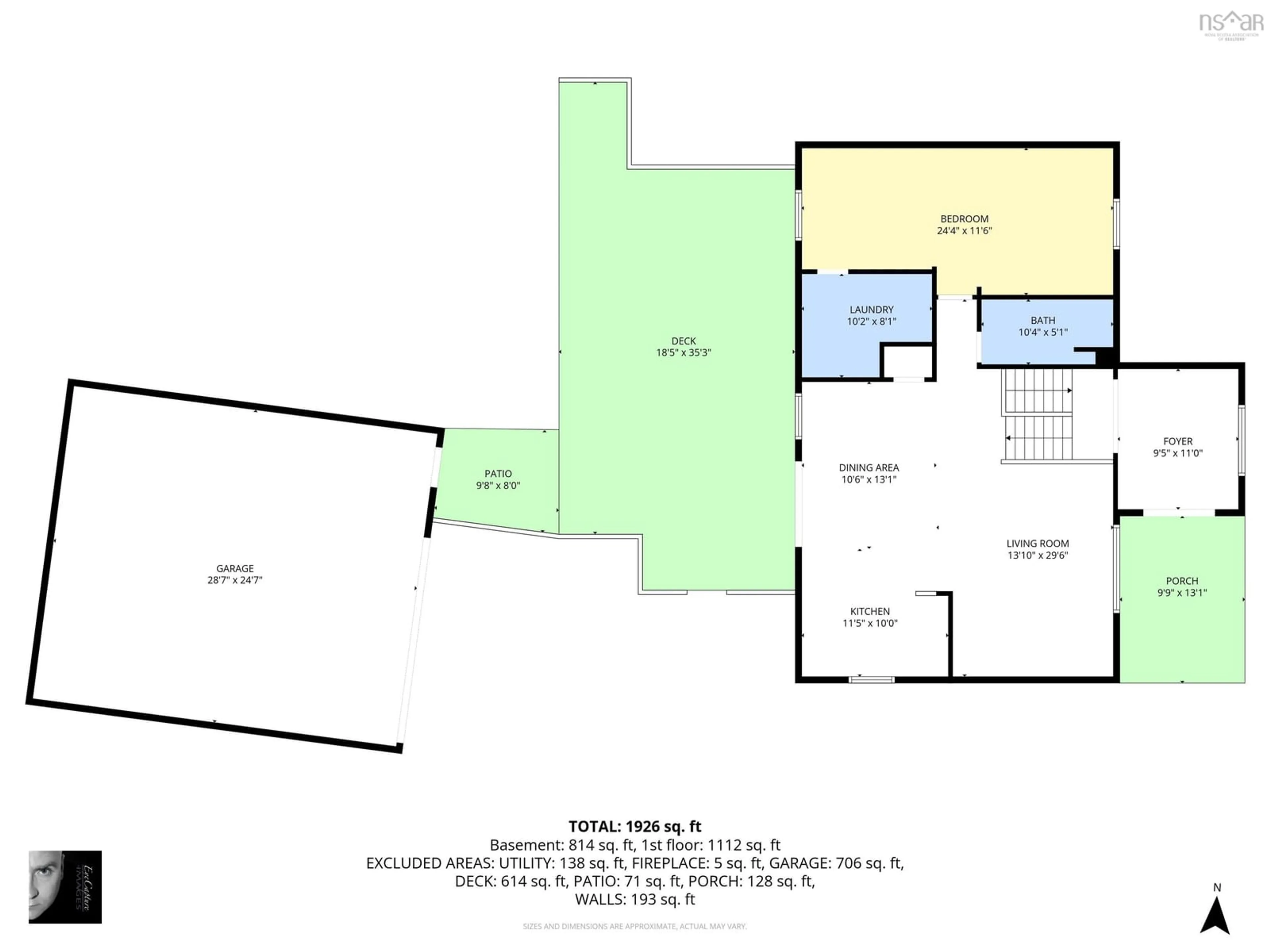
Looking for more space without giving up convenience? This Windsor Junction home delivers, set on a landscaped 15,000 sq ft lot with a private, treed backyard. Inside, the main level has been fully repainted and opened up to create a bright, easy flow between the living, kitchen, and dining areas, a layout that works for both everyday living and entertaining. You’ll find 3 bedrooms with the main floor having the oversized primary and closet into laundry, 2 full baths, and a fully finished lower level that adds flexible space for a rec room, home office, or guests. Outside, the 29’ x 25’ detached garage gives you room for vehicles, storage, or projects, while the yard offers space to enjoy without feeling exposed. Key updates are already handled, including ductless heat pumps on both levels, a Generlink transfer switch, and a new front porch and mudroom addition. All of this in a location that keeps you close to Fall River amenities and major routes.
Property Details
Interior
Features
Main Floor Floor
Foyer
9'5 x 11'0Kitchen
11'5 x 10'0Living Room
13'10 x 29'6Dining Nook
10'6 x 13'1Exterior
Features
Parking
Garage spaces 2
Garage type -
Other parking spaces 0
Total parking spaces 2
Property History
46








