99 Wilderness Dr, Portuguese Cove, Nova Scotia B3V 1N5
Contact us about this property
Highlights
Estimated valueThis is the price Wahi expects this property to sell for.
The calculation is powered by our Instant Home Value Estimate, which uses current market and property price trends to estimate your home’s value with a 90% accuracy rate.Not available
Price/Sqft$471/sqft
Monthly cost
Open Calculator
Description
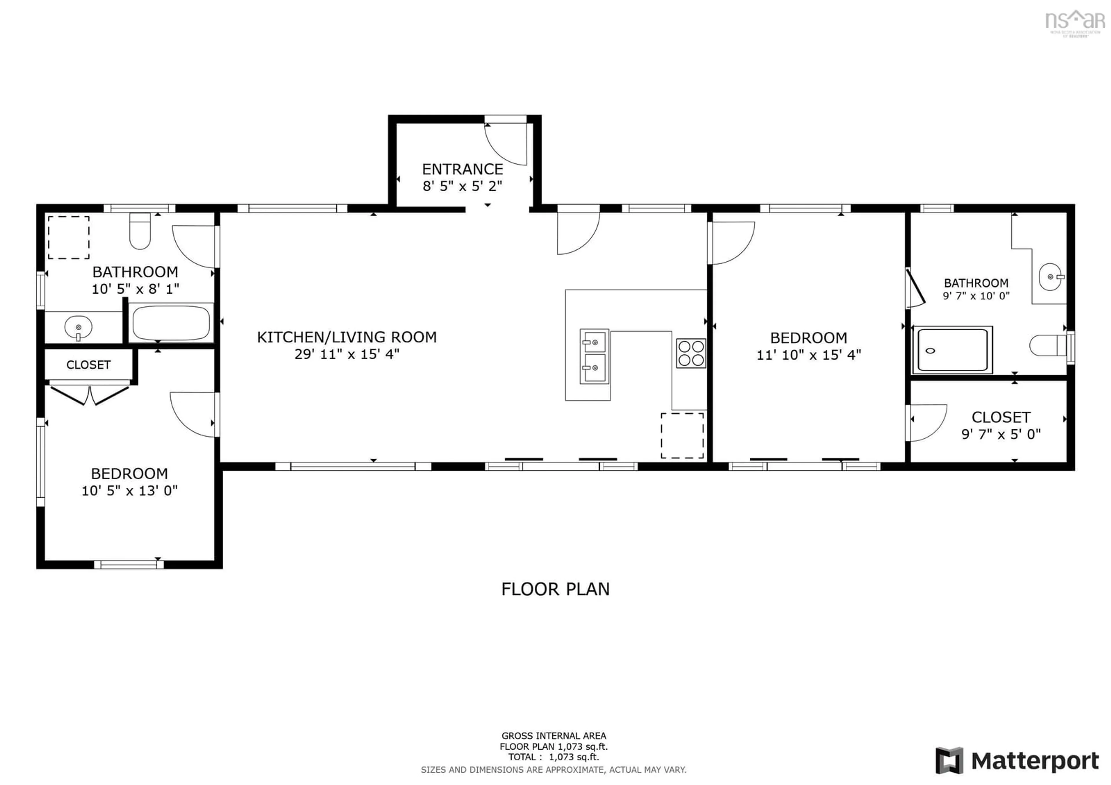
Calling all downsizers and “tiny home “enthusiasts! 99 Wilderness Drive is your perfect balance of one level living new construction that’s all about luxury and privacy in a woodland setting. This 2 bed 2 bath1100 sq ft one story slab on grade homeis located on 5 acres of land in Avalon Park, a gated community in beautiful Portuguese Cove. Enter the spacious foyer for a view into the gorgeous great room, with soaring ceilings and wood beams it’s such an open and inviting space. A modern white kitchen with quartz counters, glass backsplash, and all brand-new stainless-steel appliances will be great for the chef of the family who will enjoy the green view from the huge windows and oversized patio doors. The back deck runs the length of the house and is an easy step into the backyard even roughed in ready for your hot tub! On one side of the home is the primary bedroom, also featuring patio doors to the deck, a massive walk-in closet with storage, and a dreamy ensuite with custom tile walk in shower. The other side offers a second bedroom, and the main bath with tiled shower/tub and laundry. There are some very “smart” upgrades in this home too! Starlink is included, along with a full camera system and motion detectors around the perimeter, a full Alexa system to control lights and cameras. There is baseboard and in floor heat. A large shed is perfect for storage, and the paved driveway offers ample parking. There is a perfect spot for a large garage with or without living space right at the end of the driveway! Avalon offers community exclusive access to five lakes, lots of hiking trails and nearby ocean views. Be in downtown Halifax in 30 minutes or be at Crystal Crescent beach in under 20! It’s a lifestyle and such a unique property it’s the one you’ve been waiting for!
Property Details
Interior
Features
Main Floor Floor
Great Room
29.11 x 15.4Foyer
8.5 x 5.2Primary Bedroom
Ensuite Bath 1
9.7 x 10Property History
31






