7 Daylily Lane, Lake Charlotte, Nova Scotia B0J 1L0
Contact us about this property
Highlights
Estimated valueThis is the price Wahi expects this property to sell for.
The calculation is powered by our Instant Home Value Estimate, which uses current market and property price trends to estimate your home’s value with a 90% accuracy rate.Not available
Price/Sqft$444/sqft
Monthly cost
Open Calculator
Description
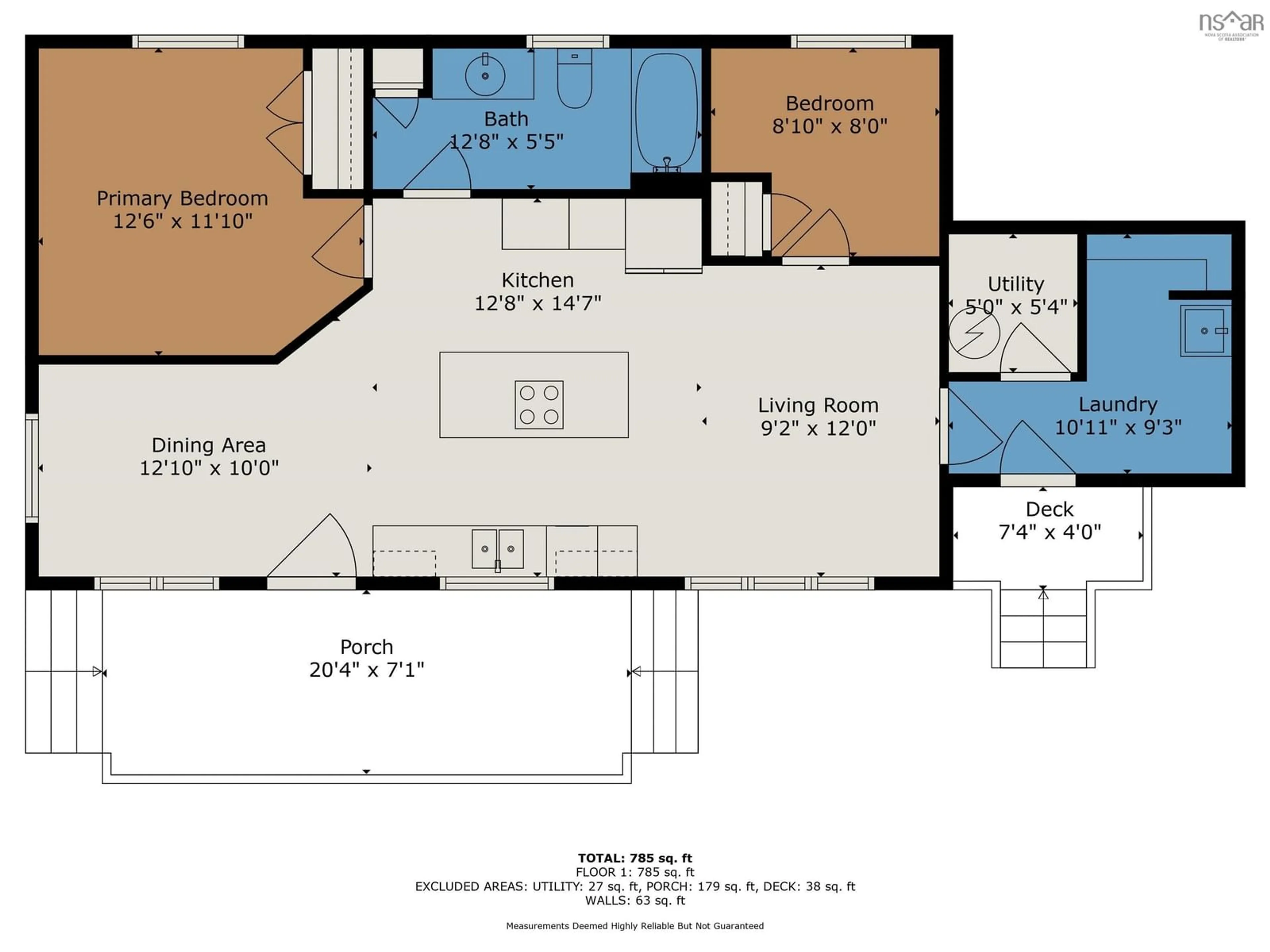
This stunning renovated lakeside retreat is ready to be enjoyed! Featuring an open concept floor plan this home has a small footprint with a big feel. The thoughtfully laid out custom kitchen features both a quartz counters and island, wall oven, farm sink, dining nook and lake views! The spacious primary bedroom has plenty of natural light and a double closet. 4pc bath with custom tile surround conveniently separates the primary and secondary bedrooms. Large laundry/ utility room can be found just off the living area with it's own walk out to a 7 x 4 deck! This home has seen plenty of updates including metal roof, siding, windows, doors, decks, heat pump, wiring/plumbing, drilled well and so much more! Deeded lake access from two different point ( see map) to beautiful Lake Charlotte and only 35 minutes to metro, 25 minutes to Martinique beach, 15 minutes to Clam Harbour Beach and 10 minutes to the amenities of Jeddore (Foodland,hardware, pub/cafe, gas) Quick closing available!
Property Details
Interior
Features
Main Floor Floor
Dining Nook
12.10 x 10Kitchen
12.8 x 14.7Living Room
9.2 x 12Primary Bedroom
12.6 x 11.10Exterior
Features
Property History
40








