Sold conditionally
23 days on Market
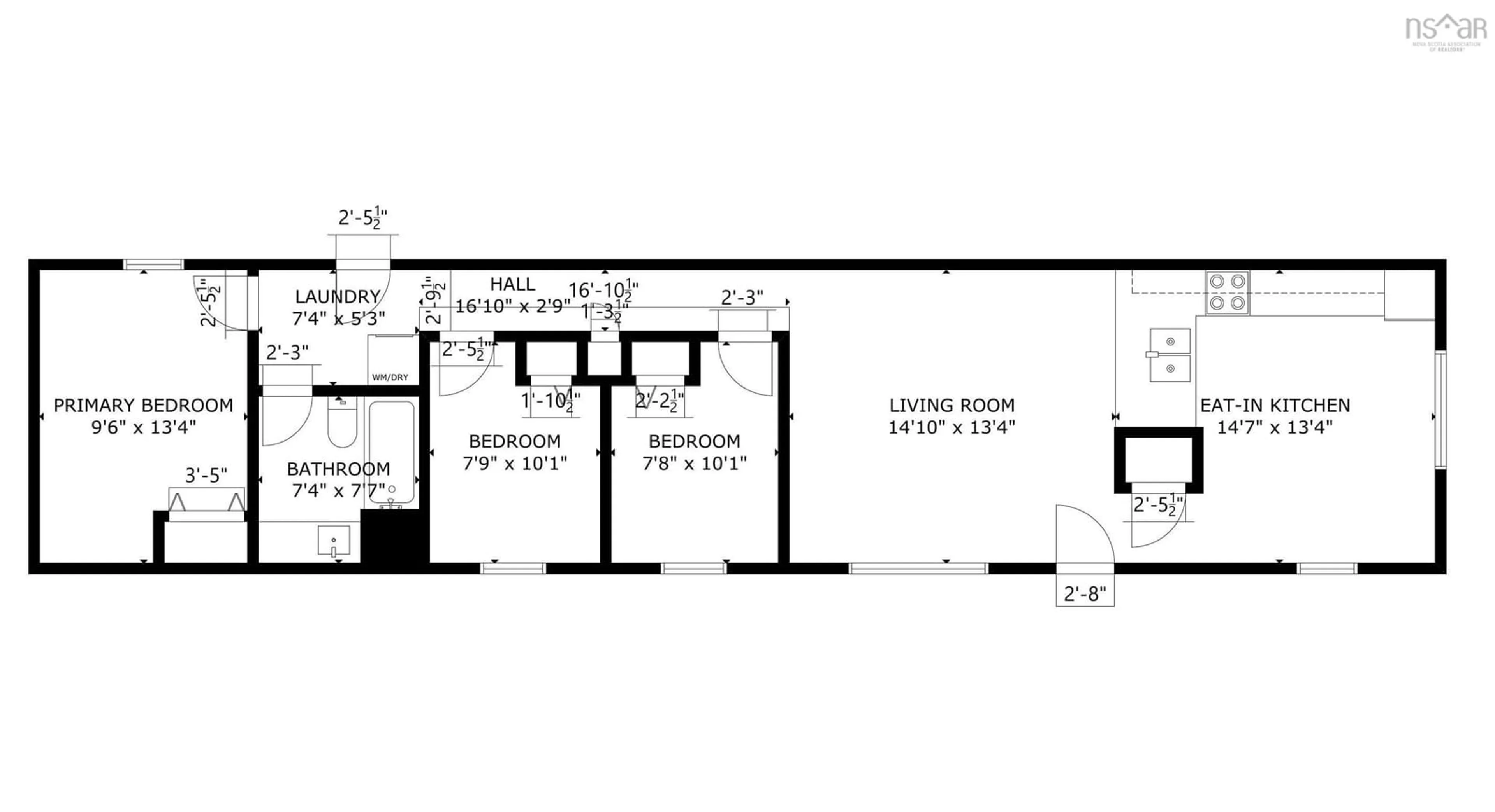
40 Skyline Dr, Harrietsfield, Nova Scotia B3V 1B3
•
•
•
•
Sold for $···,···
•
•
•
•
Contact us about this property
Highlights
Days on marketSold
Estimated valueThis is the price Wahi expects this property to sell for.
The calculation is powered by our Instant Home Value Estimate, which uses current market and property price trends to estimate your home’s value with a 90% accuracy rate.Not available
Price/Sqft$265/sqft
Monthly cost
Open Calculator
Description
Property Details
Interior
Features
Heating: Baseboard, Ductless
Exterior
Features
Patio: Deck
Parking
Garage spaces -
Garage type -
Total parking spaces 2
Property History
Oct 3, 2025
ListedActive
$237,500
23 days on market
41Listing by nsar®
41Login required
Sold
$•••,•••
Login required
Listed
$•••,•••
Stayed --6 days on market
Listing by nsar®

Property listed by Royal LePage Anchor Realty, Brokerage

Interested in this property?Get in touch to get the inside scoop.





