54 Parish St #716, Fall River, Nova Scotia B2T 0W9
Contact us about this property
Highlights
Estimated valueThis is the price Wahi expects this property to sell for.
The calculation is powered by our Instant Home Value Estimate, which uses current market and property price trends to estimate your home’s value with a 90% accuracy rate.Not available
Price/Sqft$558/sqft
Monthly cost
Open Calculator
Description
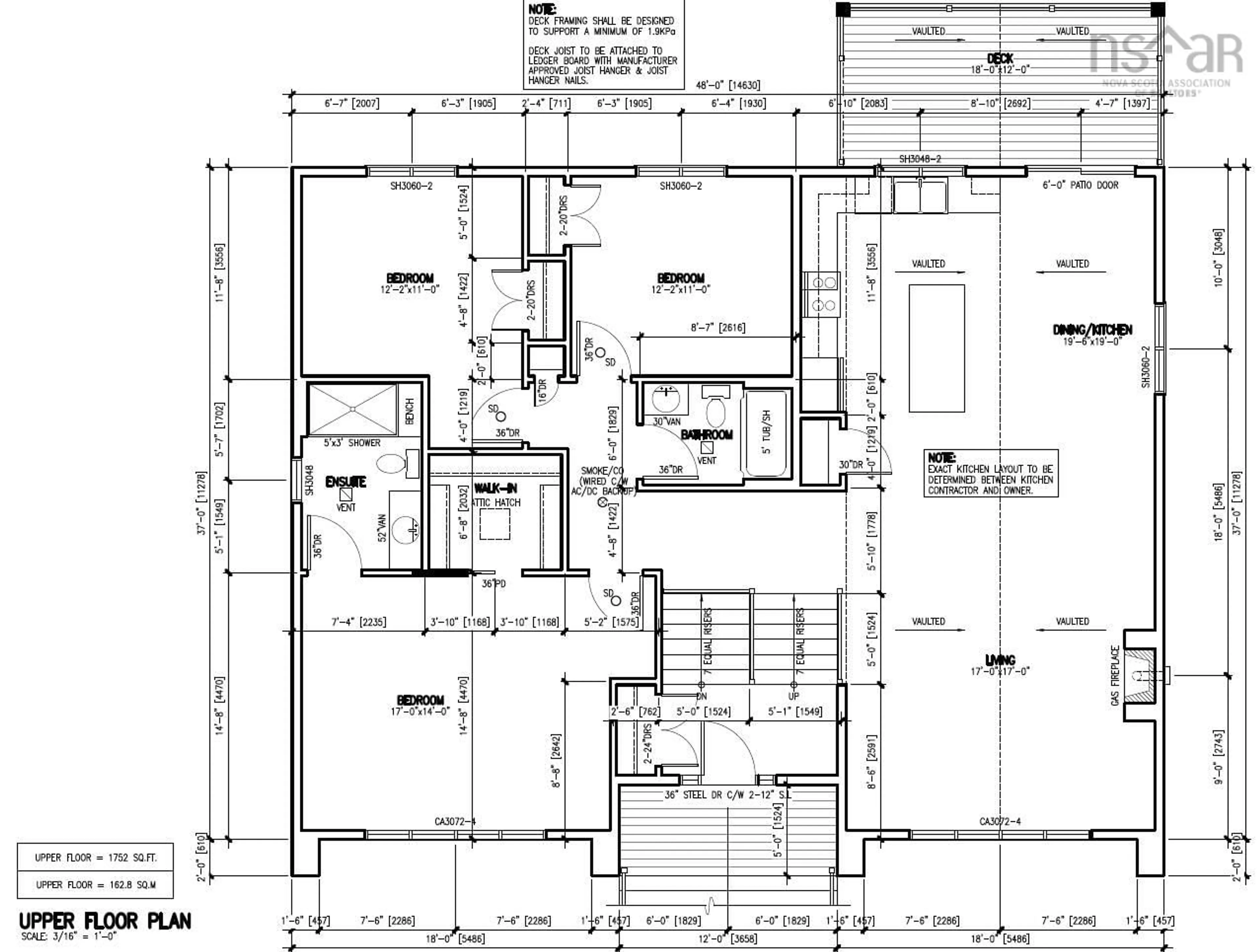
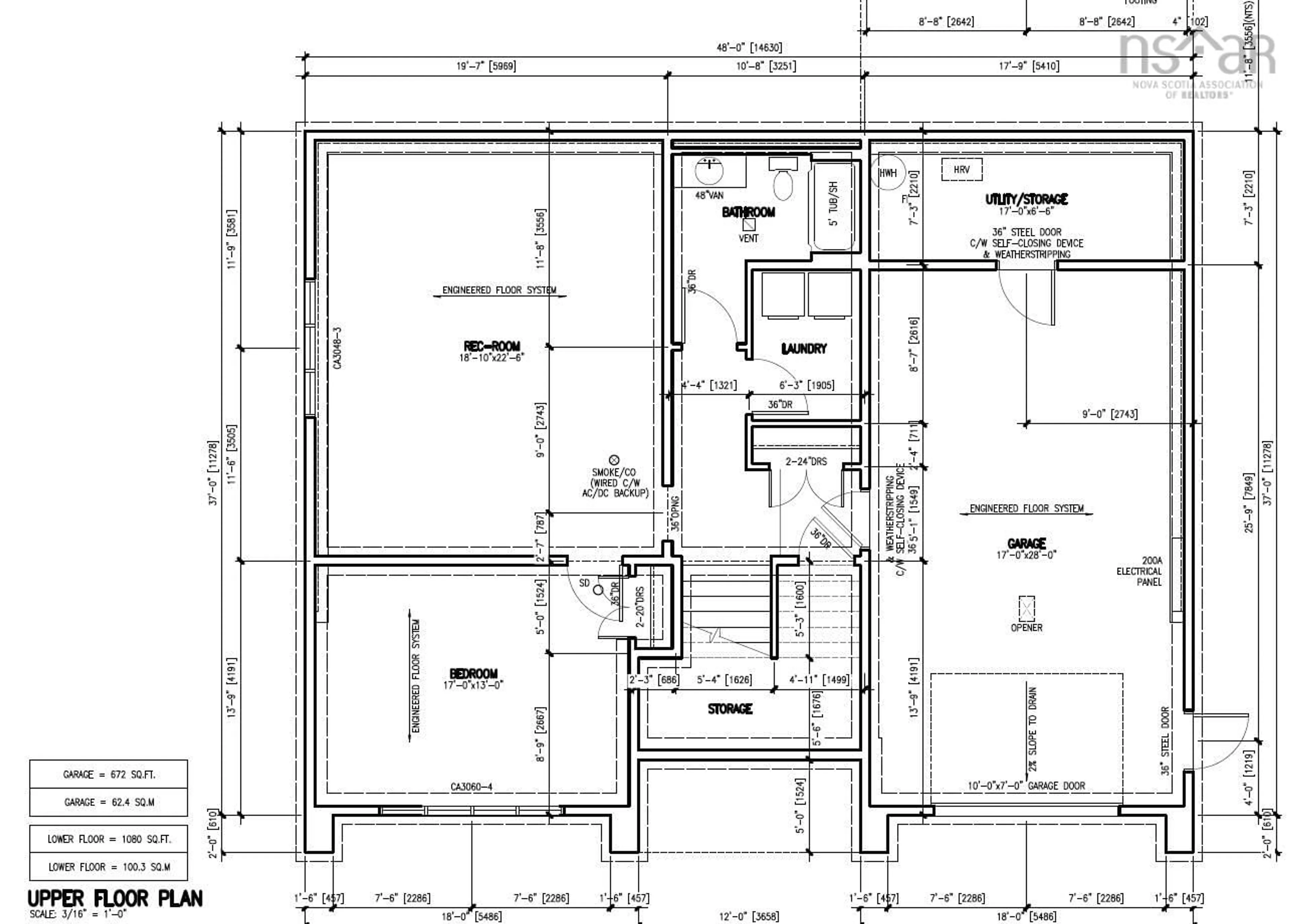
Another quality built Gerald Mitchell Home. The Bear Split Entry is our latest and quickly becoming our most popular split entry plan. Spacious and efficient, this four bedroom, three bath family home checks all the boxes. Beautiful open concept layout, vaulted ceilings, elegant design, custom kitchen with stone countertops, lovely custom cabinets, and pantry, living room propane fireplace, beautiful covered back deck, 3 bedrooms up. Master suite, with ensuite and walk in closet, plus a main bath for the kids and guests. Downstairs you'll find a fourth bedroom, a spacious family room, bathroom, laundry, extra storage and an attached garage. Efficient heat pumps and layout, modern and bright, the Bear split entry is a gem. Parish Street is situated in the sought after and newest section of Kinloch subdivision, where you'll find many families, quiet streets and nature all around. The large wooded lots offer privacy and beauty. Fall River features all the amenities you'll need, shopping, dining, and recreation. Many parks trails and lakes are all around. 15 mins to Dartmouth or Bedford shopping commons, and 10 mins to the airport.
Property Details
Interior
Features
Main Floor Floor
Living Room
17 x 17Kitchen
19.6 x 19Bath 1
6 x 6Primary Bedroom
17 x 14Exterior
Features
Parking
Garage spaces 1
Garage type -
Other parking spaces 2
Total parking spaces 3
Property History
11





