120 Beau Run #Lot 5, East Petpeswick, Nova Scotia B0J 2L0
Contact us about this property
Highlights
Estimated valueThis is the price Wahi expects this property to sell for.
The calculation is powered by our Instant Home Value Estimate, which uses current market and property price trends to estimate your home’s value with a 90% accuracy rate.Not available
Price/Sqft$407/sqft
Monthly cost
Open Calculator
Description
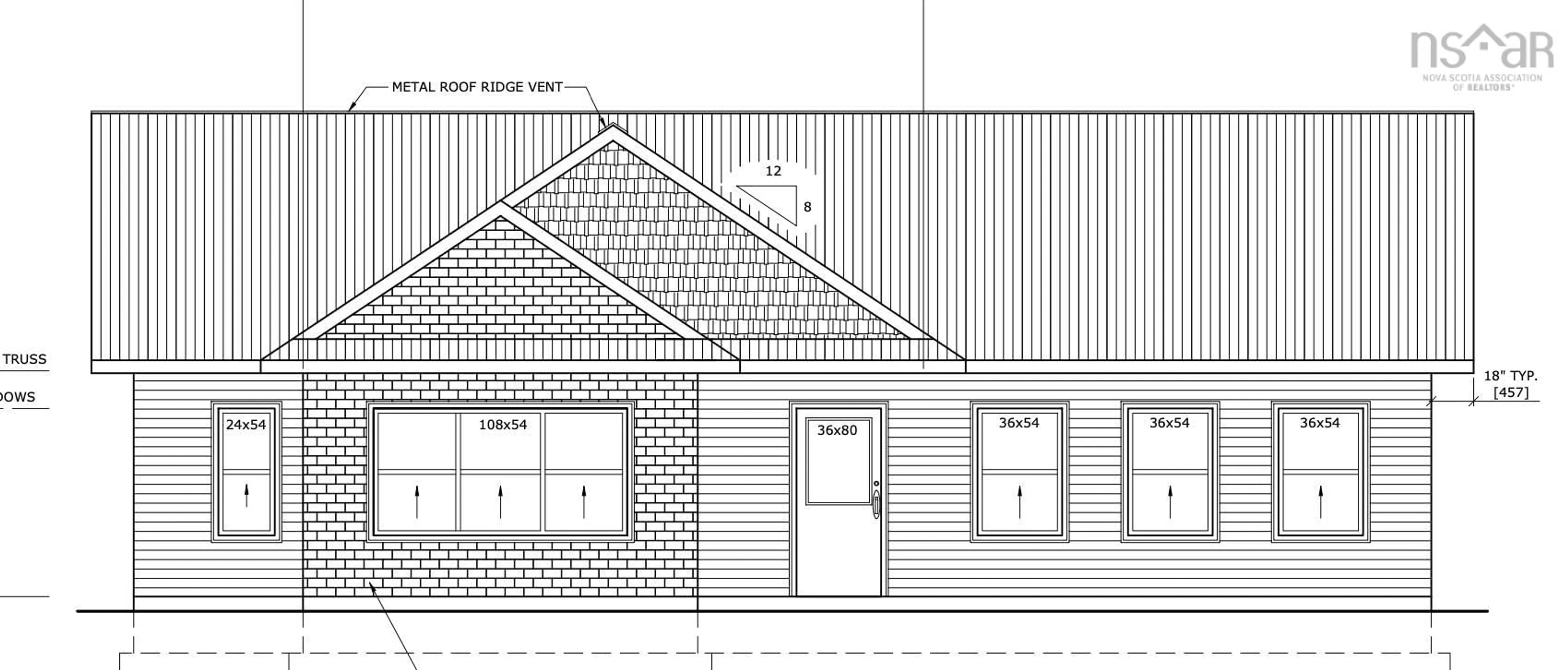
This sweet East Petpeswick bungalow is under construction and ready for occupancy late August 2026! With three bedrooms and 2 bathrooms spread over nearly 1500 sqft, this floorplan is functional and incredibly comfortable. The foyer allows space for the whole family to enter and drop their snowy boots. The living room offers ample space for loads of furniture, while being bright and grand with vaulted ceilings, and wonderful southern exposure. The open concept dining room and kitchen can fit your best dining set along with three bar stools at the island. This 4.5 acre lot offers incredible privacy and a two car detached garage! Get involved in this build now and have your choice of many interior finishes!
Property Details
Interior
Features
Main Floor Floor
Foyer
8' x 6'5Living Room
18'8 x 16'Dining Room
16' x 10'Kitchen
11'2 x 11'10Exterior
Features
Parking
Garage spaces 2
Garage type -
Other parking spaces 0
Total parking spaces 2
Condo Details
Inclusions
Property History
4



