327 Portland St, Dartmouth, Nova Scotia B2Y 1K5
Contact us about this property
Highlights
Estimated valueThis is the price Wahi expects this property to sell for.
The calculation is powered by our Instant Home Value Estimate, which uses current market and property price trends to estimate your home’s value with a 90% accuracy rate.Not available
Price/Sqft-
Monthly cost
Open Calculator
Description
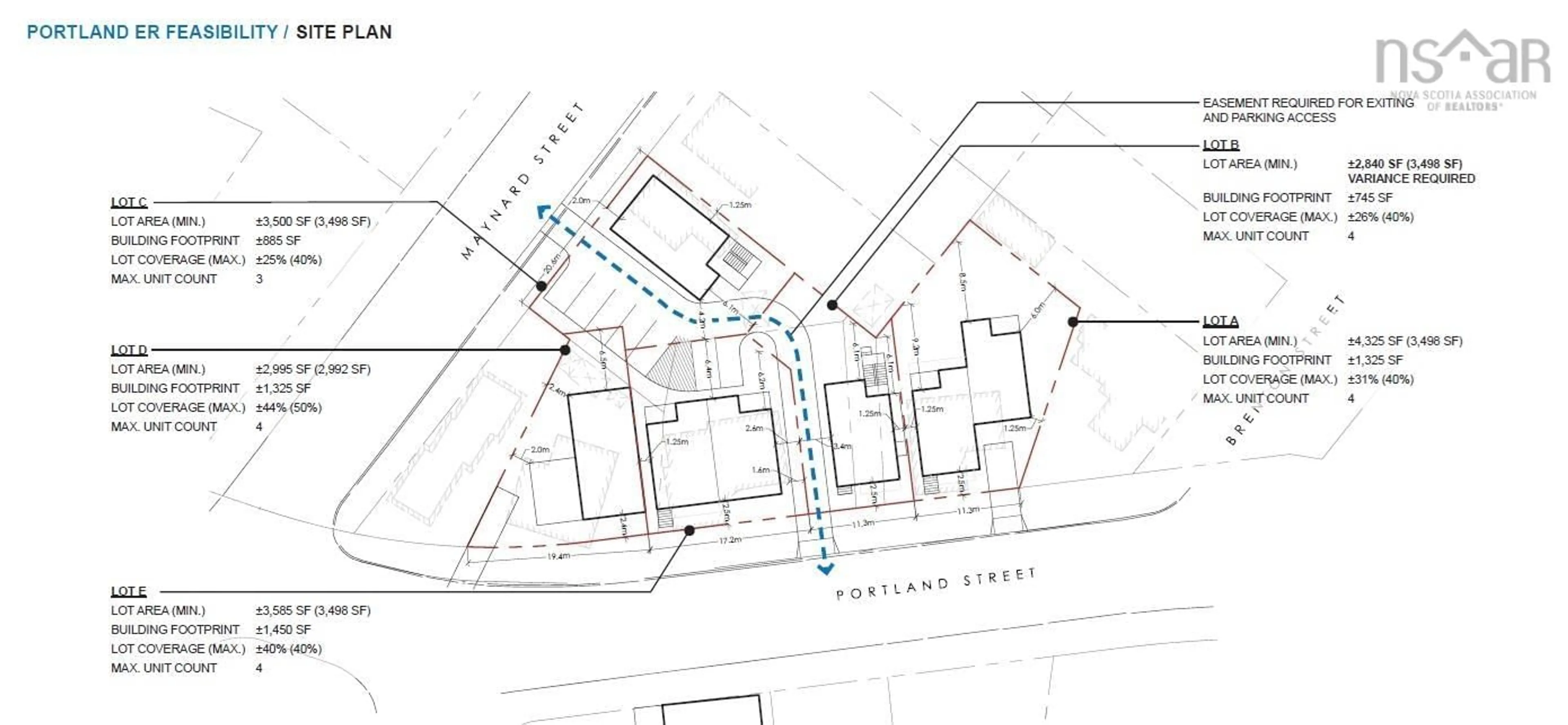
Prime 7-PID assembled development block in the heart of Dartmouth South on Portland and Maynard Streets. Sold as one complete package only. Core 5 lots (323-325 Portland St, 327 Portland St, vacant land between 327 & 331, 331 Portland St, and 10 Maynard St) are subject to SUBDIV-2024-00018 (currently in Applicant revisions). Bonus pair at 14 + 16 Maynard St are two adjacent 3300 sq ft parcels that could combine into one ~6,600 sq ft lot to maximize up to 8-unit ER-3 density. Six occupied units generate $117,750 gross annual rent ($9,812/month) with tenants paying their own utilities. At market rates for similar properties these units could reach ~$141,600/year. Renovating 331 Portland adds strong upside and could add up to $24,000/year as a single-family or $46,000/year as a duplex — bringing fully stabilized gross rent to ~$185,000 per year. Buyers can maintain cash flow from the core occupied buildings while redeveloping through these opportunities: combine 14 + 16 Maynard for maximum density, update the subdivision plan to current ER-3 specs to create additional lots/units, or maintain and expand existing buildings with new units. Prime location steps from Five Corners on the busy Portland Street rapid-transit corridor, walking distance to all levels of schools, NSCC Ivany Campus and Downtown Dartmouth. Zzap Feasibility Study, DesignPoint survey and full details on our website (www.portlandmaynard.ca). Serious investors and developers only.
Property Details
Interior
Features
Property History
15





