66 Simona Dr #SMD09A, Dartmouth, Nova Scotia B2X 0C9
Contact us about this property
Highlights
Estimated valueThis is the price Wahi expects this property to sell for.
The calculation is powered by our Instant Home Value Estimate, which uses current market and property price trends to estimate your home’s value with a 90% accuracy rate.Not available
Price/Sqft$284/sqft
Monthly cost
Open Calculator
Description
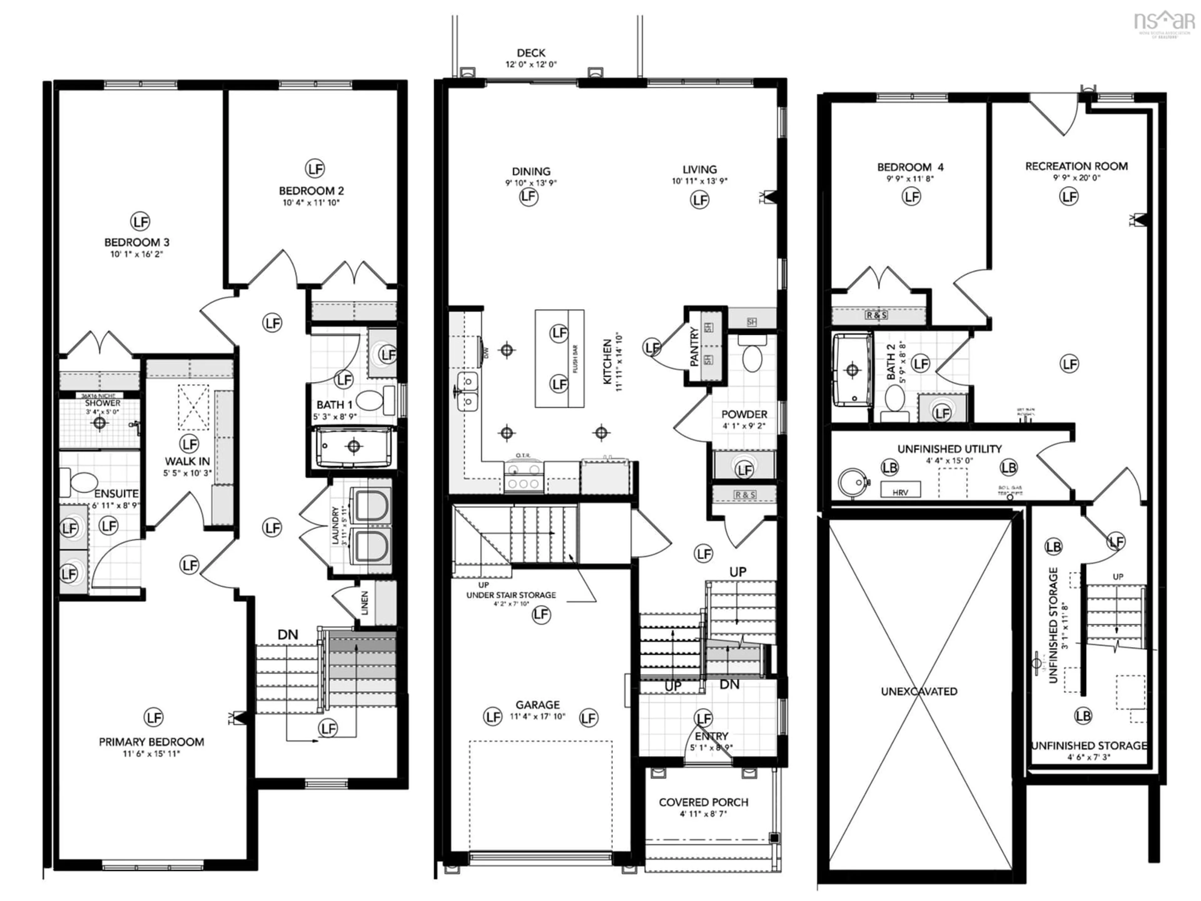
The Fernleigh by Cresco, located in the sought-after Parks of Lake Charles offers a thoughtfully designed semi-detached home with just over 2,400 sq. ft. of finished living space, a single-car garage, and a fully finished walkout lower level, set on beautifully treed backyard lots. This functional layout features 4 bedrooms and 3.5 bathrooms, including a spacious primary suite complete with a custom-tiled ensuite shower and walk-in closet. The bright, open-concept main floor is filled with natural light and anchored by a large kitchen with an island, quartz countertops, ceiling-height cabinetry, and under-cabinet lighting creating a stylish and practical space for everyday living and entertaining. The finished walkout lower level includes a fourth bedroom, full bathroom, and generous family room with wet bar rough-in, offering flexible space for guests, extended family, or recreation. Heating includes ductless heat pumps for efficient year-round comfort, with electric baseboards throughout. Move-in ready at the end of this summer. Experience quality craftsmanship, modern finishes, and the lifestyle that comes with living in Lake Charles.
Property Details
Interior
Features
Main Floor Floor
Foyer
5.1 x 8.8Bath 1
4.1 x 9.2Kitchen
11.1 x 14.11Living Room
10.11 x 13.9Exterior
Features
Parking
Garage spaces 1
Garage type -
Other parking spaces 0
Total parking spaces 1
Property History
6






