210 Lewis Dr #LW-01, West Bedford, Nova Scotia B4B 0L3
Contact us about this property
Highlights
Estimated valueThis is the price Wahi expects this property to sell for.
The calculation is powered by our Instant Home Value Estimate, which uses current market and property price trends to estimate your home’s value with a 90% accuracy rate.Not available
Price/Sqft$332/sqft
Monthly cost
Open Calculator
Description
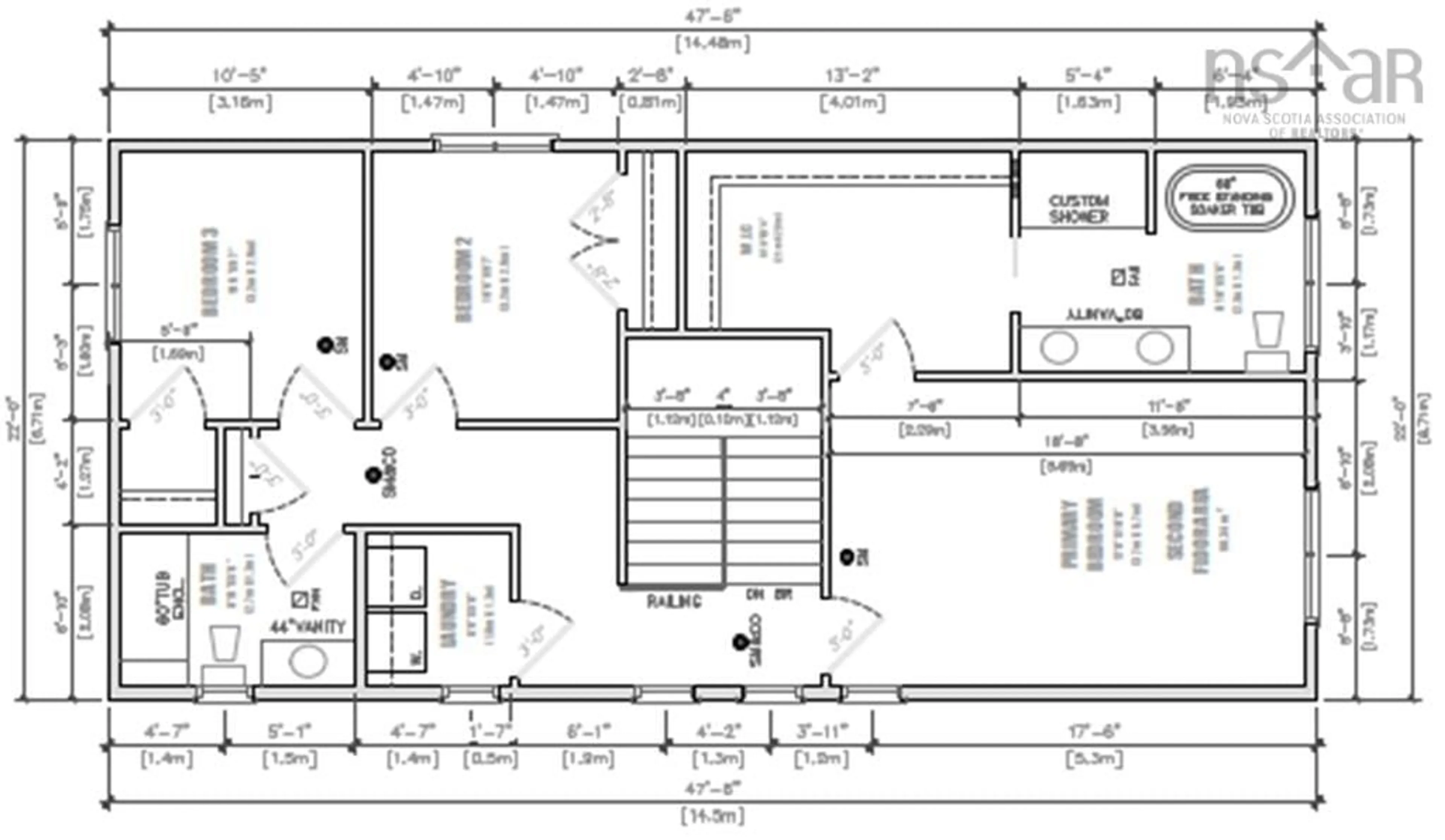
**Ready to move in by February 14, 2026** Welcome to The Bellview, a 4-bed, 3.5-bath detached home by Shaughnessy Homes in the exclusive Belle Rose Park in West Bedford. Spanning over 2,600 sq. ft. on a 34’ lot, this three-level residence offers premium living with thoughtful design. The main floor boasts an open concept layout with designer kitchen + walk-in pantry, premium finishes, quartz countertops and modern lighting, seamlessly blending style and function. Step outside to a beautifully finished composite deck, providing long-lasting durability with low maintenance. Enjoy ducted heating and cooling with natural gas backup, plus rough-ins for a gas range, dryer, BBQ, water heater, and a 50 AMP EV charger for future-ready living. Engineered hardwood flows through the main and upper levels, while the finished basement features durable laminate, perfect for versatile living spaces. Nestled off Larry Uteck Blvd, Belle Rose Park is a serene, master-planned community with easy access to schools, shops, and parks. Built with Shaughnessy Homes’ renowned craftsmanship, The Bellview is part of a limited collection of detached homes in one of Bedford’s most desirable neighborhoods.
Property Details
Interior
Features
Main Floor Floor
Foyer
6 x 8.6Bath 1
Living Room
12 x 19.6Dining Room
9 x 9Exterior
Features
Parking
Garage spaces 1
Garage type -
Other parking spaces 0
Total parking spaces 1
Property History
5







