25 Jan Marie Dr, Lawrencetown, Nova Scotia B2Z 1E2
Contact us about this property
Highlights
Estimated valueThis is the price Wahi expects this property to sell for.
The calculation is powered by our Instant Home Value Estimate, which uses current market and property price trends to estimate your home’s value with a 90% accuracy rate.Not available
Price/Sqft$455/sqft
Monthly cost
Open Calculator
Description
When viewing this property on Realtor.ca MLS # 202602903 Please click on Realtor's website link to the right for further information. This brand new house offers 4 bedrooms, 1.5 baths, an open-concept kitchen-dining-living area, and a private property surrounded by tall mature trees. Ideally located in a quiet family oriented subdivision, with a quaint front covered patio. Two heat pumps; in the living room and primary bedroom, supply cool AC in the summer and affordable heating in the winter. This home boasts porcelain tiles, elegant light fixtures, lots of natural daylight, and a beautiful kitchen with stainless steel appliances. Just 10 minutes to the heart of Cole Harbour, 10 minutes to Lawrencetown beach, and 25 minutes to the Halifax bridges. Also, the Salt Marsh trail is nearby for outdoor enthusiasts.
Property Details
Interior
Features
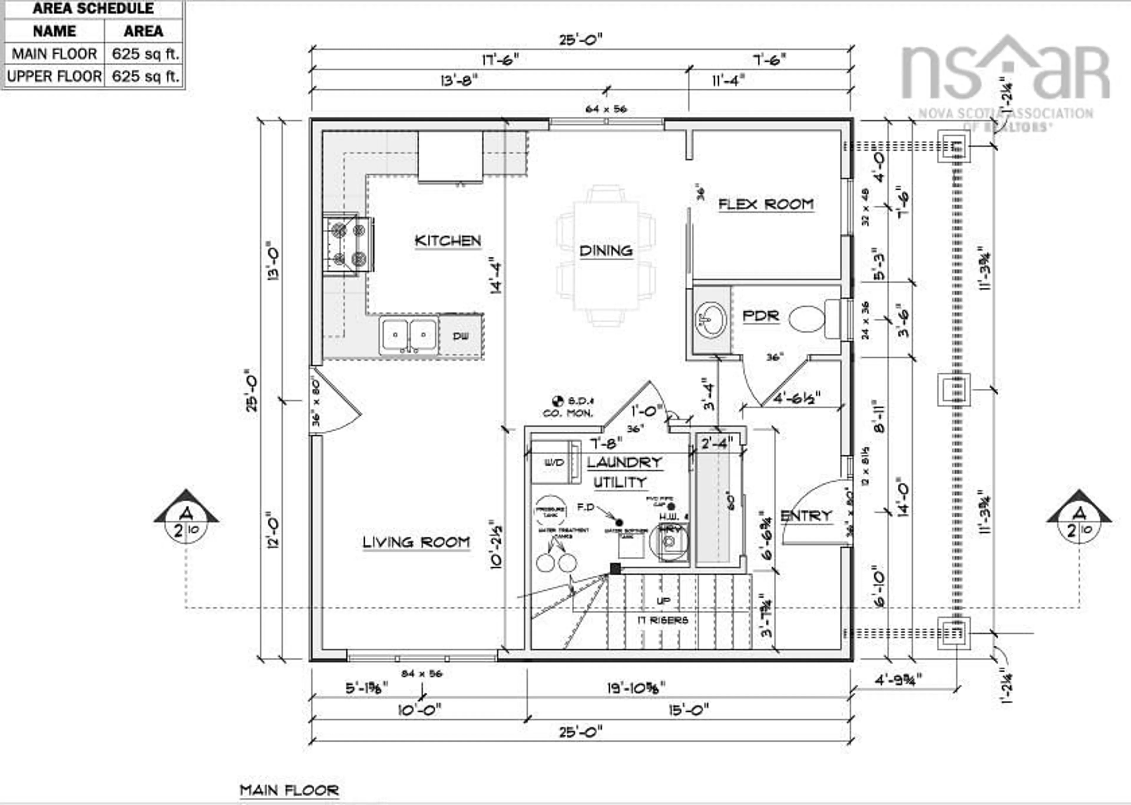
Main Floor Floor
Foyer
14 x 4.6Kitchen
11.6 x 10Dining Nook
14.4 x 7.6Living Room
13.6 x 10Property History
28








