16 Kimberly Crt, Amherst, Nova Scotia B4H 0B8
Contact us about this property
Highlights
Estimated valueThis is the price Wahi expects this property to sell for.
The calculation is powered by our Instant Home Value Estimate, which uses current market and property price trends to estimate your home’s value with a 90% accuracy rate.Not available
Price/Sqft$146/sqft
Monthly cost
Open Calculator
Description
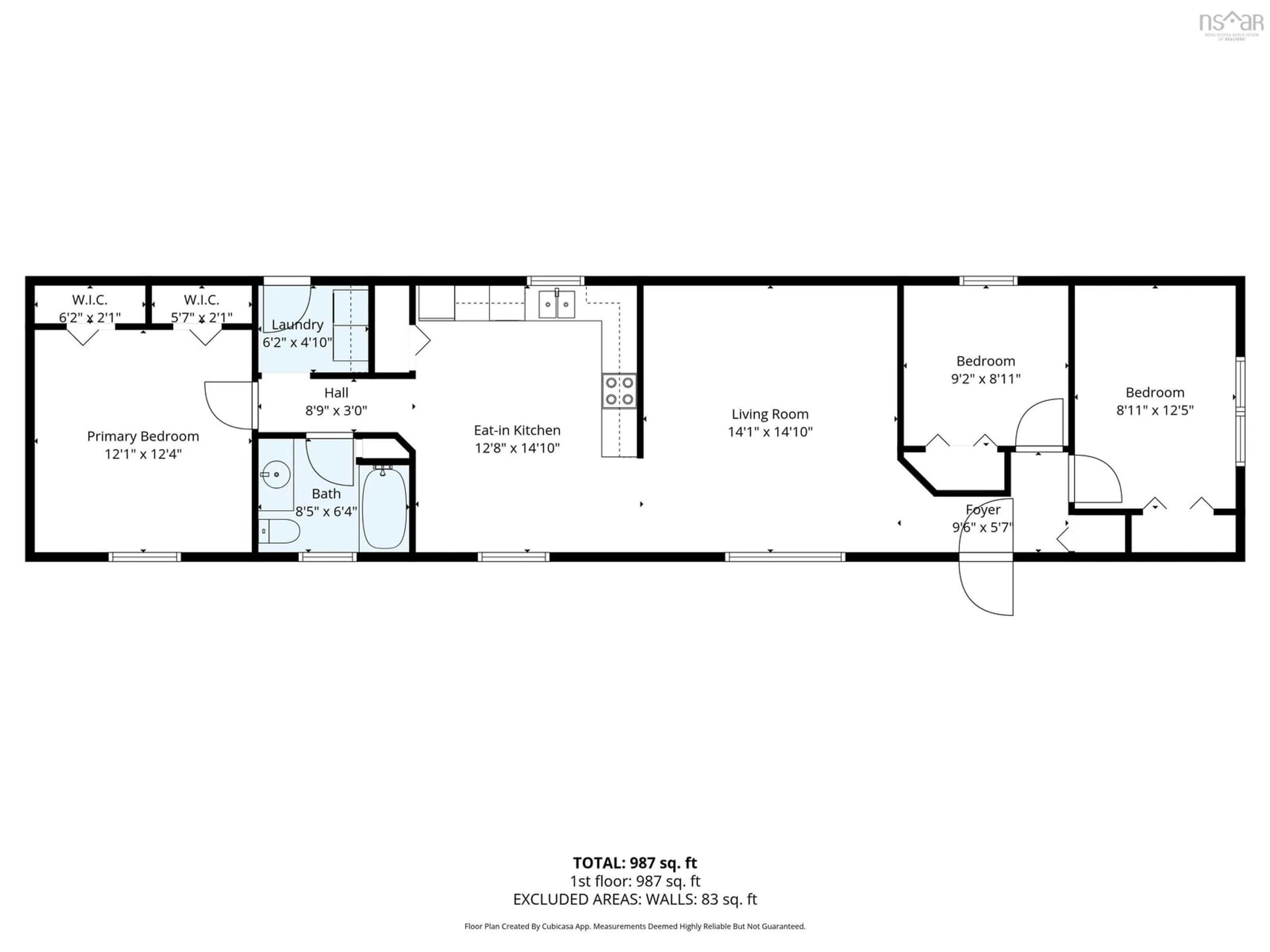
WELCOME TO THIS WELL-MAINTAINED THREE-BEDROOM MINI HOME, ideally located in one of Amherst’s most prestigious and sought-after parks, just minutes from downtown and all essential amenities. This inviting home offers a functional layout featuring a bright living space, a spacious kitchen, three comfortable bedrooms, and a full bathroom—perfect for first-time buyers, downsizers, or those seeking affordable, low-maintenance living. Recent upgrades include a new deck, providing an excellent outdoor space for relaxing or entertaining, along with a storage shed for added convenience, painting and flooring throughout. Situated in a quiet, well-kept community close to shopping, schools, medical services, and recreation, this property combines comfort, location, and value. A fantastic opportunity to enjoy easy living in a prime Amherst setting.
Property Details
Interior
Features
Main Floor Floor
Living Room
14.1 x 14.10Bedroom
9.2 x 8.11Kitchen
12.8 x 14.10Bath 1
8.5 x 6.4Exterior
Features
Property History
40





