27 Molly Lane, Brookdale, Nova Scotia B4H 3Y1
Contact us about this property
Highlights
Estimated valueThis is the price Wahi expects this property to sell for.
The calculation is powered by our Instant Home Value Estimate, which uses current market and property price trends to estimate your home’s value with a 90% accuracy rate.Not available
Price/Sqft$296/sqft
Monthly cost
Open Calculator
Description
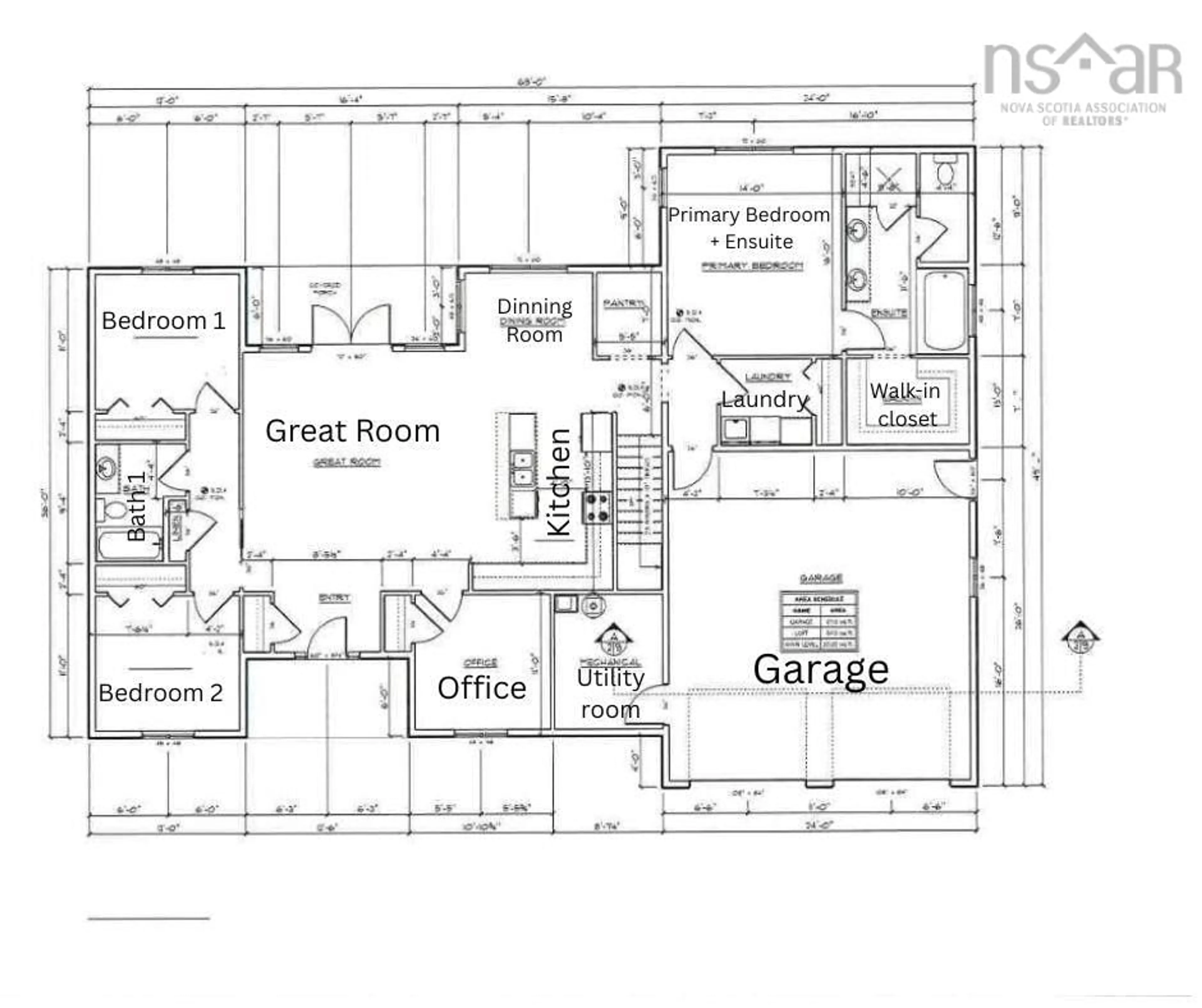
This beautifully designed three-year-old bungalow sits on 2.4 acres and is a true showpiece, offering a modern layout with generous living space for a growing family. With over 2,600 square feet on a slab foundation, this four-bedroom home delivers both comfort and functionality in equal measure. Tucked quietly at the end of Molly Lane, just off the sought-after Riverbend Drive area, this is one of only two homes on the lane—providing exceptional privacy and a peaceful setting. The expansive lot offers ample space to enjoy the outdoors, with plenty of room for children to play and for you to take in the fresh air. Step through the main entrance into a warm, inviting great room featuring an open-concept design. The stunning kitchen and dining area flow seamlessly together, creating the perfect space for everyday living and entertaining. Just off the main living area, a spacious office offers flexibility as a work-from-home space or guest bedroom. The thoughtfully designed layout includes a dedicated “kids’ wing” with two evenly sized bedrooms and a large full bathroom—an ideal setup for busy mornings and family routines. On the opposite side of the home, you’ll find a private primary retreat. The spacious primary bedroom overlooks the backyard and includes patio doors leading directly to the rear patio. The ensuite bath is truly a standout feature, showcasing striking black and white tile, in-floor heating, a large walk-in tiled shower, and a luxurious soaker tub. A generous walk-in closet completes the suite, complete with a built-in makeup desk for added convenience. The laundry room is located just outside the primary suite and near a substantial storage area, offering ample room for a stand-up freezer, pet supplies, and additional storage needs. An attached double garage provides space for vehicles, storage, or even a home gym setup. Above the garage, you’ll find over 600 square feet of finished living space, including a bedroom, rec room, and half bath—per
Property Details
Interior
Features
Main Floor Floor
Laundry
13 x 7.3Primary Bedroom
16 x 14Ensuite Bath 1
11.6 x 10Dining Room
11 x 7Exterior
Parking
Garage spaces 2
Garage type -
Other parking spaces 0
Total parking spaces 2
Property History
43






