43 Ridge Ave, Stewiacke, Nova Scotia B0N 2J0
Contact us about this property
Highlights
Estimated valueThis is the price Wahi expects this property to sell for.
The calculation is powered by our Instant Home Value Estimate, which uses current market and property price trends to estimate your home’s value with a 90% accuracy rate.Not available
Price/Sqft$368/sqft
Monthly cost
Open Calculator
Description
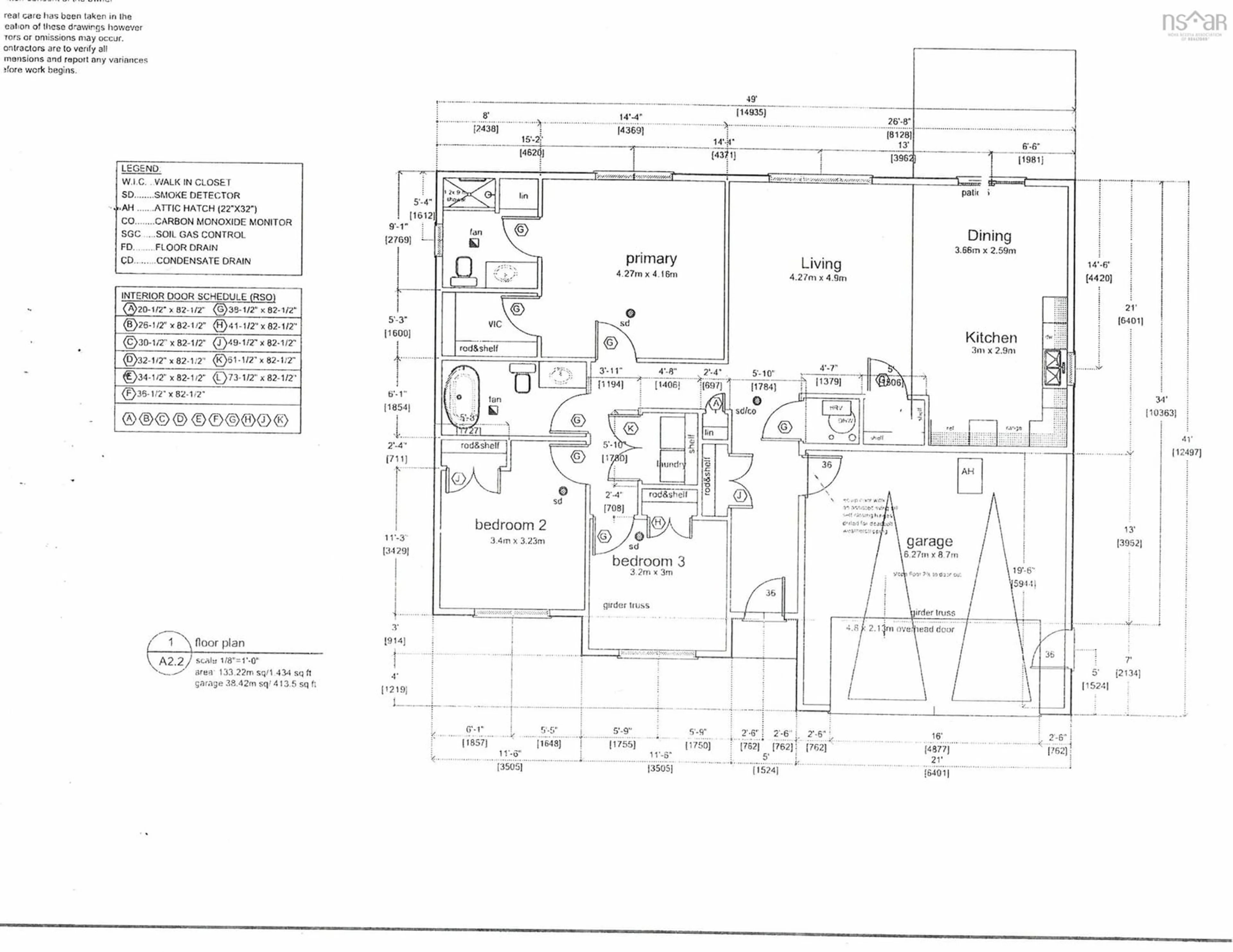
PHOTO IS FACSIMILIE HOME ALREADY BUILT!. Another New Home to be built in Stewiacke River Crossing . Wheelchair friendly home with infloor heat including double garage. 9 foot cielings. Quartz counter tops. Heat Pump. NOTE: room sizes are from plans. NOTE: Pantry on plans is mechanical room. Home will be landsacped by builder. This home is over 1400 sq ft. Photos are from previous home by same builder. Price is including HST with rebate assigned to builder. Any offer must have written confirmation of financing ability attached. Home covered by Lux Warranty. Home is is scheduled for completion September October 2026. Will be Move in Ready!. Have a look around this fine development just off exit 11, Stewiacke, HWY 102. You will definatly be impressed. Then call your Realtor and book a viewing. Home is wheelchair friendly. Model Home available for viewing.
Property Details
Interior
Features
Main Floor Floor
Eat In Kitchen
21 x 11'5Great Room
15 x 13Bath 1
5 x 8Primary Bedroom
14'4 x 14'4Exterior
Features
Parking
Garage spaces 2
Garage type -
Other parking spaces 2
Total parking spaces 4
Property History
21





