Contact us about this property
Highlights
Estimated valueThis is the price Wahi expects this property to sell for.
The calculation is powered by our Instant Home Value Estimate, which uses current market and property price trends to estimate your home’s value with a 90% accuracy rate.Not available
Price/Sqft$357/sqft
Monthly cost
Open Calculator
Description
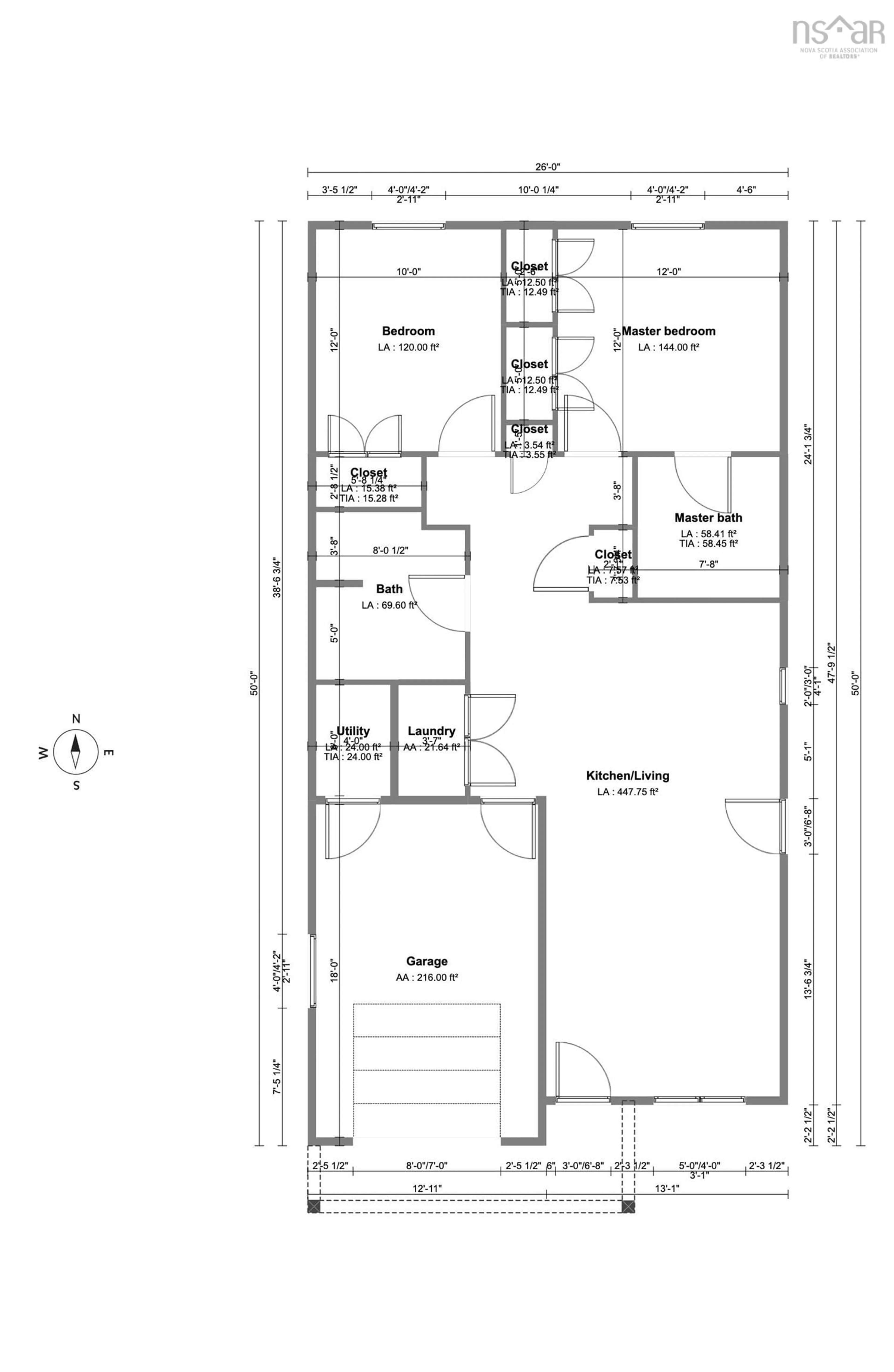
Welcome to this thoughtfully designed 1,060 sq ft home offering the perfect balance of comfort, efficiency, and modern style. With two inviting bedrooms and two well-appointed bathrooms, this property is ideal for those seeking easy, low-maintenance living without sacrificing quality or warmth. The bright eat-in kitchen flows effortlessly into the open-concept living area, creating a welcoming space for everyday living and entertaining. Large windows allow natural light to fill the home, enhancing the clean, minimalist design and comfortable atmosphere throughout. Built with durability in mind, the exterior features a striking combination of vinyl and metal siding complemented by a steel roof, offering long-lasting protection and curb appeal. Inside, year-round comfort is ensured with an energy-efficient heat pump and radiant in-floor heating, delivering cozy warmth during cooler months and refreshing comfort in the summer. A single-car garage adds everyday convenience and additional storage, while the smart layout maximizes every square foot with functional, easy living in mind. Whether you are downsizing, purchasing your first home, or simply looking for a modern space designed for today’s lifestyle, this property offers exceptional value and timeless appeal. Designed with comfort and practicality in mind, this home combines quality construction with an efficient floor plan in a growing community just minutes from Truro and local amenities. A fantastic opportunity to own a brand-new home in Hilden.
Property Details
Interior
Features
Main Floor Floor
Kitchen
15'6 x 11'Living Room
13'1 x 13'6Bedroom
12' x 10'Primary Bedroom
12' x 12'Exterior
Features
Parking
Garage spaces 1
Garage type -
Other parking spaces 0
Total parking spaces 1
Property History
10






