1546 Spurr Rd, Round Hill, Nova Scotia B0S 1C0
Contact us about this property
Highlights
Estimated valueThis is the price Wahi expects this property to sell for.
The calculation is powered by our Instant Home Value Estimate, which uses current market and property price trends to estimate your home’s value with a 90% accuracy rate.Not available
Price/Sqft$370/sqft
Monthly cost
Open Calculator
Description
Welcome to your Round Hill Homestead! Filled with history and country charm, this century+ home sits on 4.2 peaceful acres just off Highway 201 in the Annapolis Valley. The property has an orchard, a scenic hay field, and a wooded backdrop that adds to the quiet setting. Inside, you’ll find three bedrooms, one bathroom, a warm eat-in kitchen, updated main-level flooring, and a new mudroom. The metal-shingle roof offers long-lasting durability, and the cold room is great for storing garden harvests, preserves, or wine. A new two-storey garage (or future carriage house?) gives plenty of extra space to work or play, and cozy reading cottage tucked into the trees adds the perfect finishing touch. With lot size and road frontage providing subdivision possibilities *buyer to verify* ... if you dare to divide this slice of heaven ... don't miss this bucolic opportunity! Ask your preferred realtor for details on efficiency!
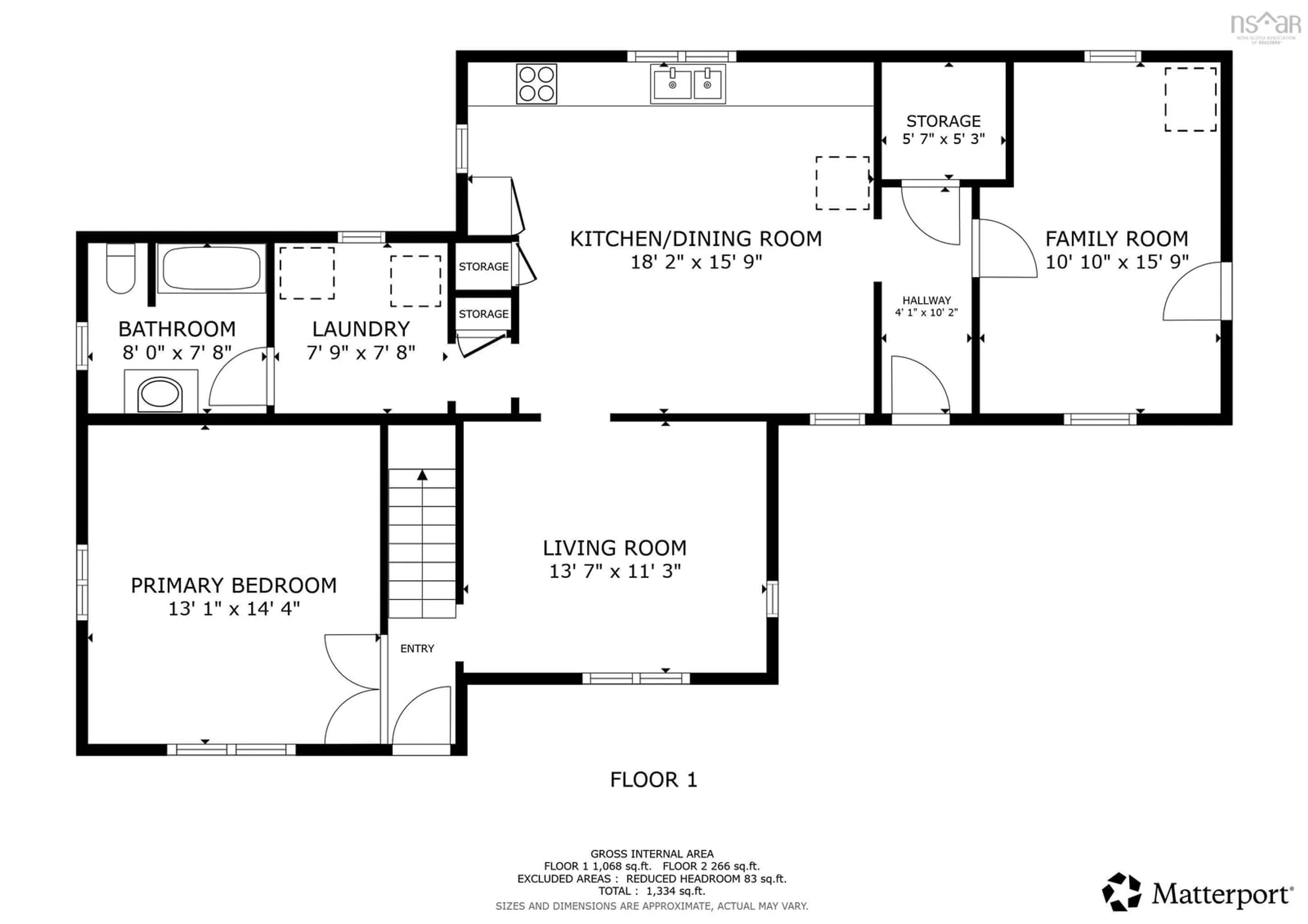
Property Details
Interior
Features
Main Floor Floor
Mud Room
9'2 x 15'7Foyer
3'11 x 9'11Kitchen
15'6 x 15'9Laundry
7'5 x 7'11 2'Exterior
Features
Parking
Garage spaces 1.5
Garage type -
Other parking spaces 0
Total parking spaces 1.5
Property History
50







