40 WINTER STREET, Shediac, New Brunswick E4P2Y2
Contact us about this property
Highlights
Estimated valueThis is the price Wahi expects this property to sell for.
The calculation is powered by our Instant Home Value Estimate, which uses current market and property price trends to estimate your home’s value with a 90% accuracy rate.Not available
Price/Sqft$162/sqft
Monthly cost
Open Calculator
Description
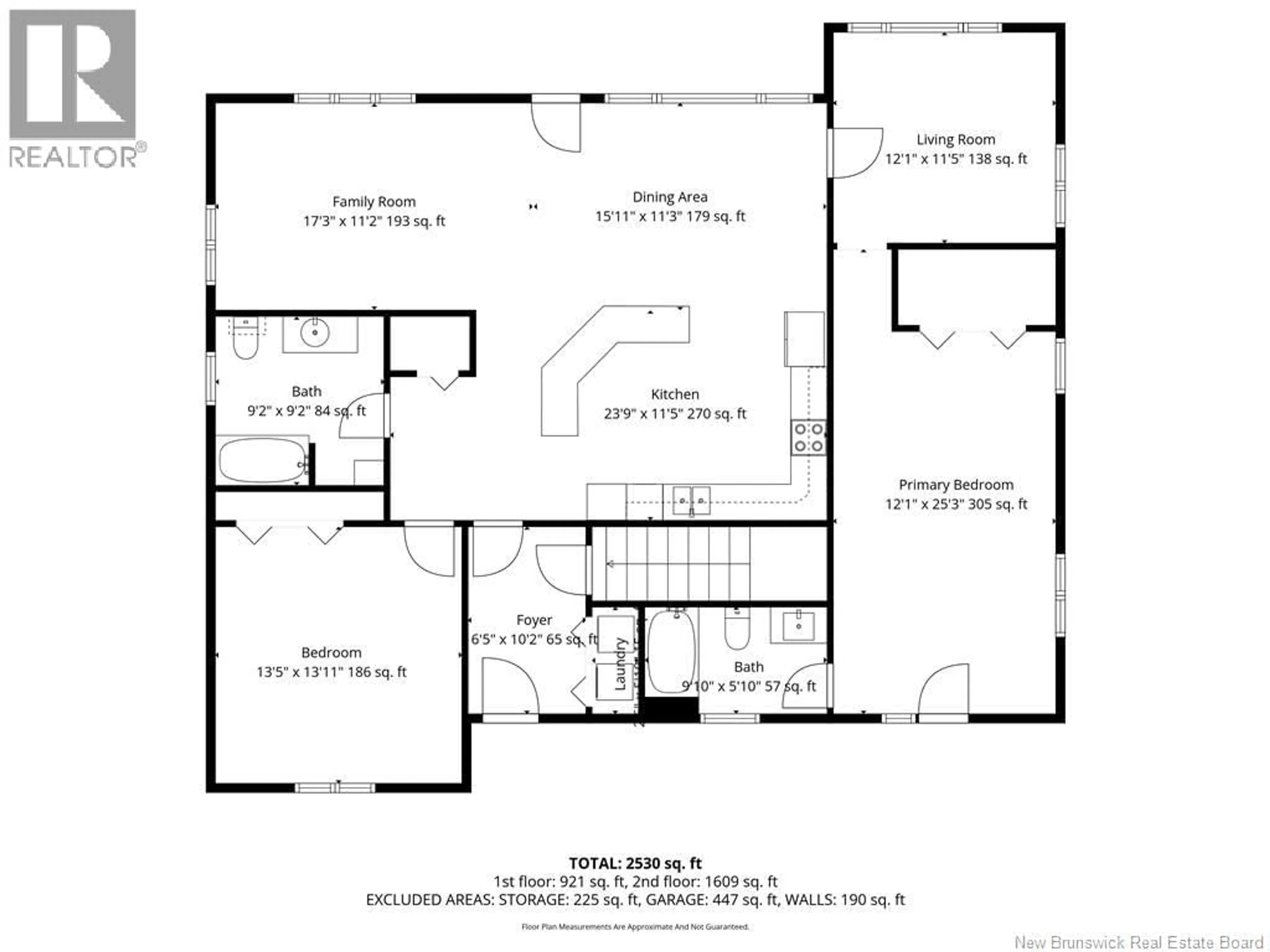
Welcome to 40 Winter in Shediac by the sea! This charming bungalow offers an elevated ground floor, a daylight basement, three bedrooms, two full bathrooms (with the possibility of another in the basement), a front and back porch, a single tunnel garage, and a vast lot that allows access from Winter Street and Chesley Street. An ideal home for a family that loves a large living space or those looking for a property with the potential to create a separate living space where they live. On the ground floor, you will find an open living room, a dining room, a functional kitchen, a small bright living room, a primary bedroom with its en-suite bathroom and an exterior door, opening onto the back porch. In addition, there are a second bedroom, a bathroom, and a foyer that include access to the laundry area, the ground floor, the basement stairs and the back porch of the house. In the basement, a large bedroom with a walk-in closet, a living room, and the mechanical room, which includes generous storage space. You have the opportunity to take the extra room connecting to the hallway that contains access to ascending plumbing to add an additional bathroom. Finally, your single tunnel garage gives you access to the front and rear streets of the property. A contractor's estimate to complete the basement with or without a bathroom is available. Contact your REALTOR® to make an appointment. (id:39198)
Property Details
Interior
Features
Basement Floor
Other
5'5'' x 9'7''Other
9'2'' x 9'5''Other
5'8'' x 5'8''Bonus Room
12'6'' x 13'1''Property History
37





