8 - 20 DAMIEN STREET, Dieppe, New Brunswick E1A7S9
Contact us about this property
Highlights
Estimated valueThis is the price Wahi expects this property to sell for.
The calculation is powered by our Instant Home Value Estimate, which uses current market and property price trends to estimate your home’s value with a 90% accuracy rate.Not available
Price/Sqft$226/sqft
Monthly cost
Open Calculator
Description
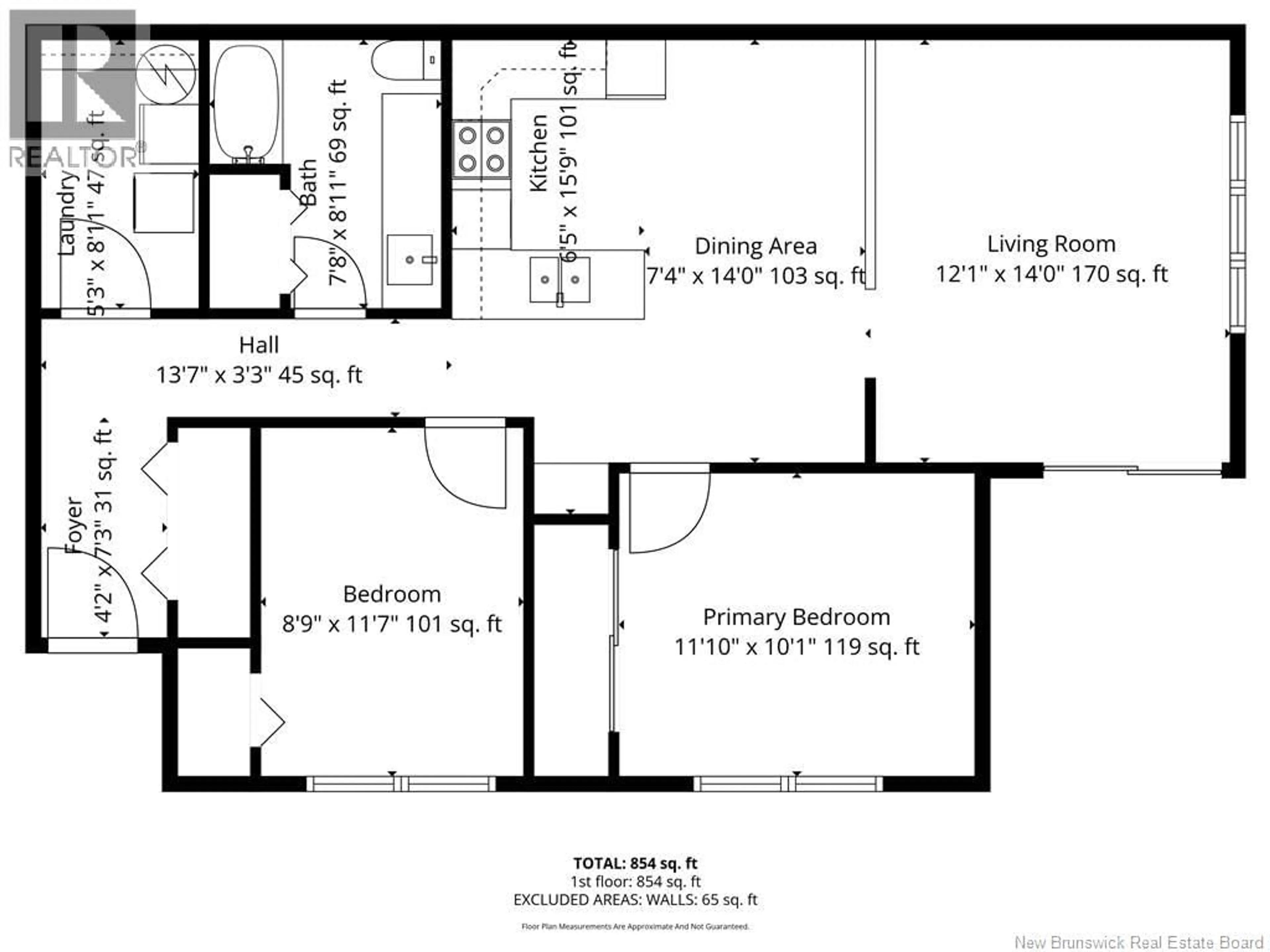
Welcome/Benvenue to 20 Damien St, Unit 8. Beautifully maintained 2-bedroom, 1-bathroom condo located in a highly desirable condo community. This bright and spacious unit features a modern open-concept layout that shows exceptionally well and is perfect for both everyday living and entertaining. The upgraded kitchen is a standout, showcasing professionally painted white cabinetry, newer countertops, a stylish backsplash, and newer stainless steel appliances, creating a clean and contemporary feel. Large windows fill the space with natural light, enhancing the homes warm and inviting atmosphere. Enjoy your own private, screened-in balcony, ideal for relaxing in comfort and privacy. The condo also offers the convenience of your own private entrance, two dedicated parking spaces, and ample visitor parking. Designed for year-round comfort, the unit is equipped with a mini-split heat pump with air conditioning. Additional features include a storage area with in-unit laundry (washer and dryer), a modern, clean aesthetic throughout, and a layout that truly maximizes space. This move-in-ready condo shows beautifully and offers a perfect blend of comfort, style, and conveniencean excellent opportunity for first time homeowners or someone looking to downsize. Contact your REALTOR® for your private showing today. Property taxes are based from 2025. (id:39198)
Property Details
Interior
Features
Main level Floor
Utility room
7'0'' x 8'0''Bedroom
9'0'' x 11'0''Primary Bedroom
11'0'' x 12'0''4pc Bathroom
6'7'' x 9'5''Condo Details
Inclusions
Property History
16





