12 BELLERIVE, Trois Ruisseaux, New Brunswick E4N2T7
Contact us about this property
Highlights
Estimated valueThis is the price Wahi expects this property to sell for.
The calculation is powered by our Instant Home Value Estimate, which uses current market and property price trends to estimate your home’s value with a 90% accuracy rate.Not available
Price/Sqft$174/sqft
Monthly cost
Open Calculator
Description
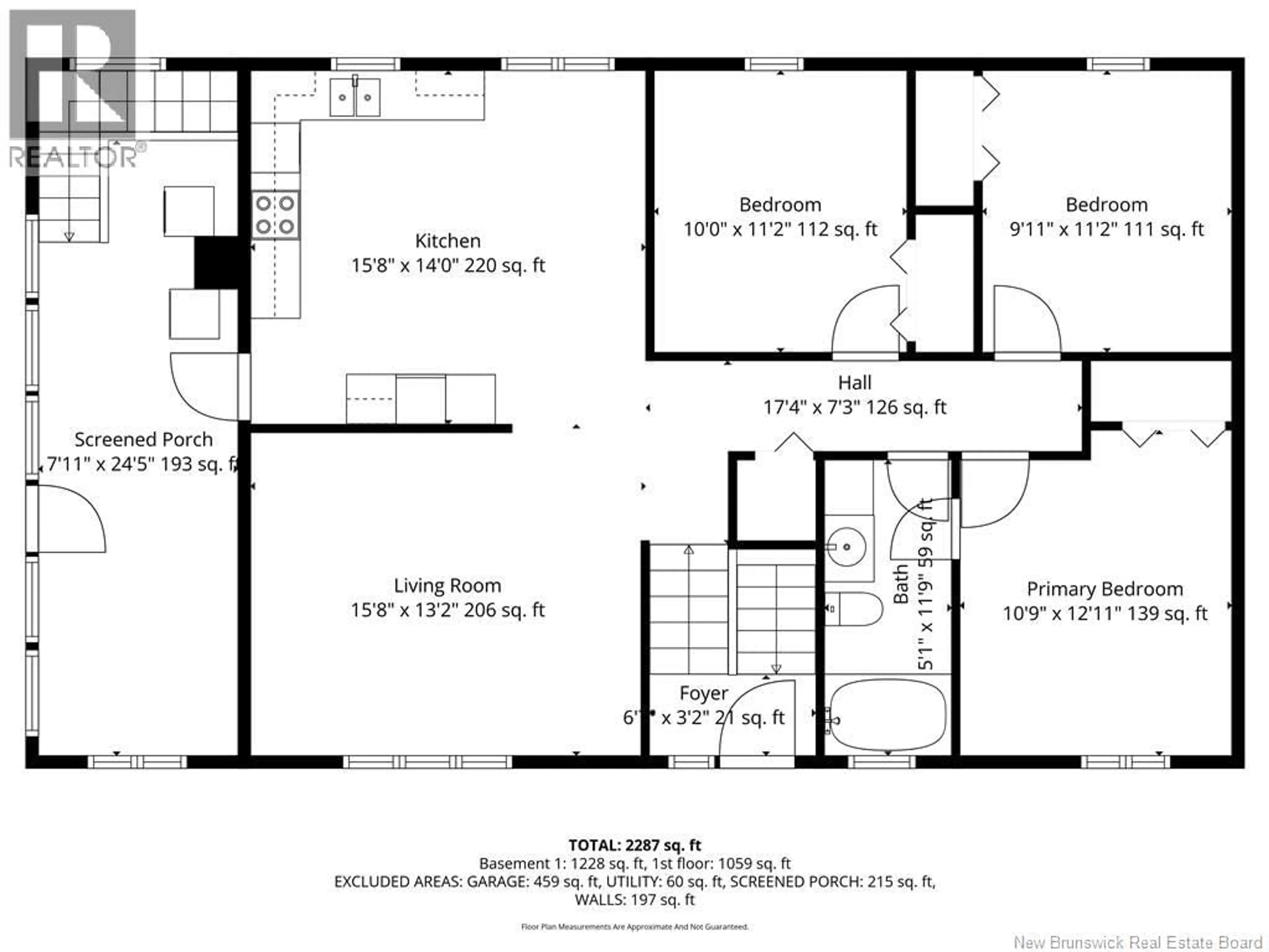
Welcome to 12 Bellerive in Trois Ruisseaux. This home with a basement apartment is sure to be in high demand! The main floor features 3 spacious bedrooms, a large kitchen and living room, a 3-piece bath, and an attached garage. The lower level offers 2 additional bedrooms, a huge kitchen and dining area, plus a generously sized living room. Sitting on a large lot, this property also boasts a nice workshop on the left-hand side. Enjoy beach access just minutes down the road. (id:39198)
Property Details
Interior
Features
Main level Floor
Bedroom
11'2'' x 10'Bedroom
11'2'' x 9'11''Primary Bedroom
12'11'' x 10'9''Living room
13'2'' x 15'8''Property History
28





