20 UPLANDS VIEW CRESCENT, Perth-Andover, New Brunswick E7H5C5
Contact us about this property
Highlights
Estimated valueThis is the price Wahi expects this property to sell for.
The calculation is powered by our Instant Home Value Estimate, which uses current market and property price trends to estimate your home’s value with a 90% accuracy rate.Not available
Price/Sqft$156/sqft
Monthly cost
Open Calculator
Description
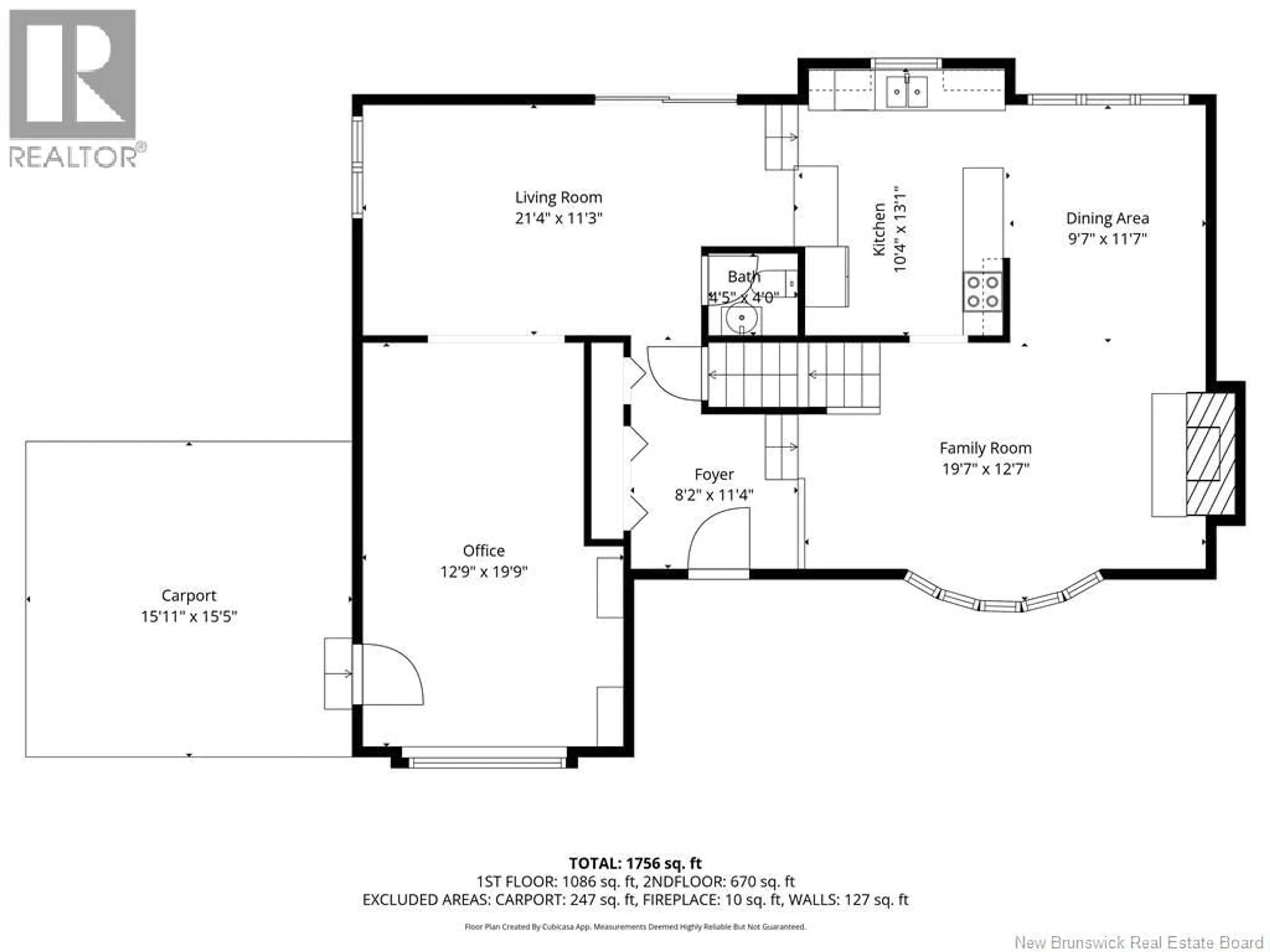
Welcome to this beautiful side split home in the heart of Perth-Andoverperfectly located close to schools, the hospital, and local shops, offering convenience and comfort for the whole family. Step inside and youll immediately appreciate the abundance of natural light pouring through the large windows. The main living level features a spacious and functional layout, including a bright kitchen with ample cabinetry and countertop space, a formal dining room, and a welcoming formal living room ideal for entertaining. A cozy TV room and separate den provide additional living space for relaxing, working from home, or family gatherings. A convenient half bath completes the main floor. Upstairs, youll find three generously sized bedrooms and a beautifully renovated full bathroom featuring a modern ceramic tile shower, designed with both style and comfort in mind. This home has seen numerous upgrades in the past nine months, including the basement being fully spray-foamed with insulation and fire retardant with 2 new heaters, a newly renovated upstairs bathroom, a Napoleon propane fireplace, fresh paint throughout the main floor, a new 10x12 gazebo, and new fridge, stove, and freezer. Outside, the carport offers excellent covered parking and could easily be converted into a garage. With its spacious layout, thoughtful upgrades, and unbeatable location, this home truly is a must-see to fully appreciate all it has to offer. Dont miss your opportunity to make it yours! (id:39198)
Property Details
Interior
Features
Second level Floor
3pc Bathroom
6'4'' x 11'2''Bedroom
11'8'' x 14'1''Bedroom
9'2'' x 17'8''Primary Bedroom
11'2'' x 14'4''Property History
44





