899 ROUTE 102, Swan Creek, New Brunswick E2V2Y3
Contact us about this property
Highlights
Estimated valueThis is the price Wahi expects this property to sell for.
The calculation is powered by our Instant Home Value Estimate, which uses current market and property price trends to estimate your home’s value with a 90% accuracy rate.Not available
Price/Sqft$320/sqft
Monthly cost
Open Calculator
Description
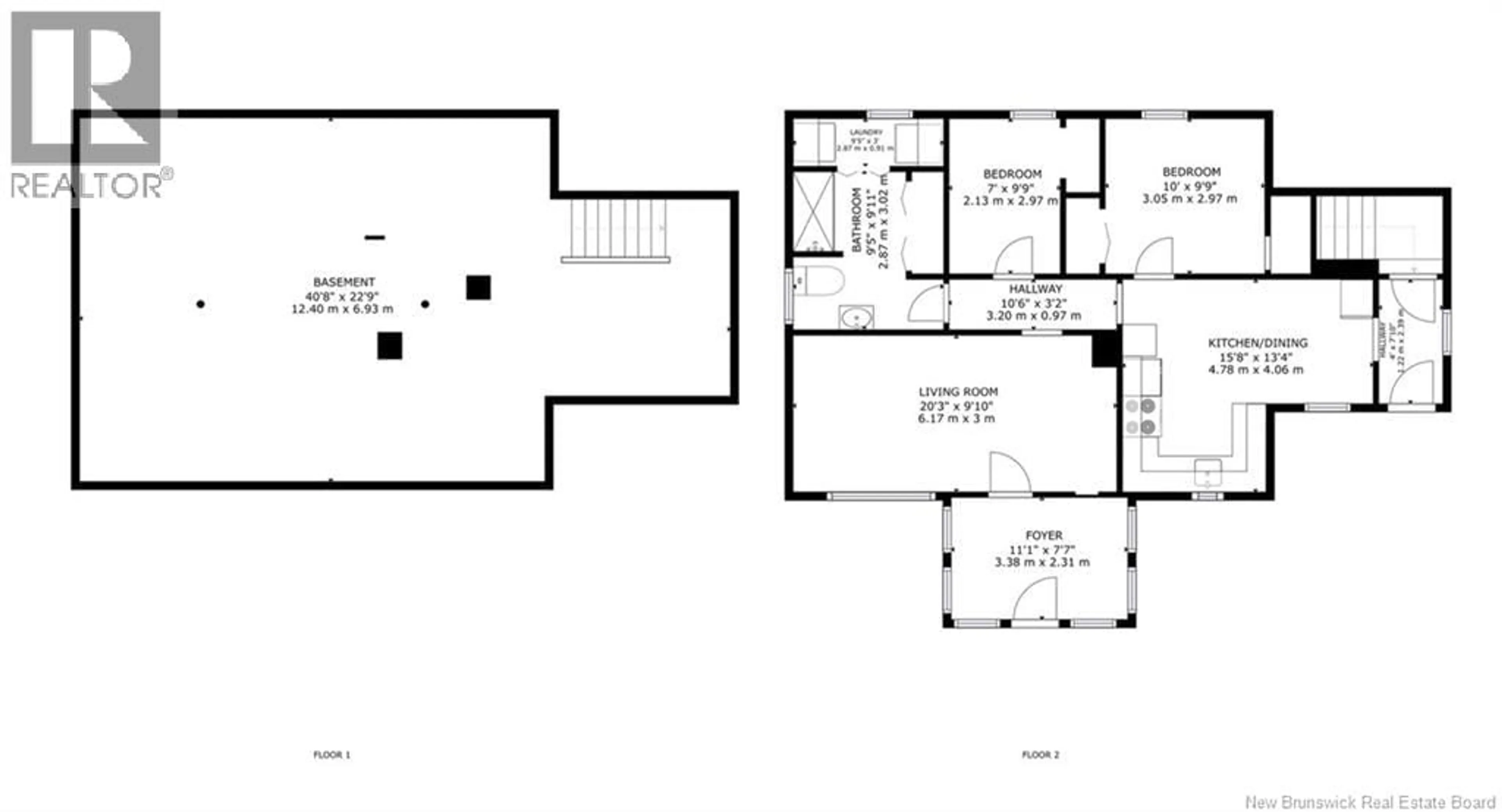
Step into a home where life feels a little simpler. This 1960's bungalow at 899 Route 102 brings back a time when the kitchen was the heart of the home: a place for meals, conversations, and everyday moments that matter. Inside, youll find easy one-level living with two bedrooms and a spacious bathroom, complete with conveniently tucked-away laundry. The large front living room flows into a bright sun porch, soon to be your new favorite spot for morning coffee or curling up with a good book. Cold winter mornings? No problem. The single-car garage means you'll never scrape frost off your windshield again. Outside, the ¼-acre yard backs onto the old railroad trail - perfect for evening strolls or letting the dog run free. Garden lovers will spot the old greenhouse waiting to be revived. It stays if you want it. This is the kind of yard where kids play until the streetlights come on. Location seals the deal. You're 15 minutes from the shops and dining in charming Gagetown Village and under 20 minutes to CFB Gagetown and Oromocto. Swan Creek is the kind of place where neighbors still wave and stop to chat. If youre looking for comfort, charm, and convenience in a friendly rural setting, this home is ready to welcome you. (id:39198)
Property Details
Interior
Features
Main level Floor
Bath (# pieces 1-6)
9'5'' x 12'11''Bedroom
7' x 9'9''Bedroom
9'9'' x 10'Sunroom
7'7'' x 11'1''Property History
36




