11 NADIANA WAY, Saint John, New Brunswick E2N0G2
Contact us about this property
Highlights
Estimated valueThis is the price Wahi expects this property to sell for.
The calculation is powered by our Instant Home Value Estimate, which uses current market and property price trends to estimate your home’s value with a 90% accuracy rate.Not available
Price/Sqft$280/sqft
Monthly cost
Open Calculator
Description
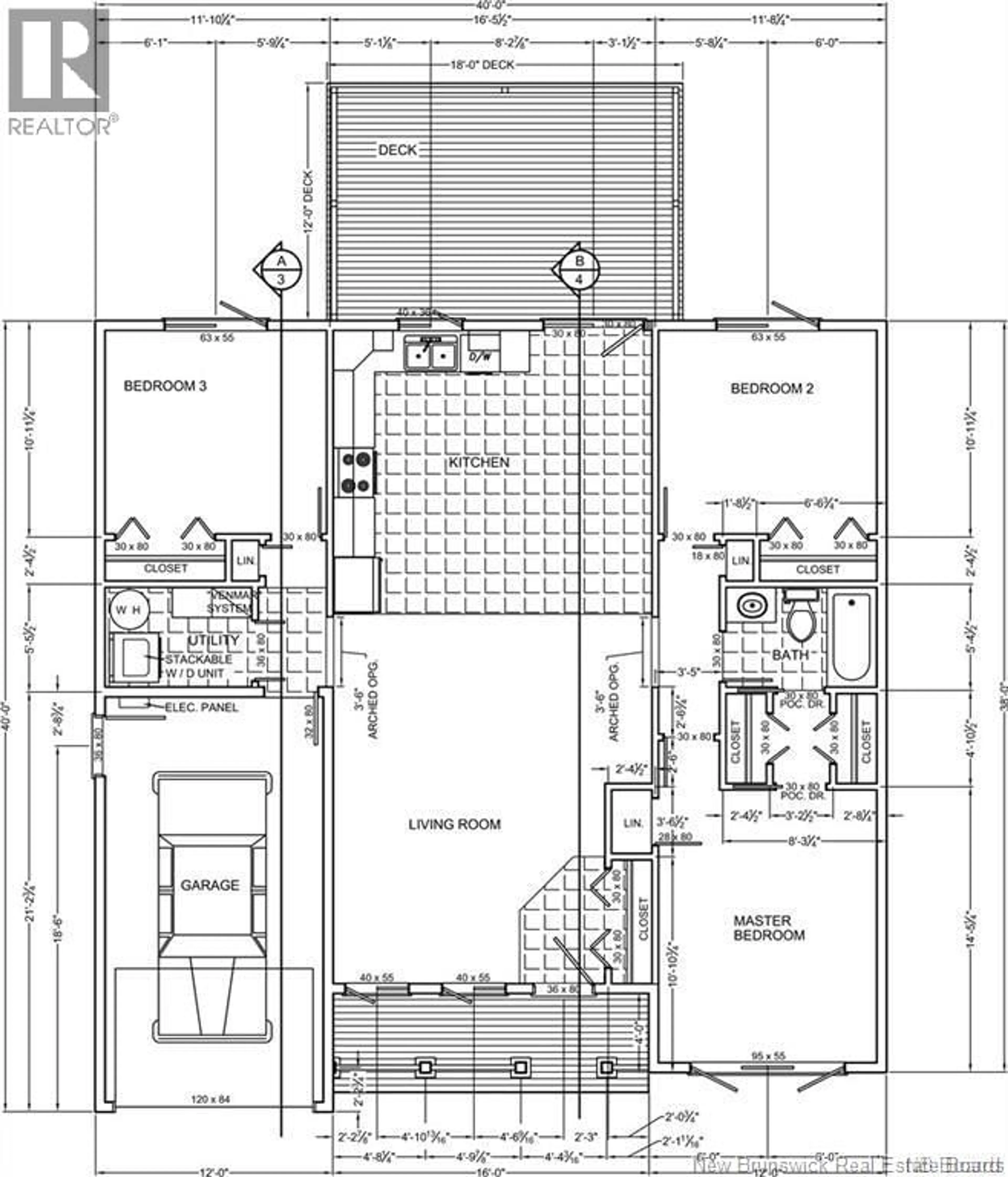
Welcome to 11 Nadiana Way - a modern, single-level home built in 2021, offering space, comfort, and a layout that truly works for everyday living. Set on 1.3 acres, this property gives you room to breathe while still being close to everything the East Side has to offer. Inside, youll love the bright open-concept design featuring vaulted ceilings, a spacious living area, and a beautiful kitchen anchored by a large center islandideal for gathering, cooking, and entertaining. The home offers three generously sized bedrooms, including a primary bedroom with a walk-in closet. Efficiency and comfort were clearly a priority here, with insulation on both the interior and exterior walls and an owned heat pump to keep the home warm in the winter and cool in the summer. In addition to the attached single-car garage, this property includes a recently built 12x20x8 detached garage by Apple Ridge Lumber (approx. value $16,000)perfect for extra storage, a workshop, or all your outdoor gear. Step outside to enjoy the back deck and an additional 26 x 12 feet of outdoor living space loads for BBQs and relaxing evenings at home, also wired for a hot tub that was previously in place. Conveniently located near McAllister Mall, grocery stores, and The Res, this is a home that blends modern style with everyday practicality. (id:39198)
Property Details
Interior
Features
Main level Floor
Other
7'5'' x 4'5''Laundry room
7'2'' x 5'0''Bedroom
11'3'' x 10'2''Bedroom
10'11'' x 10'3''Property History
37




