109 TOPEKA STREET, Saint John, New Brunswick E2J1J5
Contact us about this property
Highlights
Estimated valueThis is the price Wahi expects this property to sell for.
The calculation is powered by our Instant Home Value Estimate, which uses current market and property price trends to estimate your home’s value with a 90% accuracy rate.Not available
Price/Sqft$119/sqft
Monthly cost
Open Calculator
Description
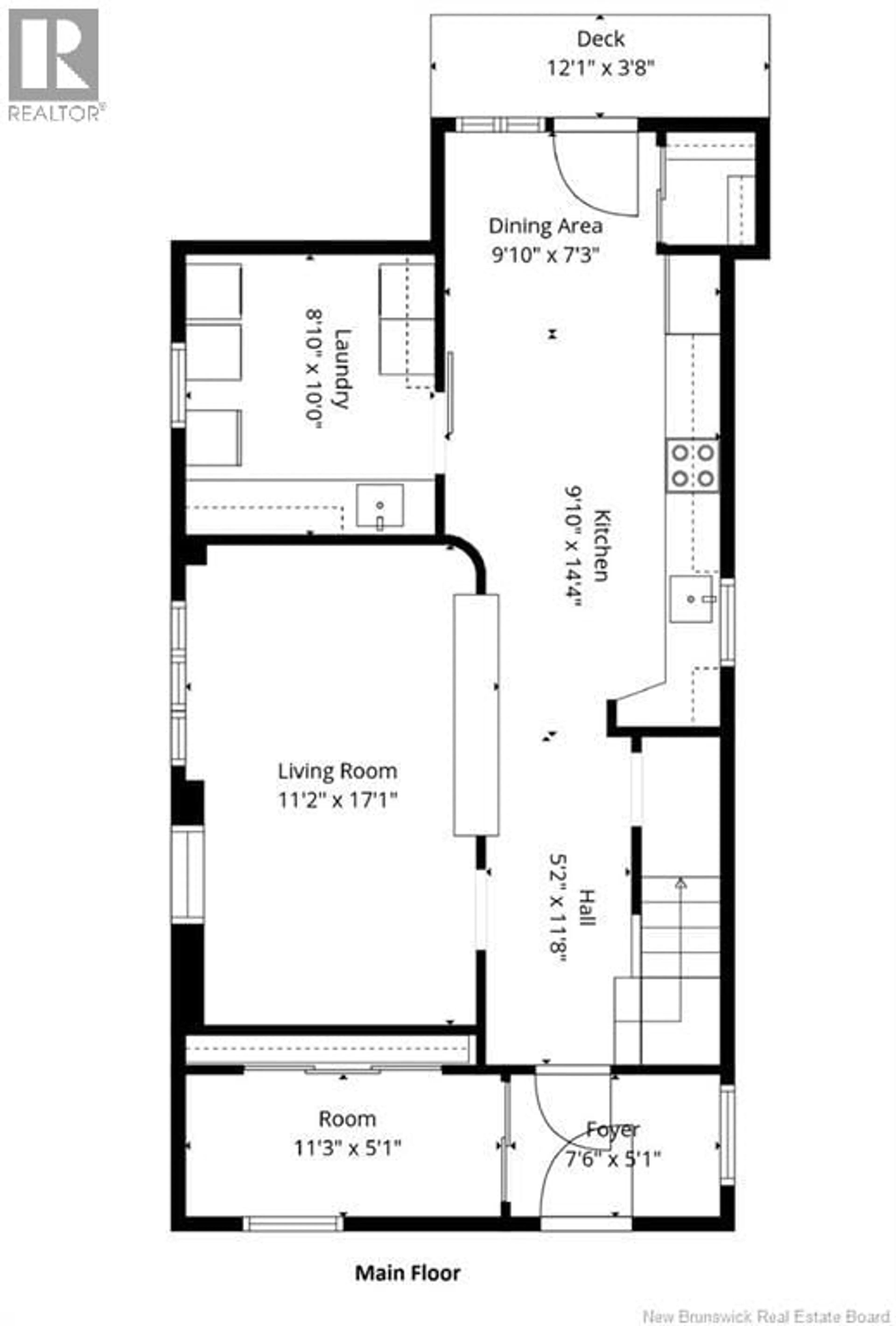
This property presents a fantastic investment opportunity for those looking to add value and customize a home to their vision. Situated in a desirable location, this 2-bedroom, 1-bathroom residence offers strong potential with some TLC. The layout features a unique setup with a vanity in the primary bedroom, adding convenience and flexibility. The home sits on a generously sized lot comprised of four separate PIDs, providing ample space and future development possibilities. Whether youre an investor, renovator, or first-time buyer looking to build equity, this property offers endless potential. With its great location and sizable land parcel, its an excellent chance to create something special. Dont miss this opportunity to transform this property into a valuable asset. (id:39198)
Property Details
Interior
Features
Second level Floor
Bath (# pieces 1-6)
7'5'' x 8'10''Bedroom
9'9'' x 15'11''Primary Bedroom
18'6'' x 13'4''Property History
40




