32 DESPRES ROAD, Cocagne, New Brunswick E4R2M4
Contact us about this property
Highlights
Estimated valueThis is the price Wahi expects this property to sell for.
The calculation is powered by our Instant Home Value Estimate, which uses current market and property price trends to estimate your home’s value with a 90% accuracy rate.Not available
Price/Sqft$212/sqft
Monthly cost
Open Calculator
Description
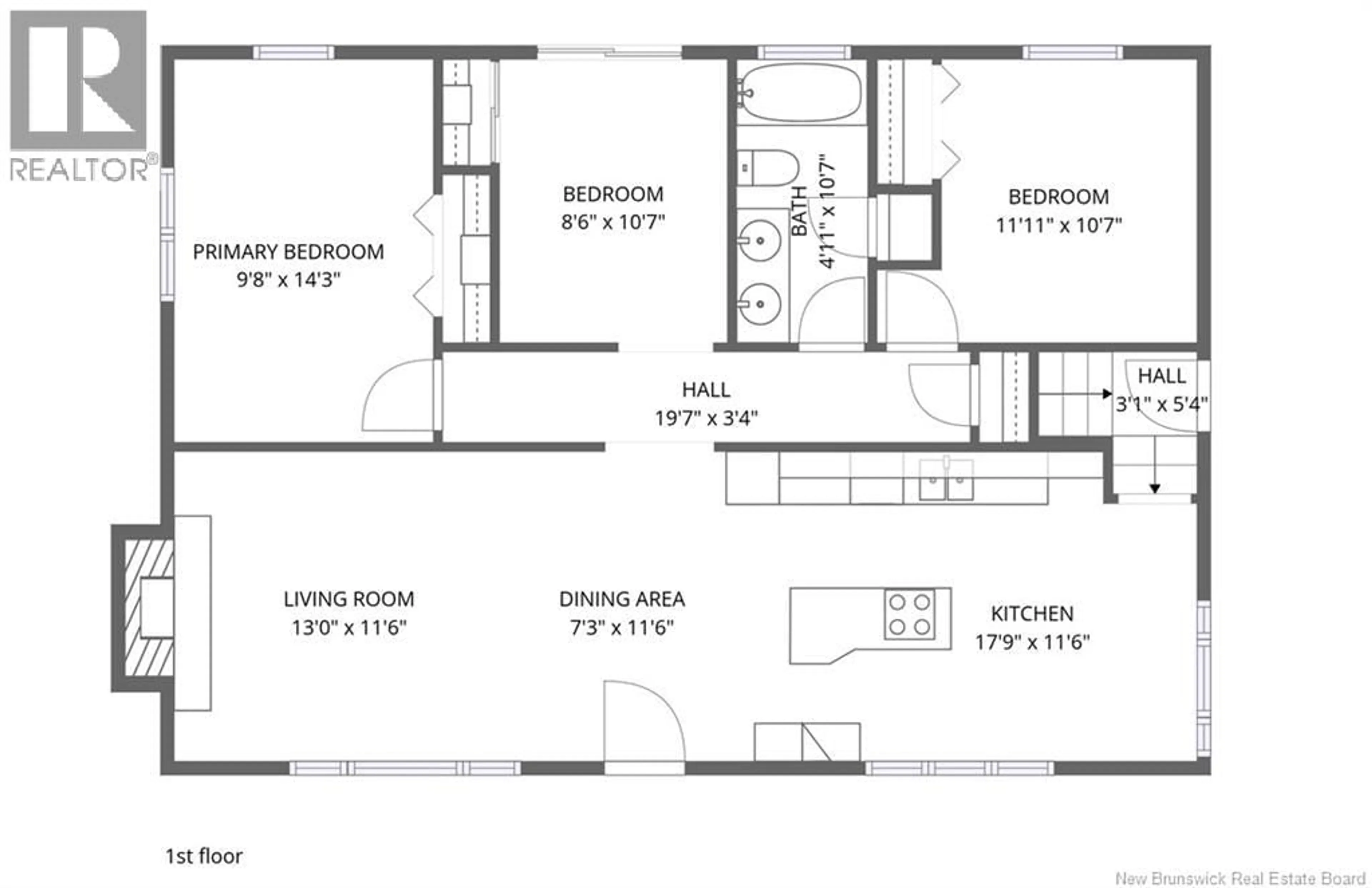
Welcome to this charming 2-bedroom, 2-bathroom bungalow offering comfortable main-floor living with extra space to grow. Thoughtfully designed, this home features a bright and functional layout with a spacious living area, an inviting kitchen with plenty of cabinetry, and a dining space perfect for everyday meals or entertaining. The primary bedroom includes convenient access to a full bathroom, while the second bedroom is ideal for guests, family, or a home office. The partially finished basement adds valuable living spaceperfect for a rec room, hobby area, or additional storagewith room to customize to suit your needs. Car enthusiasts and hobbyists will appreciate the fully insulated 2-car garage complete with a utility sink, providing a practical and comfortable workspace year-round. Situated on a nice lot with a paved driveway, this property offers great curb appeal and easy maintenance. Whether you're relaxing outdoors or enjoying the extra indoor space, this bungalow delivers comfort, functionality, and potential in one appealing package. (id:39198)
Property Details
Interior
Features
Basement Floor
Utility room
15'3'' x 14'8''Bonus Room
11'6'' x 16'6''Bonus Room
11'6'' x 13'8''Bath (# pieces 1-6)
9'3'' x 7'3''Exterior
Features
Property History
45




