47 KIMBERLY STREET, Fredericton, New Brunswick E3G5V6
Contact us about this property
Highlights
Estimated valueThis is the price Wahi expects this property to sell for.
The calculation is powered by our Instant Home Value Estimate, which uses current market and property price trends to estimate your home’s value with a 90% accuracy rate.Not available
Price/Sqft$214/sqft
Monthly cost
Open Calculator
Description
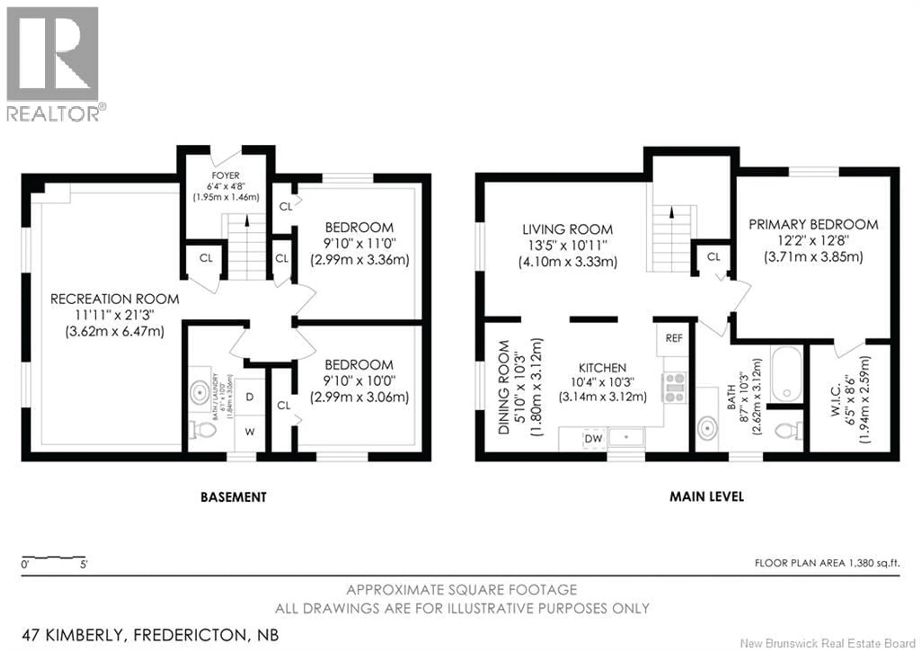
Step into this versatile side split home in Frederictons growing Northside, where space, location, and recent updates come together. The side entry foyer leads upstairs to a bright living room, a refreshed kitchen with new counters and sink, a full bath, and a primary bedroom featuring a generous walk-in closet. Downstairs, enjoy a large rec room with new flooring, two additional bedrooms, a convenient half bath with laundry, and smart storage tucked under the stairs. Fresh paint throughout, new toilets, and updated flooring in key areas give this home a clean, inviting feel. Outside, the paved driveway and carport make parking easy, while the good-sized backyard is perfect for play, gardening, or entertaining. All this in a family-friendly Brookside location - walk to the mall, enjoy the nearby park, and be part of a neighbourhood that combines convenience with a welcoming community vibe. Property taxes reflect non owner occupied tax rate. (id:39198)
Property Details
Interior
Features
Main level Floor
Other
8'6'' x 6'5''Foyer
4'8'' x 6'4''Bath (# pieces 1-6)
10'3'' x 8'7''Primary Bedroom
12'8'' x 12'2''Property History
47




