58 LEAVITT HEAD ROAD, Back Bay, New Brunswick E5C1Z7
Contact us about this property
Highlights
Estimated valueThis is the price Wahi expects this property to sell for.
The calculation is powered by our Instant Home Value Estimate, which uses current market and property price trends to estimate your home’s value with a 90% accuracy rate.Not available
Price/Sqft$344/sqft
Monthly cost
Open Calculator
Description
Welcome to this adorable, turn-key oceanfront home set on a rare peninsula with tidal waters on three sides in Back Bay Harbour, part of the Bay of Fundy, home to the highest tides in the world! Experience a coastline that transforms every six hours, from morning beachcombing to stunning high-tide views by midday, and evening shoreline walks. Inside, a spacious entry with double closets leads into a well-equipped kitchen featuring a large island and room for a full dining table. Patio doors frame your ever-changing ocean view. Two bedrooms are conveniently located off the kitchen. The living room offers vaulted ceilings, skylights, and large windows that fill the space with natural light. A generous bathroom includes a double sink vanity and all-in-one washer/dryer for added convenience. An oversized single-car garage provides excellent storage and protection on stormy coastal days. Located just 14 minutes to Highway 1 and less than 10 minutes from the centre of St. George, with New River Beach approximately 25 minutes away and Saint John within 50 minutes. A rare opportunity to own an affordable piece of oceanfront paradise. (id:39198)
Property Details
Interior
Features
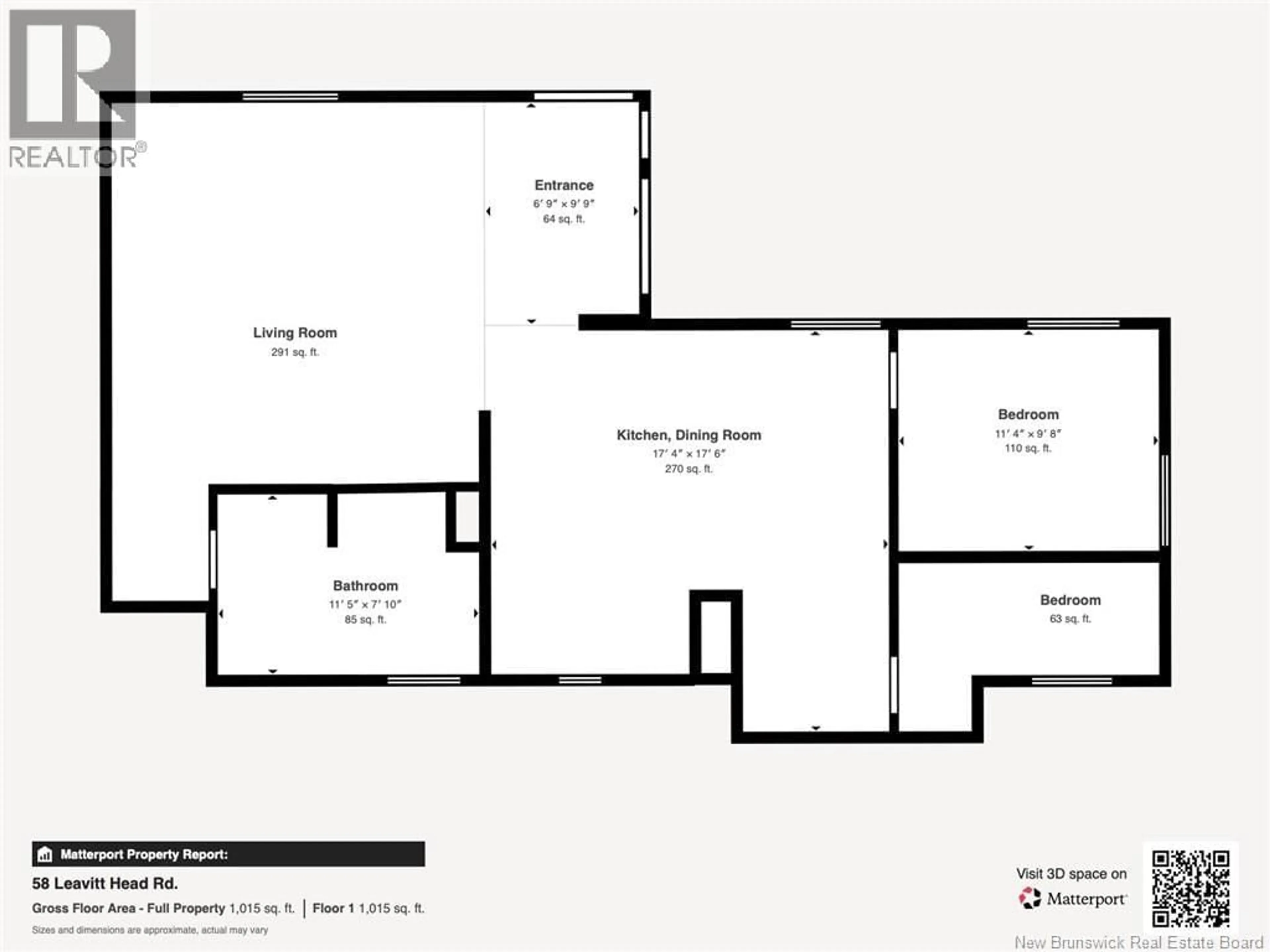
Main level Floor
Bath (# pieces 1-6)
11'11'' x 8'4''Living room
16'6'' x 17'0''Bedroom
11'10'' x 5'5''Bedroom
9'8'' x 11'4''Property History
47




