119 ROSEBANK CRESCENT, Riverview, New Brunswick E1B0R5
Contact us about this property
Highlights
Estimated valueThis is the price Wahi expects this property to sell for.
The calculation is powered by our Instant Home Value Estimate, which uses current market and property price trends to estimate your home’s value with a 90% accuracy rate.Not available
Price/Sqft$337/sqft
Monthly cost
Open Calculator
Description
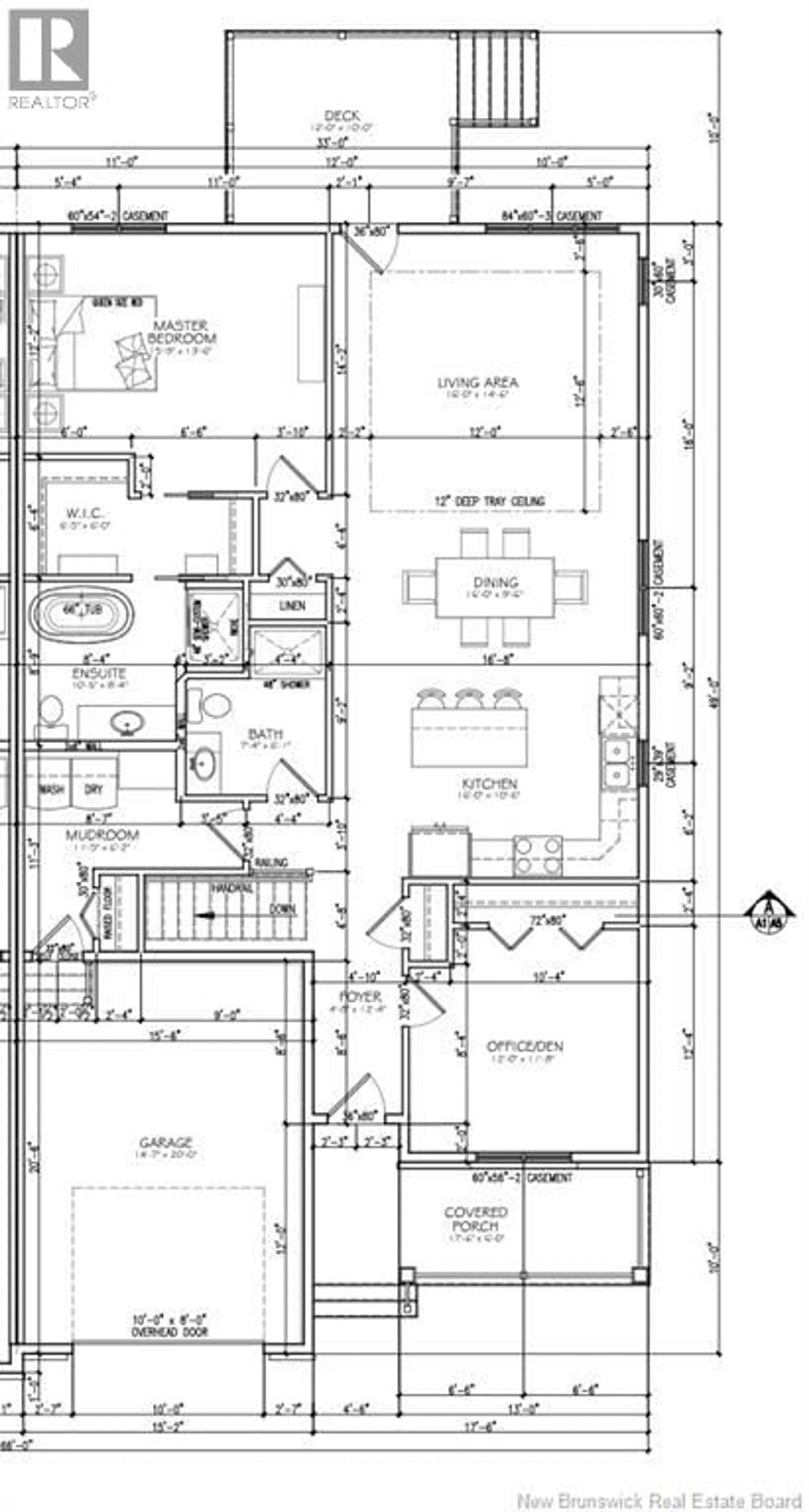
When Viewing This Property on Realtor.ca Please Click on the Multimedia or Virtual Tour Link for More Property Info. Welcome to The Village at the Fairways, Riverview!! High Quality, executive semidetached homes. This is an exclusive community for Atlantic Canadas award-winning custom homebuilder. This is the closest residential development to Downtown Moncton!!!! Our pricing includes Very energy efficient units, with mini split heat pumps, Tray ceiling with crown molding, aluminum railings, Landscaped lawn and paved driveway, attached garage, 10 Year New Home Warranty. we also have a maintenance agreement in place so that all the lawn cutting, and snow removal happens at the same time, keeping the community beautiful! The main floor is perfect for entertaining with an open concept kitchen with island, dining room and living room, master bedroom with walk-in closet and en-suite bath, second bedroom, second full bathroom, mud room off the garage with laundry. This house plans is much larger than most at 1362 Square Feet and options are fully customizable for each customer. We also have options in this development for 2 car garages and fully customized floor plans. (id:39198)
Property Details
Interior
Features
Main level Floor
4pc Bathroom
8'0'' x 12'0''Bedroom
13'0'' x 19'0''Primary Bedroom
8'0'' x 12'0''Dining room
10'0'' x 15'0''Property History
8




