10 FROST STREET, Riverview, New Brunswick E1B4C9
Contact us about this property
Highlights
Estimated valueThis is the price Wahi expects this property to sell for.
The calculation is powered by our Instant Home Value Estimate, which uses current market and property price trends to estimate your home’s value with a 90% accuracy rate.Not available
Price/Sqft$221/sqft
Monthly cost
Open Calculator
Description
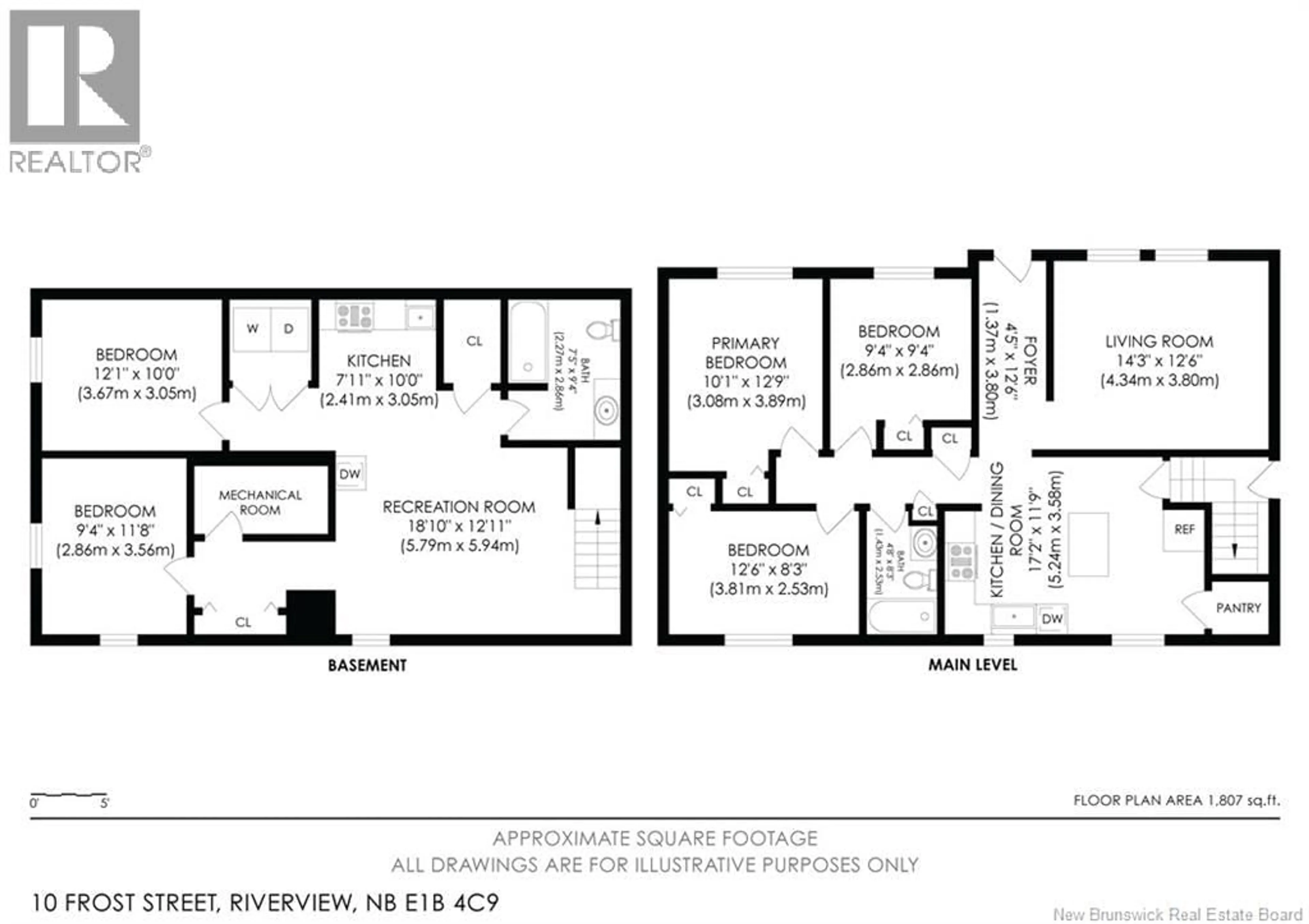
INLAW SUITE, DETACHED GARAGE, TONS OF RENOVATIONS - this house has it all. Welcome to 10 Frost Street, an updated bungalow in a family friendly neighborhood. The main floor features a welcoming foyer, a bright living room with pot lights, a brand new kitchen with space for stackable laundry and a pantry closet, along with 3 great size bedrooms and a full bathroom with many updates. The non-conforming in-law suite in the basement has its own entrance, is less than a year old, and offers a modern kitchen with a portable dishwasher that adds additional counter space, a luxury bathroom, 2 good size bedrooms(non-conforming), a cozy living room, and its own laundry. A perfect unit for your extended family or for renting it out for help with the mortgage. The home is equipped with a ducted electric EFFICIENT HEAT PUMP providing both heating and cooling. Outside, youll find a huge driveway, a LARGE HEATED DETACHED GARAGE, and a big backyard perfect for outdoor activities and relaxation. This property is ideal for an owner-occupant or as an investment offering great cashflow. 360 virtual tour and floor plans are attached - call your REALTOR® today to book a viewing for this beautiful home. (id:39198)
Property Details
Interior
Features
Basement Floor
4pc Bathroom
9'4'' x 7'5''Kitchen
10'0'' x 7'11''Recreation room
12'11'' x 18'10''Bedroom
11'8'' x 9'4''Property History
50




