632 ENZO ROAD, Kamloops, British Columbia V2B0E6
Contact us about this property
Highlights
Estimated valueThis is the price Wahi expects this property to sell for.
The calculation is powered by our Instant Home Value Estimate, which uses current market and property price trends to estimate your home’s value with a 90% accuracy rate.Not available
Price/Sqft$379/sqft
Monthly cost
Open Calculator
Description
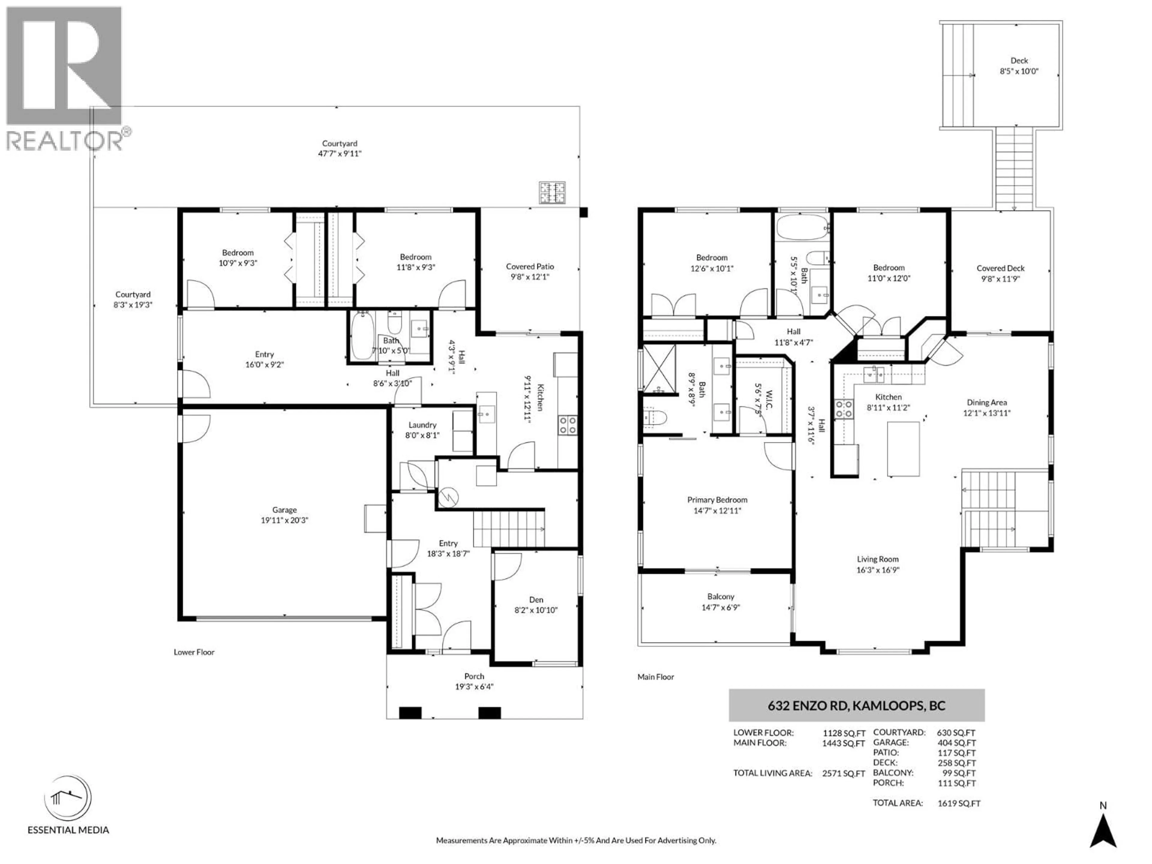
Welcome to this beautifully maintained two-story home in the highly desirable Westsyde area of Kamloops offering space, versatility, and comfort for the whole family. With 2571 sqft of living space, this home features five bedrooms, three bathrooms and a den, including a separate two bedroom basement suite ideal for extended family, and mortgage helper potential. The main level, showcases, gorgeous, hardwood floors, central A/C and a bright open layout. The kitchen is well appointed with stainless steel appliances a double oven and plenty of space for entertaining. Enjoy seamless indoor outdoor living with two patios on the upper floor perfect for relaxing or hosting guests. The large primary bedroom offers a private retreat complete with an ensuite featuring double sinks and a full-size shower additionally, bedrooms are generously sized, providing comfort and flexibility for family and guests. Downstairs the cozy basement suite boasts a walk-out covered patio and access to the fully fenced yard creating a private inviting space. Outside you’ll appreciate the double garage, RV/guest parking and secure yard perfect for kids pets and outdoor enjoyment this Westsyde gem combines functionality income potential and lifestyle appeal in a fantastic neighborhood, close to schools parks and amenities. (id:39198)
Property Details
Interior
Features
Second level Floor
Bedroom
12' x 11'Bedroom
10'1'' x 12'6''Full ensuite bathroom
8'9'' x 8'9''Primary Bedroom
12'11'' x 14'7''Exterior
Parking
Garage spaces -
Garage type -
Total parking spaces 5
Property History
62





