1 - 2805 WESTSYDE ROAD, Kamloops, British Columbia V2B7E1
Contact us about this property
Highlights
Estimated valueThis is the price Wahi expects this property to sell for.
The calculation is powered by our Instant Home Value Estimate, which uses current market and property price trends to estimate your home’s value with a 90% accuracy rate.Not available
Price/Sqft$215/sqft
Monthly cost
Open Calculator
Description
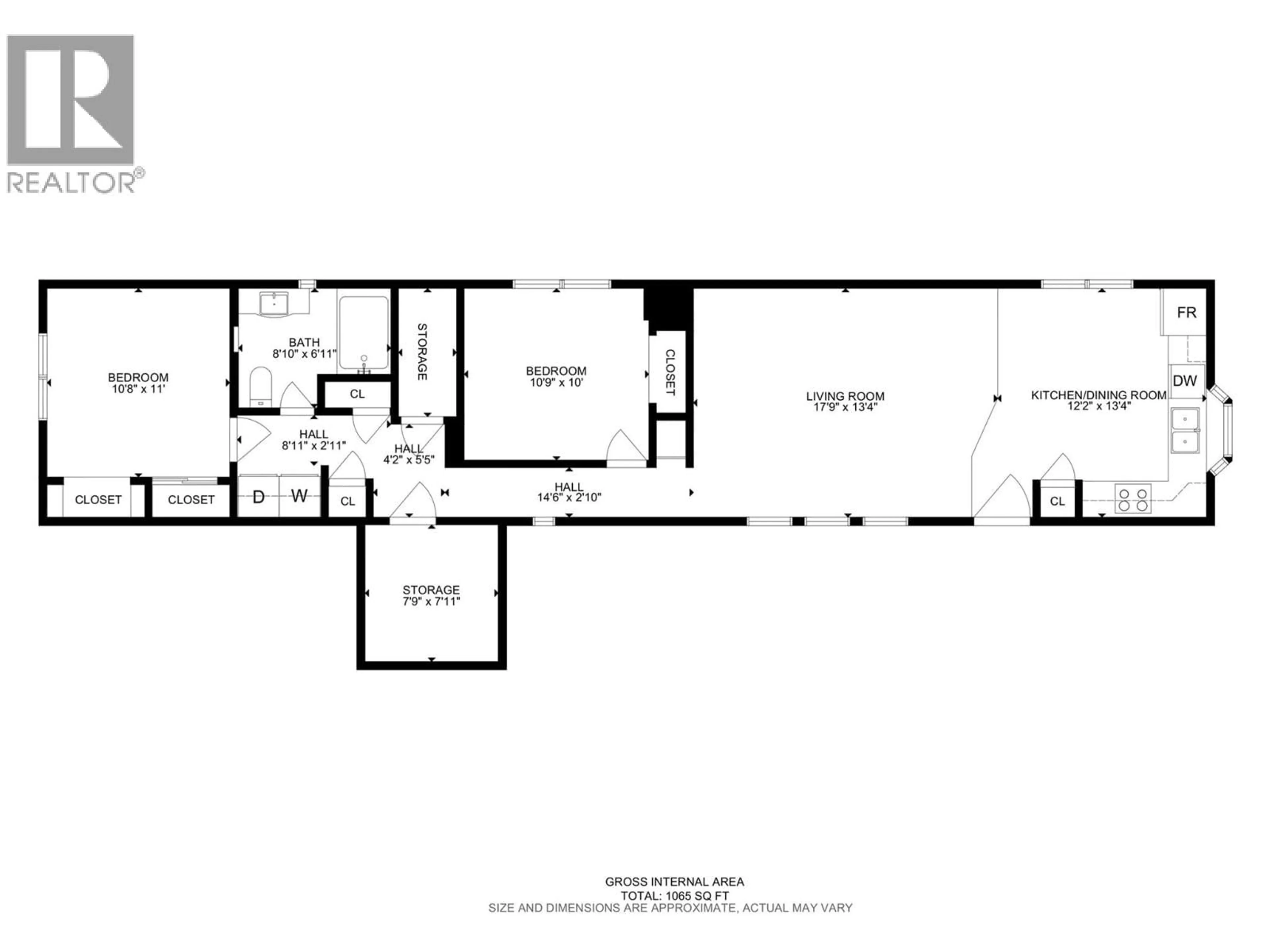
Great floor plan! Spacious over 900 sq.ft. home featuring an open-concept layout with a bright kitchen. Generous living room is perfect for everyday living and entertaining. This well-designed home offers 2 bedrooms and a large, functional bathroom with great overall flow. Recent updates include new wide-plank flooring in the living room, hallway, and a primary bedroom. Situated on the largest lot in the park. Enjoy ample parking, a spacious yard, and a raised garden area at the back. Ideally positioned as the first lot with added privacy on one side next to open space. The fully fenced yard is perfect for children or your dogs. Relax year-round on the large, covered sundeck - rain or shine! This is a fantastic opportunity & must see! Measurements to be verified by buyer. (id:39198)
Property Details
Interior
Features
Main level Floor
Storage
7'11'' x 7'9''Primary Bedroom
11' x 10'8''Full bathroom
Bedroom
10' x 10'9''Condo Details
Inclusions
Property History
24





