1886 VALLEYVIEW DRIVE, Kamloops, British Columbia V2C4B9
Contact us about this property
Highlights
Estimated valueThis is the price Wahi expects this property to sell for.
The calculation is powered by our Instant Home Value Estimate, which uses current market and property price trends to estimate your home’s value with a 90% accuracy rate.Not available
Price/Sqft$321/sqft
Monthly cost
Open Calculator
Description
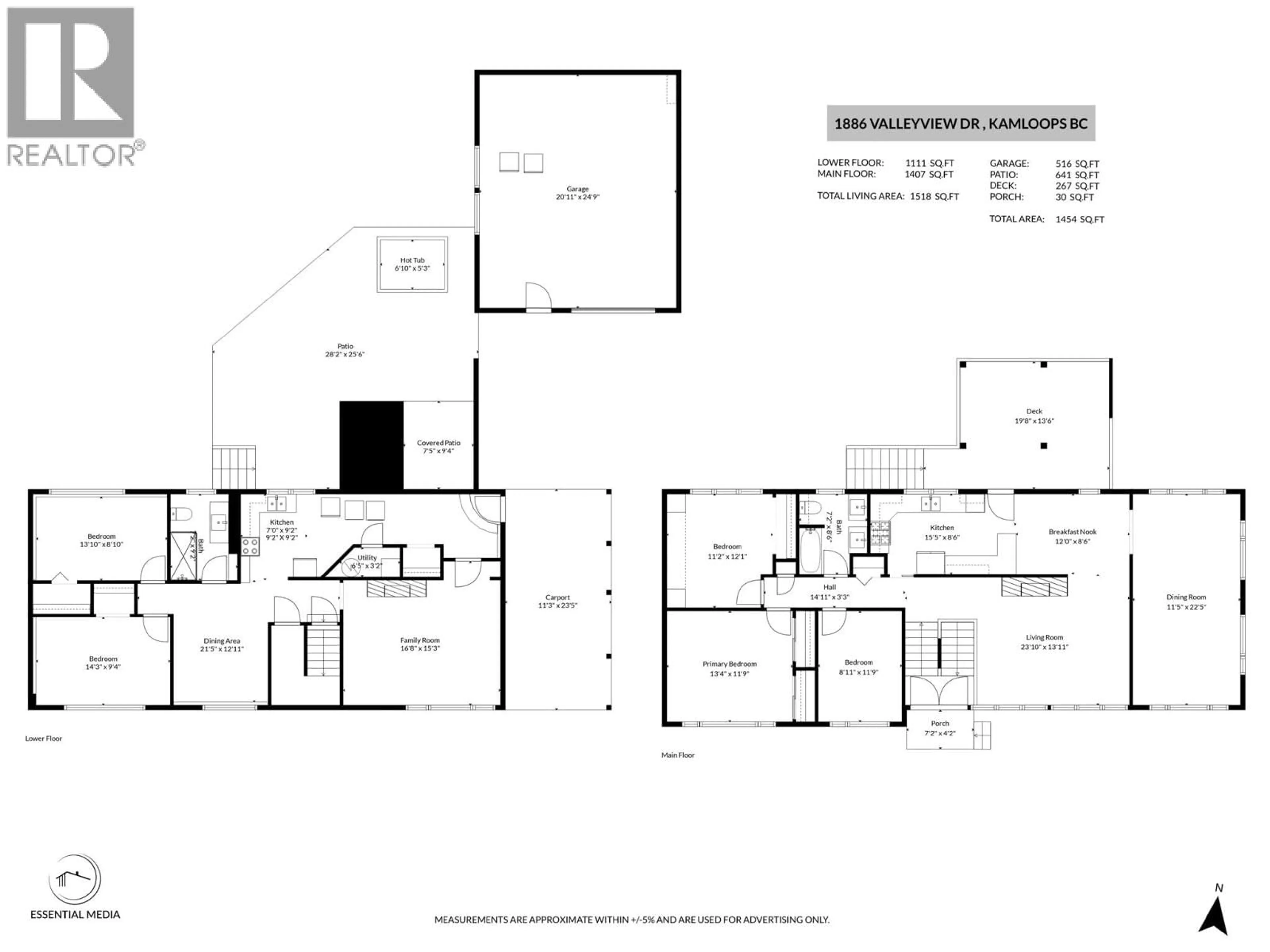
Centrally located, updated Valleyview home with a 2-bedrm in-law suite & detached shop. As you walk into this home, you’ll find HW flooring throughout most of the main-floor living areas. There’s plenty of living space on this floor, including a large living room with a south-facing picture window, an updated kitchen with new cabinet doors & a stunning hexagon backsplash, & an additional nook/sitting area. There’s also a spacious dining room that could easily function as a family room/kids’ play area. There’s also 3 good-sized bedrooms & an updated 4-pc bath. Step off the kitchen onto the private back deck & enjoy the stunning views. The basement includes a 2-bedroom mortgage helper, making it an excellent opportunity for extra income/multi-generational living. The suite has a large living & dining area, with the dining space also suitable for a home office. The bedrooms are generously sized, & there’s an updated 3-pc bath. The suite currently shares laundry with the main & isn’t fully separated; however, it could easily be made self-contained. The yard has seen several upgrades, including nicely landscaped areas, an updated fence on 1 side, & low-maintenance xeriscaping. Mature lilac trees provide excellent privacy. Located in a central area close to all amenities, schools, & public transit. The detached shop includes its own heat source & 220 power. The shop roof is approx 5 yrs old, & the house roof is approximately 10 yrs old. Day-before notice required for showings. (id:39198)
Property Details
Interior
Features
Main level Floor
Foyer
7' x 4'4''Bedroom
8'2'' x 11'1''Bedroom
10'3'' x 10'2''Primary Bedroom
12'10'' x 11'2''Exterior
Parking
Garage spaces -
Garage type -
Total parking spaces 6
Property History
55





