1948 SHEFFIELD WAY, Kamloops, British Columbia V2E2M2
Contact us about this property
Highlights
Estimated valueThis is the price Wahi expects this property to sell for.
The calculation is powered by our Instant Home Value Estimate, which uses current market and property price trends to estimate your home’s value with a 90% accuracy rate.Not available
Price/Sqft$376/sqft
Monthly cost
Open Calculator
Description
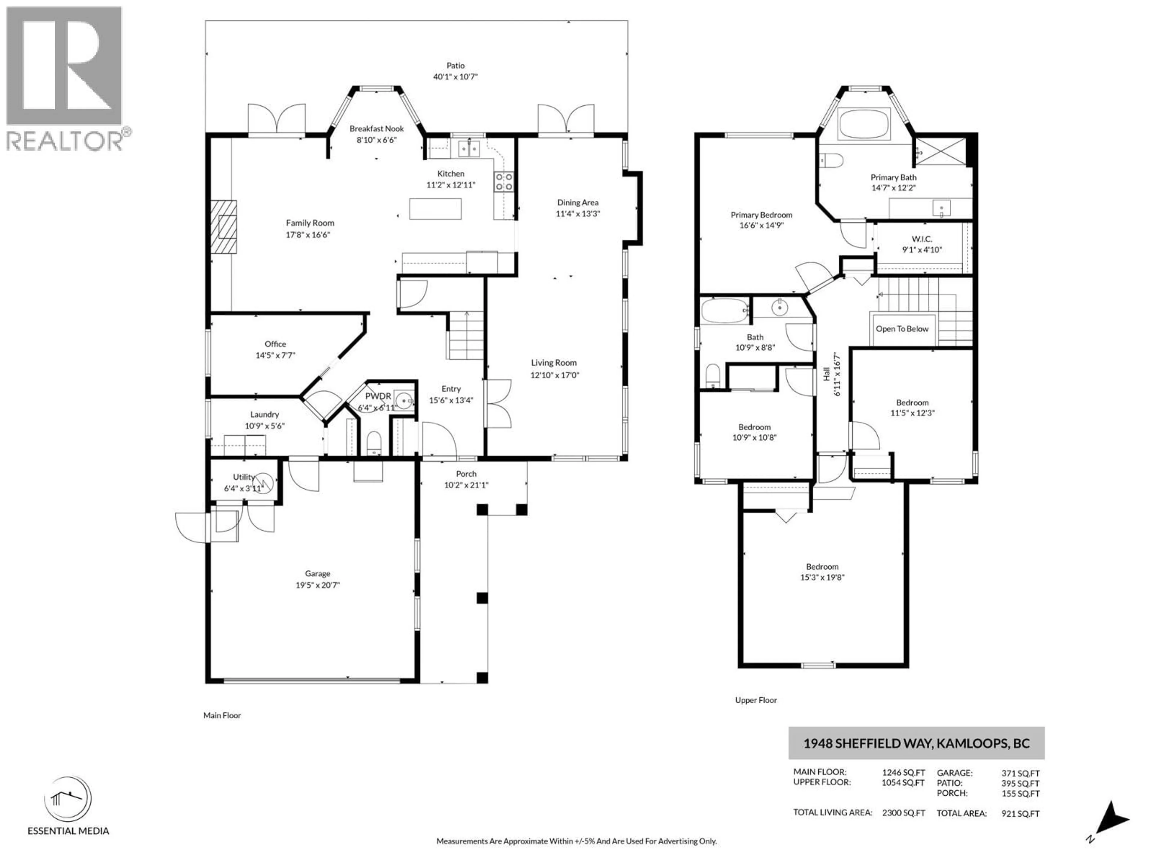
Beautifully updated two storey home in highly sought after neighbourhood. Upon entering this home you will be greeted with a large main entry. Off of the entry you will find a large living and dining room space with tons of windows and high ceilings. Flowing through to the next space, the kitchen with nook and family room offers lots of space for the whole family. It walks out to the back patio and yard space with tons of room for kids play structures and pets. To finish off the main floor there is a 2 piece bathroom, an office space, laundry and access to the 2 car garage. Ascend to the top floor where you will find a large primary suite featuring a spacious ensuite with a large tub and walk in shower. There are 3 additional bedrooms on the top floor, and a 4 piece main bathroom. One of the bedrooms is situated over the garage which would make a perfect play room or theatre room space. This home does not have a basement, all your living is on 2 levels! Other features of this property include: in floor radiant heat, mini split system for heating and cooling, paint, flooring, trim, and built in shelving all recently upgraded, hot water tank within the past 2 years, updated roof (2015) & boiler system (2013), 11x8 wired workshop plus a garden shed. This home is located in Coach Hills in Upper Sahali. Walking distance to Albert McGowan Elementary, water park and Peterson Creek Park. Easy access to transportation and short drive to most City of Kamloops amenities. (id:39198)
Property Details
Interior
Features
Second level Floor
Bedroom
15'3'' x 19'8''Bedroom
12'3'' x 11'5''Bedroom
10'8'' x 10'9''4pc Bathroom
10'8'' x 10'9''Exterior
Parking
Garage spaces -
Garage type -
Total parking spaces 4
Property History
58




