38 - 1655 ORD ROAD, Kamloops, British Columbia V2B7V6
Contact us about this property
Highlights
Estimated valueThis is the price Wahi expects this property to sell for.
The calculation is powered by our Instant Home Value Estimate, which uses current market and property price trends to estimate your home’s value with a 90% accuracy rate.Not available
Price/Sqft$211/sqft
Monthly cost
Open Calculator
Description
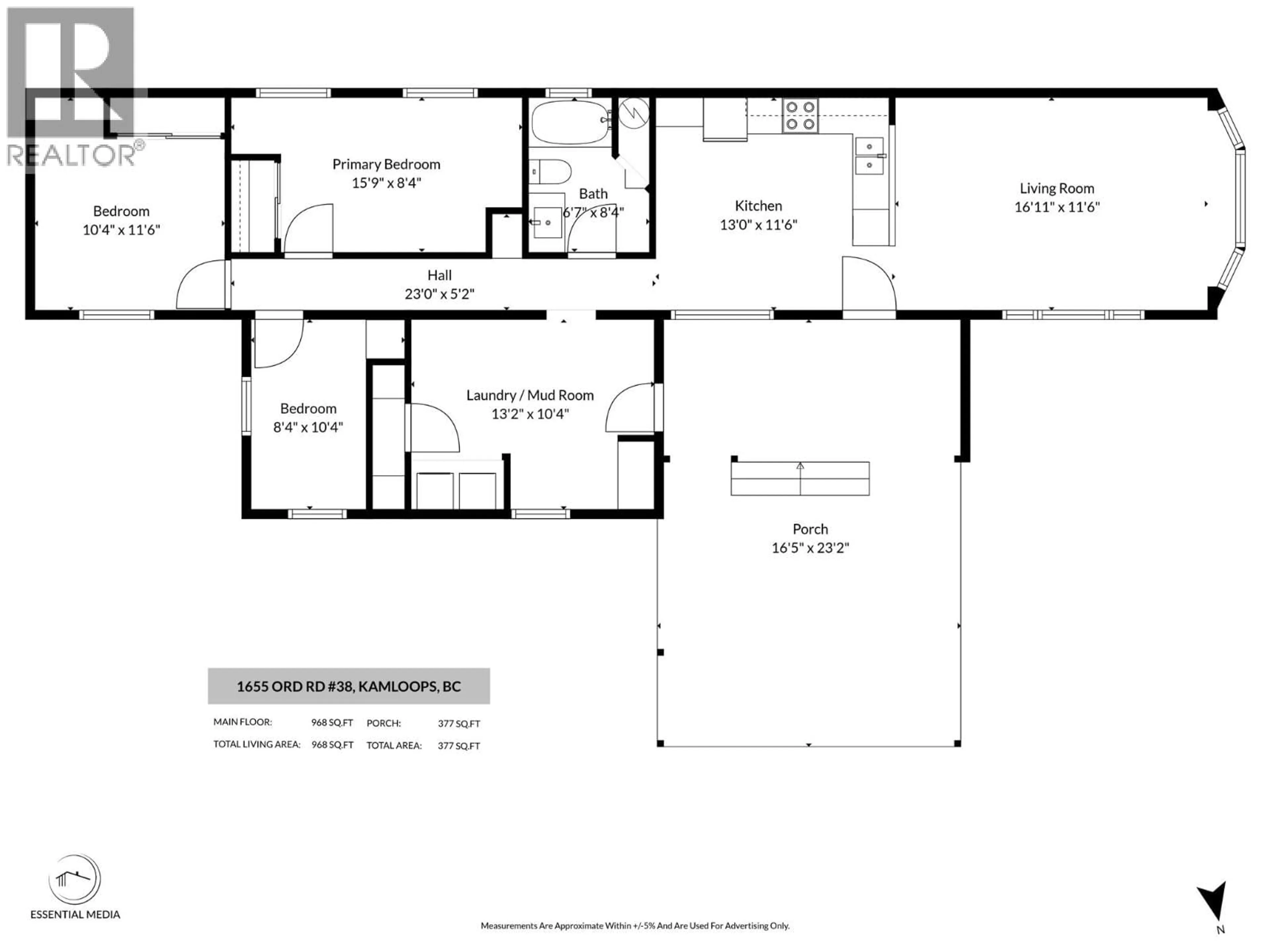
OPEN HOUSE Thursday November 27, 3:00pm-5:00pm Welcome to this nicely updated 3 bedroom, one bathroom home with a bright addition, stunning mountain views, and a fully fenced, private yard. The home was fully releveled this summer for added stability, and the ducting was professionally cleaned in September. Inside you will find fresh paint, new flooring, and a clean, modern feel throughout. The furnace and hot water tank have both been recently updated, giving you peace of mind for years to come. Enjoy beautiful views of the mountains right outside your door, a quiet location in the park, easy parking, and comfortable living at an affordable price. A great fit for first time buyers, downsizers, or anyone looking for a simple, clean place to call home with incredible scenery. This home is vacant and fully move in ready, with quick possession available. Ready to spend Christmas in your new home? Give me a call (id:39198)
Property Details
Interior
Features
Main level Floor
Bedroom
6'8'' x 9'10''Bedroom
8' x 13'4pc Bathroom
7' x 9'Primary Bedroom
9' x 13'Exterior
Parking
Garage spaces -
Garage type -
Total parking spaces 2
Condo Details
Inclusions
Property History
17





